Evolis, votre partenaire en immobilier d’entreprise! Que vous soyez une entreprise, utilisateur de locaux professionnels, investisseur, ou propriétaire, Evolis met à votre service son expertise ...
En savoir plus



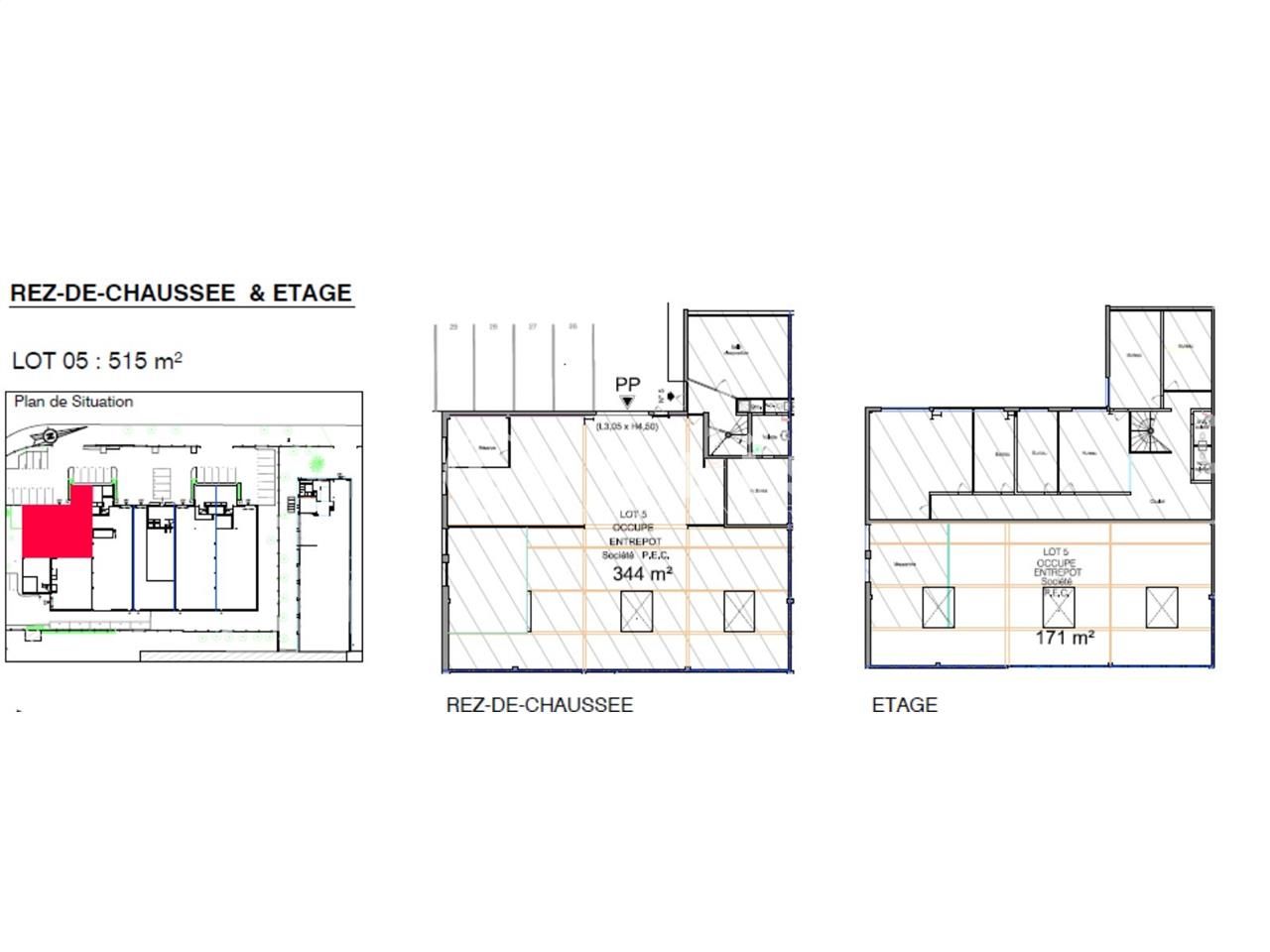
515 m²
HT HC
Location activité/entrepôt - 515 m²
Wissous (91320)
Dernière mise à jour : Il y a 14 jours
Locaux d'activité de 515 m² non divisibles à louer à Wissous, proposés par EVOLIS. Idéalement situés, ces espaces offrent une grande visibilité, un accès facile aux axes routiers et une configuration modulable pour répondre à tous les besoins professionnels.
Impôt Foncier : 10,35 €/m²/an
Régime Fiscal : T.V.A.
Dépôt de garantie : 3 mois de loyer HT HC
Honoraires : 15% du loyer annuel HT HC à la charge du preneur
Taxe Bureau : 11,87 €/m²/an
Prestations :
Accessibilité:
Bus ZI Montavas (297)
Grand Paris Express Antonypôle (L18 Fin 2027)
RER RER B Antony / Fontaine Michalon
RER RER C Les Baconnets / Chemin d'Antony
SNCF Massy Palaiseau
Route N20
Autoroute A10, A6
Les informations sur les risques auxquels ce bien est exposé sont disponibles sur le site Géorisques : www.georisques.gouv.fr
| Étage | Type | Surfaces | Dispo | Loyer | Charges | Type de bailRév. annuelle |
|---|---|---|---|---|---|---|
| 1 | Bureaux | 171 | Immédiate | Bail commercial 3-6-9 ansILAT Indice des Loyers des Activités Tertiaires | ||
| RDC | Activités | 279 | Immédiate | Bail commercial 3-6-9 ansILAT Indice des Loyers des Activités Tertiaires | ||
| RDC | Bureaux | 65 | Immédiate | Bail commercial 3-6-9 ansILAT Indice des Loyers des Activités Tertiaires | ||
| Parkings | Immédiate | Bail commercial 3-6-9 ansILAT Indice des Loyers des Activités Tertiaires | ||||
| Total Cellule 5 | Activités | 515 | Immédiate | 120 m²/an/ HT/HC | 7,24 m²/an HT | Bail commercial 3-6-9 ansILAT Indice des Loyers des Activités Tertiaires |
Impôt Foncier : 10,35 €/m²/an
Régime Fiscal : T.V.A.
Dépôt de garantie : 3 mois de loyer HT HC
Honoraires : 15% du loyer annuel HT HC à la charge du preneur
Taxe Bureau : 11,87 €/m²/an
Prestations :
- Structure métallique
- Remplissage maçonnés (parpaing ou béton)
- Toiture en bac acier avec isolant et étanchéité /bitumineuse
- Accès livraison de plain-pied
- Fibre optique : le site est maintenant éligible par le réseau FTTH
- Prestations bureaux :
- Moquette/faux plafond/luminaires encastrés . Chauffage par convecteur électrique
- Surcharge admissible : 250 kg/m²
- Prestations activité :
- Accès porte camion commandées manuellement : L 2,99 x H 2,99
- Aérothermes ou convecteurs électriques
- Hauteur libre sous plafond : 5,00 mètres
- Surcharge admissible : 1,5 tonnes
- Immeuble indépendant
- Surface RDC : 344 m²
Accessibilité:
Bus ZI Montavas (297)
Grand Paris Express Antonypôle (L18 Fin 2027)
RER RER B Antony / Fontaine Michalon
RER RER C Les Baconnets / Chemin d'Antony
SNCF Massy Palaiseau
Route N20
Autoroute A10, A6
Les informations sur les risques auxquels ce bien est exposé sont disponibles sur le site Géorisques : www.georisques.gouv.fr
Voir plus
Afficher les consommations énergétiques
Localisation et transport aux alentours
Favoris
Exporter
Appeler
Contacter
Signaler cette annonce










