L'équipe de G2B Real Estate est agence immobilière spécialiste de l'immobilier d'entreprise partout en Île-de-France depuis plus de 13 ans. Hasan Gulbol (Associé), Frédéric Bazil (Associé), Philipp ...
En savoir plus

639 m² divisible dès 250 m²
HT HC
Location activité/entrepôt - 639 m²
Pontault-Combault (77340)
Dernière mise à jour : Il y a 2 mois
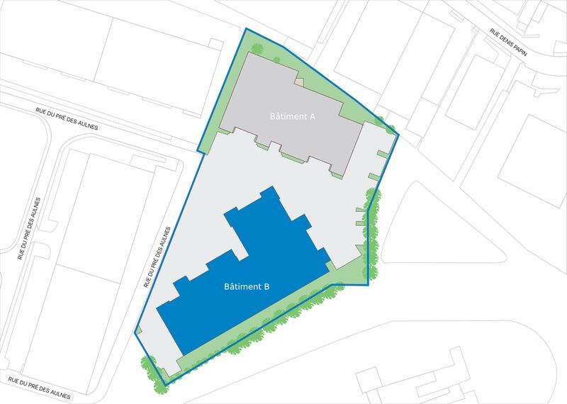
Parc à usage mixte d'activités et de bureaux, clos et sécurisé, réparti sur deux bâtiments, mettant à disposition deux lots d'activités au sein du bâtiment B. Ils possèdent une porte sectionnelle et offrent une hauteur sous plafond de 6,35 mètres. Des places de parking accompagnent les lots.
Impôt Foncier : 17 €/m²
Régime Fiscal : TVA
Honoraires : 15% HT du loyer annuel HT HC à la charge du Preneur
Prestations :
Accessibilité:
Bus Louis Blanc (A)
A 4 (Entrée Pontault-Combault gare, Roissy en Brie centre, Parc d'activités des Arpents), A 4 (Sortie)
Les informations sur les risques auxquels ce bien est exposé sont disponibles sur le site Géorisques : www.georisques.gouv.fr
| Étage | Type | Surfaces | Dispo | Loyer | Charges | Type de bailRév. annuelle |
|---|---|---|---|---|---|---|
| Activités | 347 | Indice ILAT | ||||
| Bureaux | 42 | Indice ILAT | ||||
| Total Cellule B3 | Activités | 389 | Immédiate | 107 m²/an HT HC | 26 m² | 3/6/9 ansIndice ILAT |
| Activités | 208 | Indice ILAT | ||||
| Bureaux | 42 | Indice ILAT | ||||
| Total Cellule B5 | Activités | 250 | Immédiate | 110 m²/an HT HC | 26 m² | 3/6/9 ansIndice ILAT |
Impôt Foncier : 17 €/m²
Régime Fiscal : TVA
Honoraires : 15% HT du loyer annuel HT HC à la charge du Preneur
Prestations :
- Site clos et sécurisé
- HSP : 6,35 m
- Portes sectionnelles
- Tarif bleu : Puissance 36kVA
- Parking
- Train E : Gare d'Émerainville - Pontault-Combault
- Surface terrain : 0
Accessibilité:
Bus Louis Blanc (A)
A 4 (Entrée Pontault-Combault gare, Roissy en Brie centre, Parc d'activités des Arpents), A 4 (Sortie)
Les informations sur les risques auxquels ce bien est exposé sont disponibles sur le site Géorisques : www.georisques.gouv.fr
Voir plus
Afficher les consommations énergétiques
Localisation et transport aux alentours
Favoris
Exporter
Appeler
Contacter
Signaler cette annonce










