MCarré Conseil est une agence spécialiste de l'immobilier d’entreprise du sud de l’Île-de-France (en Essonne et dans le sud de la Seine-et-Marne et du Val-De-Marne). Elle vous accompagne à chaque é ...
En savoir plus



2 409 m² divisible dès 227 m²
HT HC
Location activité/entrepôt - 2409 m²
Tigery (91250)
Dernière mise à jour : Il y a 4 jours
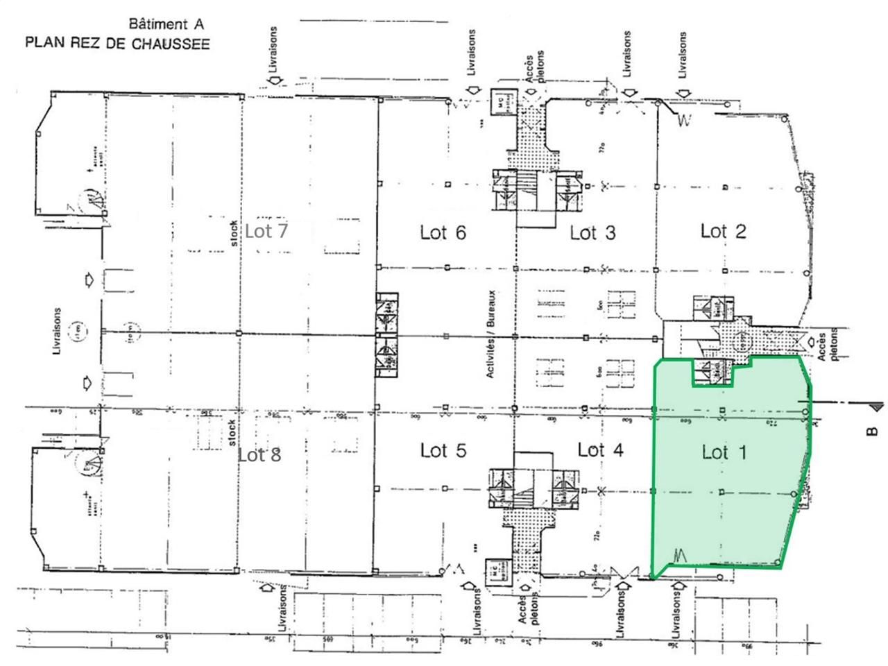
Au coeur d'un site clos et végétalisé, dans un programme composé de deux bâtiments, nous vous proposons des lots à usage de bureaux en étage et activité/bureaux en RDC.
Impôt Foncier : 17,4 €/HT/m²/an
Régime Fiscal : TVA
Dépôt de garantie : 3 mois de loyer HT/HC
Honoraires : 15% HT du loyer annuel HT HC
Taxe Bureau : 2,7 €/m²/an
Prestations :
Accessibilité:
Autoroute Autoroute A5
Route Nationale 104 Francilienne
Route Nationale 6
RER RER D2 Moissy Cramayel
Les informations sur les risques auxquels ce bien est exposé sont disponibles sur le site Géorisques : www.georisques.gouv.fr
| Étage | Type | Surfaces | Dispo | Loyer | Charges | Type de bailRév. annuelle |
|---|---|---|---|---|---|---|
| R+1 | Bureaux | 55 | Indice ILAT | |||
| Rdc | Activités | 645 | Indice ILAT | |||
| Total Cellule LOTS 7-10 | Activités | 700 | Immédiate | 115 m²/an HT HC | 17,35 HT/m²/an | 3/6/9 ansIndice ILAT |
| R+1 | Bureaux | 55 | Indice ILAT | |||
| Rdc | Activités | 645 | Indice ILAT | |||
| Total Cellule LOTS 8-9 | Activités | 700 | Immédiate | 115 m²/an HT HC | 17,35 HT/m²/an | 3/6/9 ansIndice ILAT |
| Rdc | Activités | 227 | Immédiate | 115 m²/an HT HC | 17,35 HT/m²/an | 3/6/9 ansIndice ILAT |
| 1 | Bureaux | 278 | Indice ILAT | |||
| Rdc | Activités | 274 | Indice ILAT | |||
| Total Cellule LOTS 2-4 | Activités | 552 | Immédiate | 115 m²/an HT HC | 17,35 HT/m²/an | 3/6/9 ansIndice ILAT |
| 1 | Bureaux | 230 | Immédiate | 115 m²/an HT HC | 17,35 HT/m²/an | 3/6/9 ansIndice ILAT |
Impôt Foncier : 17,4 €/HT/m²/an
Régime Fiscal : TVA
Dépôt de garantie : 3 mois de loyer HT/HC
Honoraires : 15% HT du loyer annuel HT HC
Taxe Bureau : 2,7 €/m²/an
Prestations :
- Convecteurs électriques
- Hauteur sous plafond bureaux : 2,80 m
- Surface RDC : 1791 m²
- Equipements entrepôts : Porte livraison en RDC
Hauteur sous plafond :
- Lots 1 à 6 : 3,8 à 4 m
- Lots 7 et 8 : 7,5 à 8 m
Accès portes à quai :
- Bâtiment A : 2 quais niveleurs
- Bâtiment B : 1 quai niveleur au milieu du bâtiment
Site clôturé /grillagé - Chauffage : par aérothermes
- Ossature : Métallique
- Murs périmétriques : Double bardage
- Couverture : Bac acier
Accessibilité:
Autoroute Autoroute A5
Route Nationale 104 Francilienne
Route Nationale 6
RER RER D2 Moissy Cramayel
Les informations sur les risques auxquels ce bien est exposé sont disponibles sur le site Géorisques : www.georisques.gouv.fr
Voir plus
Afficher les consommations énergétiques
Localisation et transport aux alentours
Favoris
Exporter
Appeler
Contacter
Signaler cette annonce










