Spécialiste de Toulouse, LOCO² est une société de conseil en immobilier d'entreprise qui accompagne ses clients à l'achat ou à la location, qu'ils soient propriétaires, investisseurs ou utilisateur ...
En savoir plus

450 m² divisible dès 150 m²
HT HC
Location activité/entrepôt - 450 m²
Grisolles (82170)
Publiée : Il y a 9 mois
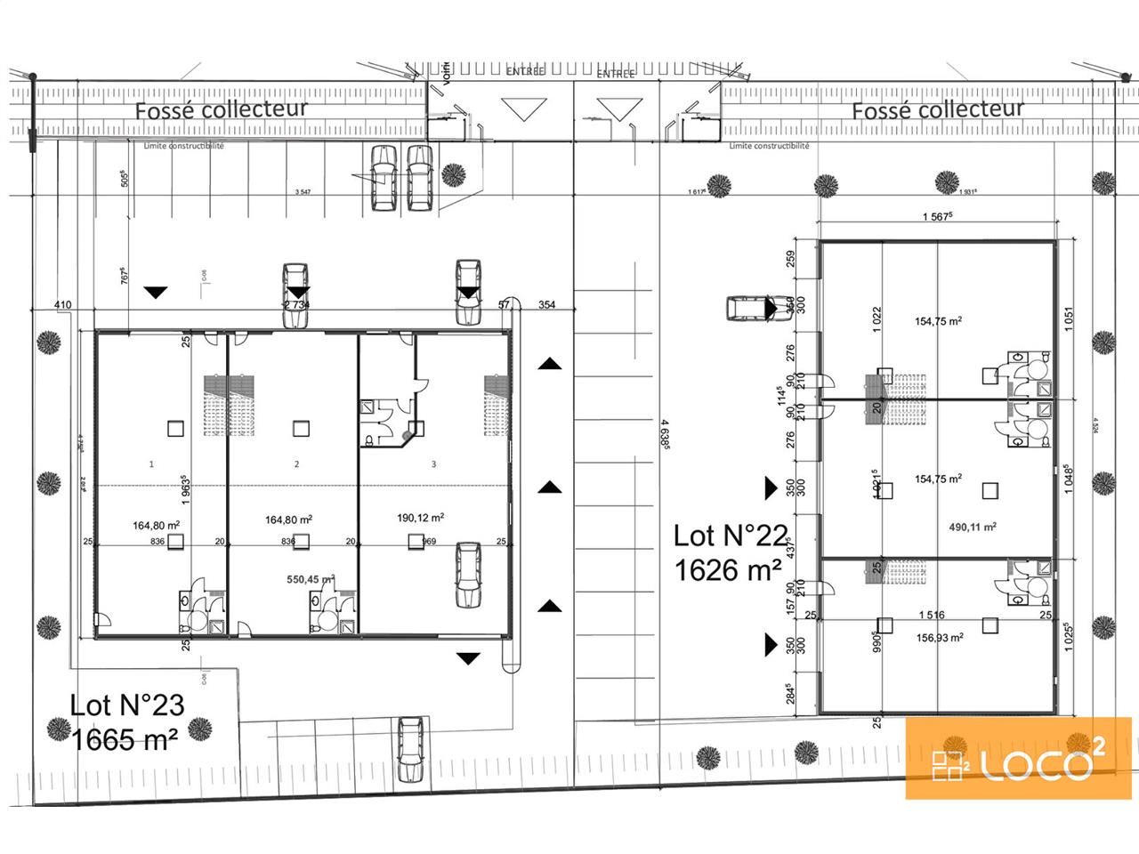
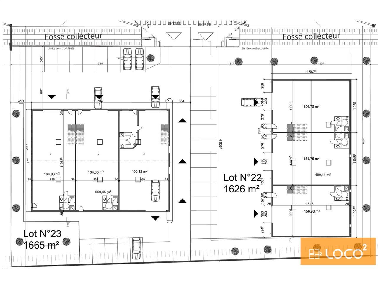
Local d'activité neuf de 450 m² Secteur Nord de TOULOUSE, à GRISOLLES dans la ZAC LES MOLLES, LOCO² vous propose à la location 3 cellules de locaux d'activités neufs de 150 m² chacun. Possibilité de rassembler plusieurs lots.
Les locaux sont en cours de construction, ils seront disponibles en début d'année 2025.
Détails approximatifs des surfaces par lot :
- Dépôt : 150 m² (surface au sol)
- Possibilité d'installer une mezzanine pour une partie bureau ou stockage : 40 m².
16 places de parking attribuées.
Tableau des surfaces:
Situation :
- À proximité de la Zone Logistique d'EUROCENTRE
- D813 et A62
Aspects financiers :
Indexation annuelle : Indice INSEE ILAT
Dépôt de garantie :
Régime fiscal location :
Taxe foncière : €
Les locaux sont en cours de construction, ils seront disponibles en début d'année 2025.
Détails approximatifs des surfaces par lot :
- Dépôt : 150 m² (surface au sol)
- Possibilité d'installer une mezzanine pour une partie bureau ou stockage : 40 m².
16 places de parking attribuées.
Tableau des surfaces:
| Niveau | Nom | Surface | Commentaires | Loyer | Prix |
| Lot 1 | Local d'activité | 150 m² | Dispo : Août | 1200 € HT-HC/ mois | |
| Lot 2 | Local d'activité | 150 m² | Dispo : Août | 1200 € HT-HC/ mois | |
| Lot 3 | Local d'activité | 150 m² | Dispo : Août | 1200 € HT-HC/ mois | |
| Total | L'ensemble | 450 m² | Dispo : Août | 3600 € HT-HC/ mois | |
Situation :
- À proximité de la Zone Logistique d'EUROCENTRE
- D813 et A62
Aspects financiers :
Indexation annuelle : Indice INSEE ILAT
Dépôt de garantie :
Régime fiscal location :
Taxe foncière : €
Voir plus
Afficher les consommations énergétiques
Localisation et transport aux alentours
Favoris
Exporter
Appeler
Contacter
Signaler cette annonce










