Conseil en immobilier d'entreprise, Cushman & Wakefield est un acteur incontournable au rayonnement international. Cushman & Wakefield offre des solutions dans toutes les étapes que comporte un p ...
En savoir plus

1 269 m²
HT HC
Location activité/entrepôt - 1269 m²
Montigny-le-Bretonneux (78180)
Dernière mise à jour : Il y a 2 jours
BATIMENT 5 - LOT INDEPENDANT
Situé au coeur du quartier dynamique du Pas du Lac à Montigny le Bretonneux, ce spacieux espace de bureaux et d'activités de 1 269 m² non divisibles offre une opportunité exceptionnelle pour votre entreprise. Bénéficiant d'une localisation stratégique au sein du poumon économique de l'agglomération, ce site prestigieux accueille déjà des entreprises de renom telles qu'Orange, la Banque Populaire, le Crédit Agricole, BMW, et bientôt Airbus. Avec la climatisation pour un confort optimal, cet espace moderne et fonctionnel est idéal pour accueillir vos équipes et développer votre activité dans un environnement professionnel de premier plan.
Ne manquez pas cette occasion unique de louer un espace de travail d'exception dans un cadre privilégié.
Impôt Foncier : 16,5 €//m²/an
Régime Fiscal : T.V.A.
Dépôt de garantie : 3 mois de loyer HT/HC
Paiement Loyer : Trimestriel
Honoraires : 15 % HT du loyer annuel HT/HC à la charge du preneur.
Taxe Bureau : 8,27 €/m²/an
Information sur le Bail :
Assurance immeuble : 0,44 euros/m²/an/HT Frais d'actes : 750 euros/HT
Prestations :
Accessibilité:
Accès routier Autoroute A12, N12, N10
RER RER C "Saint Quentin en Yvelines"
SNCF Ligne U "Saint Quentin en Yvelines"
Bus Lignes 401, 67, 419, 414, 415, 458, 468
Les informations sur les risques auxquels ce bien est exposé sont disponibles sur le site Géorisques : www.georisques.gouv.fr
Situé au coeur du quartier dynamique du Pas du Lac à Montigny le Bretonneux, ce spacieux espace de bureaux et d'activités de 1 269 m² non divisibles offre une opportunité exceptionnelle pour votre entreprise. Bénéficiant d'une localisation stratégique au sein du poumon économique de l'agglomération, ce site prestigieux accueille déjà des entreprises de renom telles qu'Orange, la Banque Populaire, le Crédit Agricole, BMW, et bientôt Airbus. Avec la climatisation pour un confort optimal, cet espace moderne et fonctionnel est idéal pour accueillir vos équipes et développer votre activité dans un environnement professionnel de premier plan.
Ne manquez pas cette occasion unique de louer un espace de travail d'exception dans un cadre privilégié.
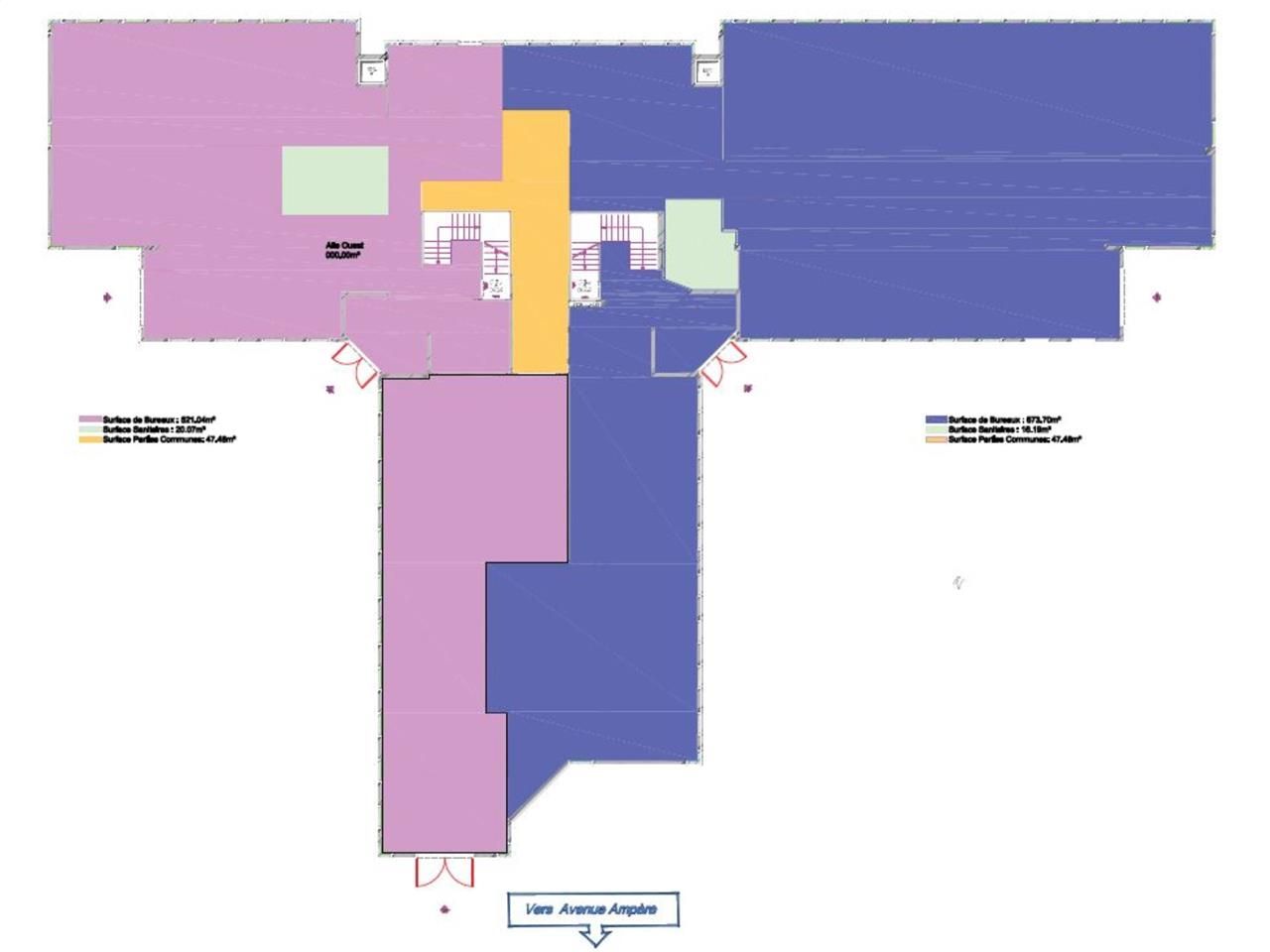
| Étage | Type | Surfaces | Dispo | Loyer | Charges | Type de bailRév. annuelle |
|---|---|---|---|---|---|---|
| 1 | Bureaux | 706 | 110 HT/HC/m²/an | 25 HT/m²/an | 3-6-9 ansSur l'indice ILAT | |
| RdC | Activités | 563 | 110 HT/HC/m²/an | 25 HT/m²/an | 3-6-9 ansSur l'indice ILAT | |
| Parkings | 3-6-9 ansSur l'indice ILAT | |||||
| Parkings | 3-6-9 ansSur l'indice ILAT |
Impôt Foncier : 16,5 €//m²/an
Régime Fiscal : T.V.A.
Dépôt de garantie : 3 mois de loyer HT/HC
Paiement Loyer : Trimestriel
Honoraires : 15 % HT du loyer annuel HT/HC à la charge du preneur.
Taxe Bureau : 8,27 €/m²/an
Information sur le Bail :
Assurance immeuble : 0,44 euros/m²/an/HT Frais d'actes : 750 euros/HT
Prestations :
- Le quartier du Pas du Lac constitue le poumon économique de l'agglomération avec plus de 1 million de m² de bureaux où se côtoient 40 000 salariés
- Ce quartier stratégique accueille des fleurons de l'économie française telles que Orange, la Banque Populaire, le Crédit Agricole, BMW, et prochainement Airbus
- Immeuble indépendant
- Surface RDC : 563 m²
Accessibilité:
Accès routier Autoroute A12, N12, N10
RER RER C "Saint Quentin en Yvelines"
SNCF Ligne U "Saint Quentin en Yvelines"
Bus Lignes 401, 67, 419, 414, 415, 458, 468
Les informations sur les risques auxquels ce bien est exposé sont disponibles sur le site Géorisques : www.georisques.gouv.fr
Voir plus
Afficher les consommations énergétiques
Localisation et transport aux alentours
Favoris
Exporter
Appeler
Contacter
Signaler cette annonce










