Conseil en immobilier d'entreprise, Cushman & Wakefield est un acteur incontournable au rayonnement international. Cushman & Wakefield offre des solutions dans toutes les étapes que comporte un p ...
En savoir plus



1 984 m²
HT HC
Location activité/entrepôt - 1984 m²
Le Plessis-Robinson (92350)
Dernière mise à jour : Il y a 2 jours
À louer - Immeuble indépendant à usage mixte - Le Plessis-Robinson
Situé dans la dynamique zone d'activités du Plessis-Robinson, nous vous proposons un immeuble indépendant à usage mixte bureaux/activité, d'une surface totale de 1 722 m². Ce bâtiment moderne, alliant fonctionnalité et confort, se distingue par sa polyvalence et la qualité de ses aménagements.
Le rez-de-chaussée, à usage mixte, dispose d'un accès livraison facilité par une porte sectionnelle de plain-pied, avec une hauteur sous plafond de 3,20 m, idéale pour les activités légères, le stockage ou la logistique urbaine.
L'étage est entièrement aménagé en bureaux, comprenant plusieurs bureaux individuels, une spacieuse salle de réunion, une grande salle de formation ainsi que des locaux d'archives. L'ensemble bénéficie d'un système de climatisation réversible assurant un confort optimal en toute saison.
Le site dispose de 63 places de stationnement, dont certaines en sous-sol, un véritable atout pour les utilisateurs et leurs visiteurs. Disponible immédiatement à la location, cet immeuble offre un cadre de travail agréable dans un environnement professionnel recherché, tout en conciliant parfaitement espace tertiaire et exploitation d'activité.
Pour tout complément d'information ou pour organiser une visite, n'hésitez pas à nous contacter.
Impôt Foncier : 34001 €//an
Régime Fiscal : T.V.A.
Dépôt de garantie : 3 mois de loyer HT/HC
Paiement Loyer : Trimestriel
Honoraires : 15 % HT du loyer annuel HT/HC à la charge du preneur.
Taxe Bureau : 14720 €/m²/an
Prestations :
Accessibilité:
Accès routier A86, N118, D906
Tram T6 Châtillon - Viroflay en 2014
Bus 595
RER B - Station Robinson
Les informations sur les risques auxquels ce bien est exposé sont disponibles sur le site Géorisques : www.georisques.gouv.fr
Situé dans la dynamique zone d'activités du Plessis-Robinson, nous vous proposons un immeuble indépendant à usage mixte bureaux/activité, d'une surface totale de 1 722 m². Ce bâtiment moderne, alliant fonctionnalité et confort, se distingue par sa polyvalence et la qualité de ses aménagements.
Le rez-de-chaussée, à usage mixte, dispose d'un accès livraison facilité par une porte sectionnelle de plain-pied, avec une hauteur sous plafond de 3,20 m, idéale pour les activités légères, le stockage ou la logistique urbaine.
L'étage est entièrement aménagé en bureaux, comprenant plusieurs bureaux individuels, une spacieuse salle de réunion, une grande salle de formation ainsi que des locaux d'archives. L'ensemble bénéficie d'un système de climatisation réversible assurant un confort optimal en toute saison.
Le site dispose de 63 places de stationnement, dont certaines en sous-sol, un véritable atout pour les utilisateurs et leurs visiteurs. Disponible immédiatement à la location, cet immeuble offre un cadre de travail agréable dans un environnement professionnel recherché, tout en conciliant parfaitement espace tertiaire et exploitation d'activité.
Pour tout complément d'information ou pour organiser une visite, n'hésitez pas à nous contacter.
| Étage | Type | Surfaces | Dispo | Loyer | Charges | Type de bailRév. annuelle |
|---|---|---|---|---|---|---|
| 1 | Bureaux | 967 | Immédiate | 150 HT/HC/m²/an | 3-6-9 ansSur l'indice ILAT | |
| RdC | Bureaux | 755 | Immédiate | 150 HT/HC/m²/an | 3-6-9 ansSur l'indice ILAT | |
| RdC | Activités | 218 | Immédiate | 150 HT/HC/m²/an | 3-6-9 ansSur l'indice ILAT | |
| Etage -1 | Arch./Reser. | 95 | Immédiate | 75 HT/HC/m²/an | 3-6-9 ansSur l'indice ILAT | |
| Etage -1 | Locaux sociaux | 44 | Immédiate | 3-6-9 ansSur l'indice ILAT | ||
| Parkings | Immédiate | 500 HT/HC/place/an | 3-6-9 ansSur l'indice ILAT |
Impôt Foncier : 34001 €//an
Régime Fiscal : T.V.A.
Dépôt de garantie : 3 mois de loyer HT/HC
Paiement Loyer : Trimestriel
Honoraires : 15 % HT du loyer annuel HT/HC à la charge du preneur.
Taxe Bureau : 14720 €/m²/an
Prestations :
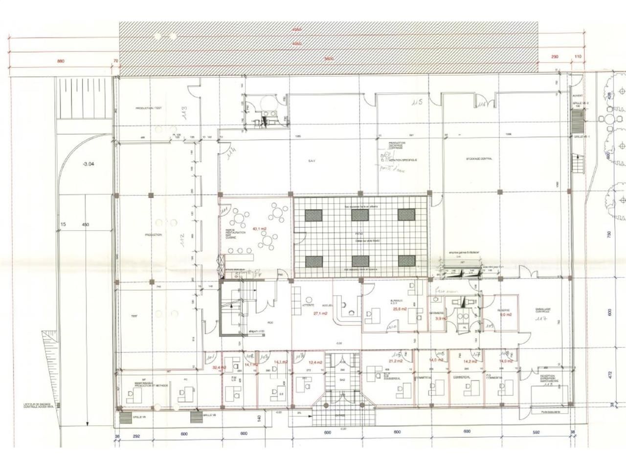
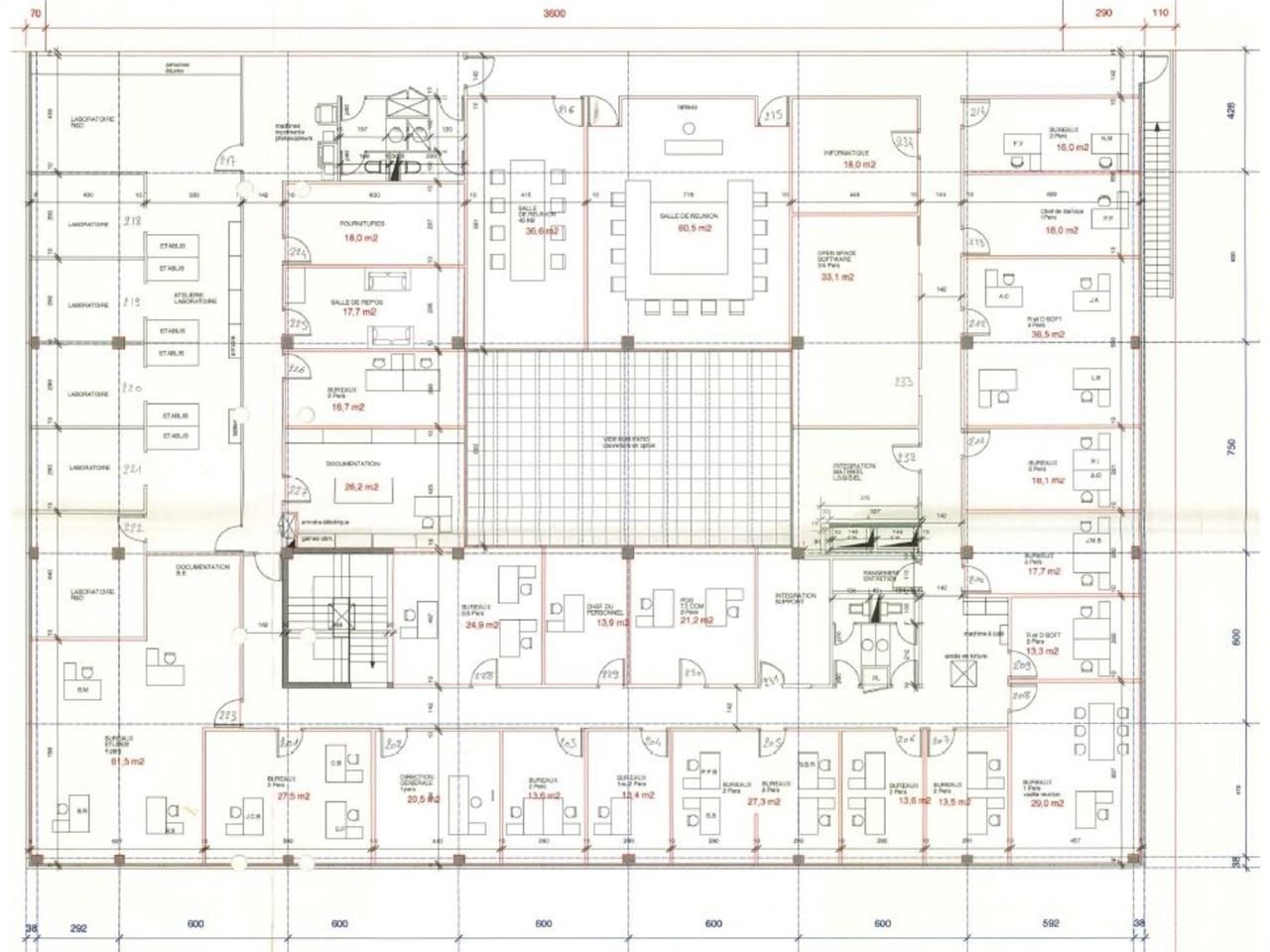
- Immeuble indépendant en R+2 élevé sur 2 niveaux de sous-sol
- construit en 2000
- Niveaux organisés autour d'un patio intérieur
- Le RDC est à usage mixte bureaux et activité et bénéficie d'un accès livraison grâce à une porte sectionnelles de plain pied et d'une hsp de 3,20m
- L'étage est composé de plusieurs bureaux individuels, d'une grande SDR, d'une grande salle de formation, et de locaux archives
- L'ensemble est équipé d'une climatisation réversible
- Le 1er niveau de sous-sol comprend des vestiaires avec douches, des archives et de 32 emplacements de parkings
- Le 2ème niveau de sous-sol comprend 31 emplacements de parkings
- Capacitaire : 85 personnes
- Immeuble indépendant
- Surface RDC : 973 m²
Accessibilité:
Accès routier A86, N118, D906
Tram T6 Châtillon - Viroflay en 2014
Bus 595
RER B - Station Robinson
Les informations sur les risques auxquels ce bien est exposé sont disponibles sur le site Géorisques : www.georisques.gouv.fr
Voir plus
Afficher les consommations énergétiques
Localisation et transport aux alentours
Favoris
Exporter
Appeler
Contacter
Signaler cette annonce

