Depuis plus de 20 ans, EOL est l'un des leaders de l'immobilier industriel, logistique et retail, spécialisé dans 3 métiers : la transaction, le conseil en investissement et l'assistance à maîtrise ...
En savoir plus

4 774 m² divisible dès 2 019 m²
HT HC
Location activité/entrepôt - 4774 m²
Aubervilliers (93300)
Publiée : Il y a 13 jours
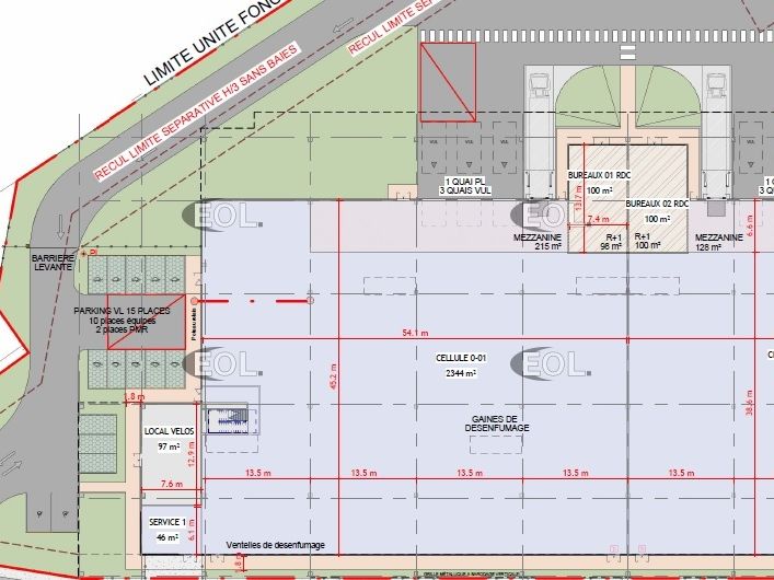
A louer, surfaces concues pour optimiser vos flux d'activité et de stockage à Aubervilliers (93)
EOL vous présente à la location des surfaces concues pour optimiser vos flux d'activité et de stockage à Aubervilliers (93).
Ce projet d'immeuble neuf en étage, dispose d'une surface d'environ 5 000 m² au rez de chaussée divisible à partir de 2 000 m² environ.
Une localisation stratégique au pied de l'A86, à moins de 4 km des Portes de Paris (La Villette/Aubervilliers), idéale pour la logistique du "dernier kilomètre".
Disposant de nombreuses fonctionnalités et d'atouts techniques : quais de déchargement, cour de manoeuvre pour les poids lourds, stationnement VL... ce projet s'adapte à de nombreuses activités.
Superficies :
Description :
Bâtiment indépendant : oui
Etat général : A construire (PC obtenu){à construire}
Disponibilité : nous consulter
Caractéristiques :
Hauteur :
Accès à quai : 4
Conditions financières (HT) :
Loyer global HT-HC/an : 0 €
Loyer global HT-HC/m²/an : 200 €
Charges (HT) & Taxes :
Charges locatives : 0 €/m²
Charges de copropriété : 0 €/m²
EOL vous présente à la location des surfaces concues pour optimiser vos flux d'activité et de stockage à Aubervilliers (93).
Ce projet d'immeuble neuf en étage, dispose d'une surface d'environ 5 000 m² au rez de chaussée divisible à partir de 2 000 m² environ.
Une localisation stratégique au pied de l'A86, à moins de 4 km des Portes de Paris (La Villette/Aubervilliers), idéale pour la logistique du "dernier kilomètre".
Disposant de nombreuses fonctionnalités et d'atouts techniques : quais de déchargement, cour de manoeuvre pour les poids lourds, stationnement VL... ce projet s'adapte à de nombreuses activités.
Superficies :
Description :
Bâtiment indépendant : oui
Etat général : A construire (PC obtenu){à construire}
Disponibilité : nous consulter
Caractéristiques :
Hauteur :
Accès à quai : 4
Conditions financières (HT) :
Loyer global HT-HC/an : 0 €
Loyer global HT-HC/m²/an : 200 €
Charges (HT) & Taxes :
Charges locatives : 0 €/m²
Charges de copropriété : 0 €/m²
| Étage | Type | Surfaces (m²) | Dispo | Parking Ext. | Hauteur ss Plafond |
|---|---|---|---|---|---|
| RDC | activités / bureaux | 2019 | nous consulter | 0.00 | |
| RDC | activités / bureaux | 2755 | nous consulter | 0.00 |
| Fiche technique du bien | |
|---|---|
| Hauteur Sous ferme (m) | 0.00 |
| Type de chauffage | Inconnu |
| Nombre de quais | 4 |
Voir plus
Afficher les consommations énergétiques
Surfaces divisibles : 2
| Surface | LoyerHT/HC/m²/an | Étage / Batiment |
| 2019 m² | 115 € | RDC |
| 2755 m² | 115 € | RDC |
Favoris
Exporter
Appeler
Contacter
Signaler cette annonce










