A l’appui d’un réseau leader à l’international, I&L Solutions est une équipe de plus de 70 professionnels spécialisés en immobilier Logistique et Industriel au service des investisseurs, des propri ...
En savoir plus

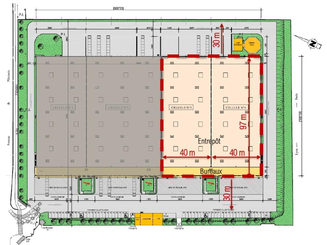
8 719 m² divisible dès 375 m²
HT HC
Location activité/entrepôt - 8719 m²
Les Ulis (91940)
Dernière mise à jour : Il y a 1 mois
CBRE vous propose à la location, dans la Zone de Courtaboeuf aux Ulis (91), deux cellules d'entrepôt (Cellule 3 et 4) sous grande hauteur et traversante avec bureaux d'accompagnement, en excellent état général, d'une surface de 8 755 m² divisible à partir de 4 272 m². ICPE : 1510, 1530, 2925. Location entrepôt idéal pour le développement de vos activités professionnel. Disponibilité immédiate
Les Ulis (91), se situe à environ 24 km au Sud-Ouest de Paris,
dans le département de l'Essonne en région Ile-de-France.
Régime Fiscal : T.V.A.
Honoraires : 15 % HT d'une année de loyer HT/HC à la charge du preneur
Information sur le Bail :
TF/TB/TASS : 15,50 euros/m²/an Assurance : 2 euros/m²/an
Prestations :
Accessibilité:
Route A10, A6, A86 et N104
RER RER B Gare d'Orsay Ville et C Gare de Massy Palaiseau
Bus Ligne 0602 Massy/Courtaboeuf , arrêt "Château d'eau", ligne 0605 Orsay/Courtaboeuf, arrêt "Océanie 1"
Les informations sur les risques auxquels ce bien est exposé sont disponibles sur le site Géorisques : www.georisques.gouv.fr
Les Ulis (91), se situe à environ 24 km au Sud-Ouest de Paris,
dans le département de l'Essonne en région Ile-de-France.
| Étage | Type | Surfaces | Dispo | Loyer | Charges | Type de bailRév. annuelle |
|---|---|---|---|---|---|---|
| RDC | Entrepôts | 3897 | Novembre 2025 | 140 HT/HC/m²/an | 10,5 HT/m²/an | 3-6-9 ansIndice ILAT |
| RDC | Entrepôts | 3897 | Novembre 2025 | 140 HT/HC/m²/an | 10,5 HT/m²/an | 3-6-9 ansIndice ILAT |
| 1 | Bureaux | 550 | Immédiate | 140 HT/HC/m²/an | 10,5 HT/m²/an | 3-6-9 ansIndice ILAT |
| 1 | Bureaux | 375 | Immédiate | 140 HT/HC/m²/an | 10,5 HT/m²/an | 3-6-9 ansIndice ILAT |
Régime Fiscal : T.V.A.
Honoraires : 15 % HT d'une année de loyer HT/HC à la charge du preneur
Information sur le Bail :
TF/TB/TASS : 15,50 euros/m²/an Assurance : 2 euros/m²/an
Prestations :
- Ossature métallique
- Murs bardage double peau
- Couverture bac acier isolé étanchéité multicouche
- Hauteur sous poutre : 7,5
- Charge au sol : 3 T/m²
- Local de charge
- Site clos et sous vidéosurveillance
- Sprinklers
- Cours camion : 30 m
- Cellule 3
- Portes plain-pied : 3
- Portes à quais : 9
- Place de parking : 27
- Cellule 4
- Portes plain-pied : 1
- Portes à quais : 9
- Place de parking : 29
- Surface RDC : 7652 m²
- ICPE :
- Enregistrements : 1510
- Déclarations : 1530,2925
- Bâtiment classe :B
Accessibilité:
Route A10, A6, A86 et N104
RER RER B Gare d'Orsay Ville et C Gare de Massy Palaiseau
Bus Ligne 0602 Massy/Courtaboeuf , arrêt "Château d'eau", ligne 0605 Orsay/Courtaboeuf, arrêt "Océanie 1"
Les informations sur les risques auxquels ce bien est exposé sont disponibles sur le site Géorisques : www.georisques.gouv.fr
Voir plus
Afficher les consommations énergétiques
Favoris
Exporter
Appeler
Contacter
Signaler cette annonce










