A l’appui d’un réseau leader à l’international, I&L Solutions est une équipe de plus de 70 professionnels spécialisés en immobilier Logistique et Industriel au service des investisseurs, des propri ...
En savoir plus

5 315 m² divisible dès 178 m²
Loyer sur demande
Location activité/entrepôt - 5315 m²
Saint-Ouen-l'Aumône (95310)
Dernière mise à jour : Il y a 14 jours
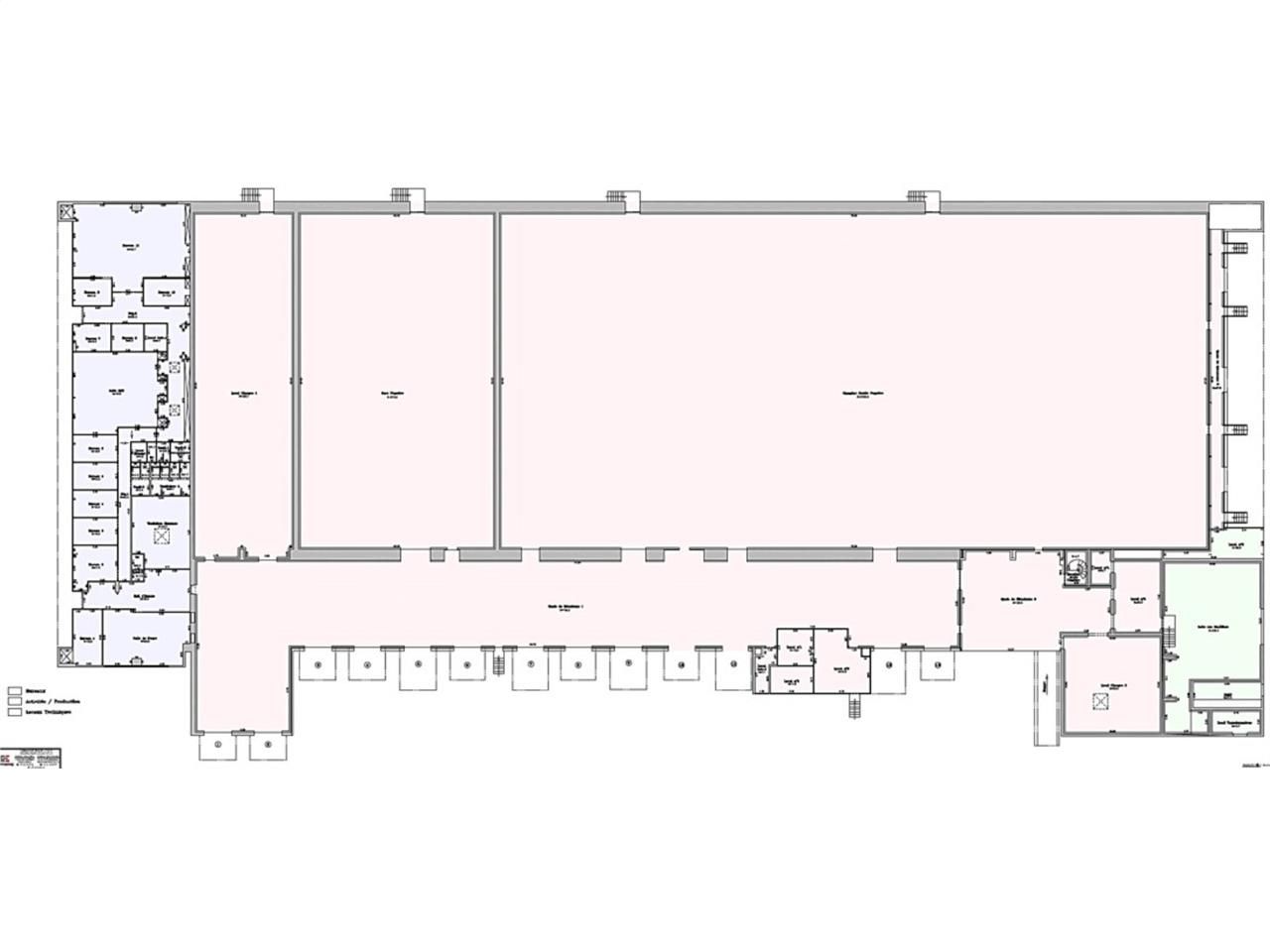
CBRE vous propose à louer, un bâtiment indépendant d'activités situé sur la commune de Saint Ouen l'aumône dans le département du Val d'Oise (95). A proximité de l'autoroute A15, sur la ligne H du transilien. Il est proposé en entrepôt frigorifique ou en entrepôt sec. Entrepôt sprinklé avec de nombreuses portes à quai et de portes plain-pied. Belle surface de 5315 m² divisibles. Location entrepôt idéal pour le développement de vos activités professionnelles. Bail commercial. Disponible immédiatement.
Si cet entrepôt/local d'activités à louer dans le 95 vous intéresse ou si vous souhaitez obtenir plus de renseignements, n'hésitez pas à me contacter aujourd'hui pour organiser une visite et bénéficier de toutes les informations nécessaires pour votreprojet immobilier.
En tant qu'expert en immobilier professionnel/industriel, je suis à votre disposition pour vous aider à trouver le bien adapté à vos activités professionnelles et à votre coeur de métier.
Régime Fiscal : T.V.A.
Dépôt de garantie : 3 mois de loyer HT/HC
Honoraires : 15 % HT d'un loyer annuel HT/HC à la charge du preneur
Information sur le Bail :
Froid négatif : Loyer annuel 700 000 euros HT HC Stockage Sec/activité : Loyer annuel 500 000 euros HT HC Dépôt de garantie : 175 000 euros Charges : A déterminer (redevance SACV dite Le Parc, entretien, installations froid, fluides .) Taxe foncière 48 900,00 euros (2024) Taxes bureaux : 3 151,00 euros (2025) Assurance bailleur : 16 035,00 euros (2025)
Prestations :
Accessibilité:
. RER C - Station "Liesse"
. RER A - Station "Cergy-Préfecture"
. Route : A15 - N14 - N184
. SNCF : "Gare du Nord" "Saint Lazare"
Les informations sur les risques auxquels ce bien est exposé sont disponibles sur le site Géorisques : www.georisques.gouv.fr
Si cet entrepôt/local d'activités à louer dans le 95 vous intéresse ou si vous souhaitez obtenir plus de renseignements, n'hésitez pas à me contacter aujourd'hui pour organiser une visite et bénéficier de toutes les informations nécessaires pour votreprojet immobilier.
En tant qu'expert en immobilier professionnel/industriel, je suis à votre disposition pour vous aider à trouver le bien adapté à vos activités professionnelles et à votre coeur de métier.
| Étage | Type | Surfaces | Dispo | Loyer | Charges | Type de bailRév. annuelle |
|---|---|---|---|---|---|---|
| RDC | Activités | 4595,1 | Immédiate | 3-6-9 ansIndice ILAT | ||
| R1 | Entrepôts | 542,1 | Immédiate | 3-6-9 ansIndice ILAT | ||
| RDC | Entrepôts | 178,2 | Immédiate | 3-6-9 ansIndice ILAT |
Régime Fiscal : T.V.A.
Dépôt de garantie : 3 mois de loyer HT/HC
Honoraires : 15 % HT d'un loyer annuel HT/HC à la charge du preneur
Information sur le Bail :
Froid négatif : Loyer annuel 700 000 euros HT HC Stockage Sec/activité : Loyer annuel 500 000 euros HT HC Dépôt de garantie : 175 000 euros Charges : A déterminer (redevance SACV dite Le Parc, entretien, installations froid, fluides .) Taxe foncière 48 900,00 euros (2024) Taxes bureaux : 3 151,00 euros (2025) Assurance bailleur : 16 035,00 euros (2025)
Prestations :
- SPECIFICATIONS :
- Foncier : 30 000 m²
- Bâtiment indépendant développant une surface totale de 5 316 m²
- Date de construction 2001
- Cuves : 4500 litres gazole
- Compartiment 5000 l fuel
- Tarif vert
- 2 tours aero
- LE FROID :
- 1 chambre froide négative : 2 740m² 22 degrés Hauteur : 7,40 m
- 1 chambre froide négative : 600 m² 22 degrés - Hauteur : 4,20 m
- 1 chambre produit sec : 350 m²
- EQUIPEMENTS :
- 13 portes à quai
- accès plain-pied
- Sprinkler
- R.I.A.
- Chauffage
- Cour de débord
- Parkings VL
- Parkings PL
- Immeuble indépendant
- Surface RDC : 4773,3 m²
- Surface terrain : 0
Accessibilité:
. RER C - Station "Liesse"
. RER A - Station "Cergy-Préfecture"
. Route : A15 - N14 - N184
. SNCF : "Gare du Nord" "Saint Lazare"
Les informations sur les risques auxquels ce bien est exposé sont disponibles sur le site Géorisques : www.georisques.gouv.fr
Voir plus
Afficher les consommations énergétiques
Favoris
Exporter
Appeler
Contacter
Signaler cette annonce
