A l’appui d’un réseau leader à l’international, I&L Solutions est une équipe de plus de 70 professionnels spécialisés en immobilier Logistique et Industriel au service des investisseurs, des propri ...
En savoir plus

1 189 m²
HT HC
Location activité/entrepôt - 1189 m²
Chilly-Mazarin (91380)
Dernière mise à jour : Hier
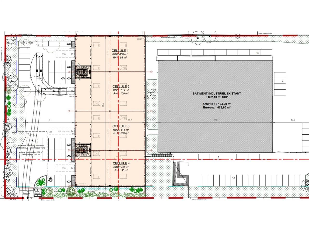
CBRE vous propose à louer un entrepôt/local d'activités avec bureaux d'accompagnement dans un bâtiment indépendant situé sur la commune de Chilly-Mazarin dans le département de l'Essonne (91). Excellente localisation et très bonne visibilité commerciale, à proximité de l'autoroute A6/A10 et de la Nationale N20. Ce local industriel bénéficie de 2 portes sectionnelles et d'une surface extérieure disponible permettant un espace de parking ou de stockage. Belle surface de 1 189 m² non divisibles. Location entrepôt idéal pour le développement de vos activités professionnelles. Bail commercial. Disponibilité immédiate.
Si cet entrepôt/local d'activités à louer dans le 91 vous intéresse ou si vous souhaitez obtenir plus de renseignements, n'hésitez pas à me contacter aujourd'hui pour organiser une visite et bénéficier de toutes les informations nécessaires pour votreprojet immobilier.
En tant qu'expert en immobilier professionnel/industriel, je suis à votre disposition pour vous aider à trouver le bien adapté à vos activités professionnelles et à votre coeur de métier.
Impôt Foncier : 5,2 €/m² an
Régime Fiscal : T.V.A.
Dépôt de garantie : 3 mois de loyer HT/HC
Paiement Loyer : trimestriel
Honoraires : 15% HT d'une année de loyer annuel HT/HC à la charge du preneur
Information sur le Bail :
Autres taxes: 2,17 euros/m²
Prestations :
Accessibilité:
Autoroute A6 - N20
RER Ligne C - "Longjumeau"
Les informations sur les risques auxquels ce bien est exposé sont disponibles sur le site Géorisques : www.georisques.gouv.fr
Si cet entrepôt/local d'activités à louer dans le 91 vous intéresse ou si vous souhaitez obtenir plus de renseignements, n'hésitez pas à me contacter aujourd'hui pour organiser une visite et bénéficier de toutes les informations nécessaires pour votreprojet immobilier.
En tant qu'expert en immobilier professionnel/industriel, je suis à votre disposition pour vous aider à trouver le bien adapté à vos activités professionnelles et à votre coeur de métier.
| Étage | Type | Surfaces | Dispo | Loyer | Charges | Type de bailRév. annuelle |
|---|---|---|---|---|---|---|
| RDC | Activités | 982 | Immédiate | 150 m²/an HT HC | 11,1 m²/an HT | 3-6-9 ansIndice ILAT |
| 1 | Bureaux | 207 | Immédiate | 150 m²/an HT HC | 11,1 m²/an HT | 3-6-9 ansIndice ILAT |
Impôt Foncier : 5,2 €/m² an
Régime Fiscal : T.V.A.
Dépôt de garantie : 3 mois de loyer HT/HC
Paiement Loyer : trimestriel
Honoraires : 15% HT d'une année de loyer annuel HT/HC à la charge du preneur
Information sur le Bail :
Autres taxes: 2,17 euros/m²
Prestations :
- Site clos et sécurisé
- Equipé en éclairage LED
- Le lot possède 2 portes sectionnelles
- Hauteur libre exploitable de 7,5 m
- Charge au sol de 3t/m²
- Aérotherme
- Compteurs électriques par lot de 38kVA
- Places de stationnement privatifs et un local à vélos
- Installation de caméra de vidéosurveillance possible à la demande du locataire
- Surface RDC : 982 m²
- Surface terrain : 11836
Accessibilité:
Autoroute A6 - N20
RER Ligne C - "Longjumeau"
Les informations sur les risques auxquels ce bien est exposé sont disponibles sur le site Géorisques : www.georisques.gouv.fr
Voir plus
Afficher les consommations énergétiques
Favoris
Exporter
Appeler
Contacter
Signaler cette annonce










