A l’appui d’un réseau leader à l’international, I&L Solutions est une équipe de plus de 70 professionnels spécialisés en immobilier Logistique et Industriel au service des investisseurs, des propri ...
En savoir plus

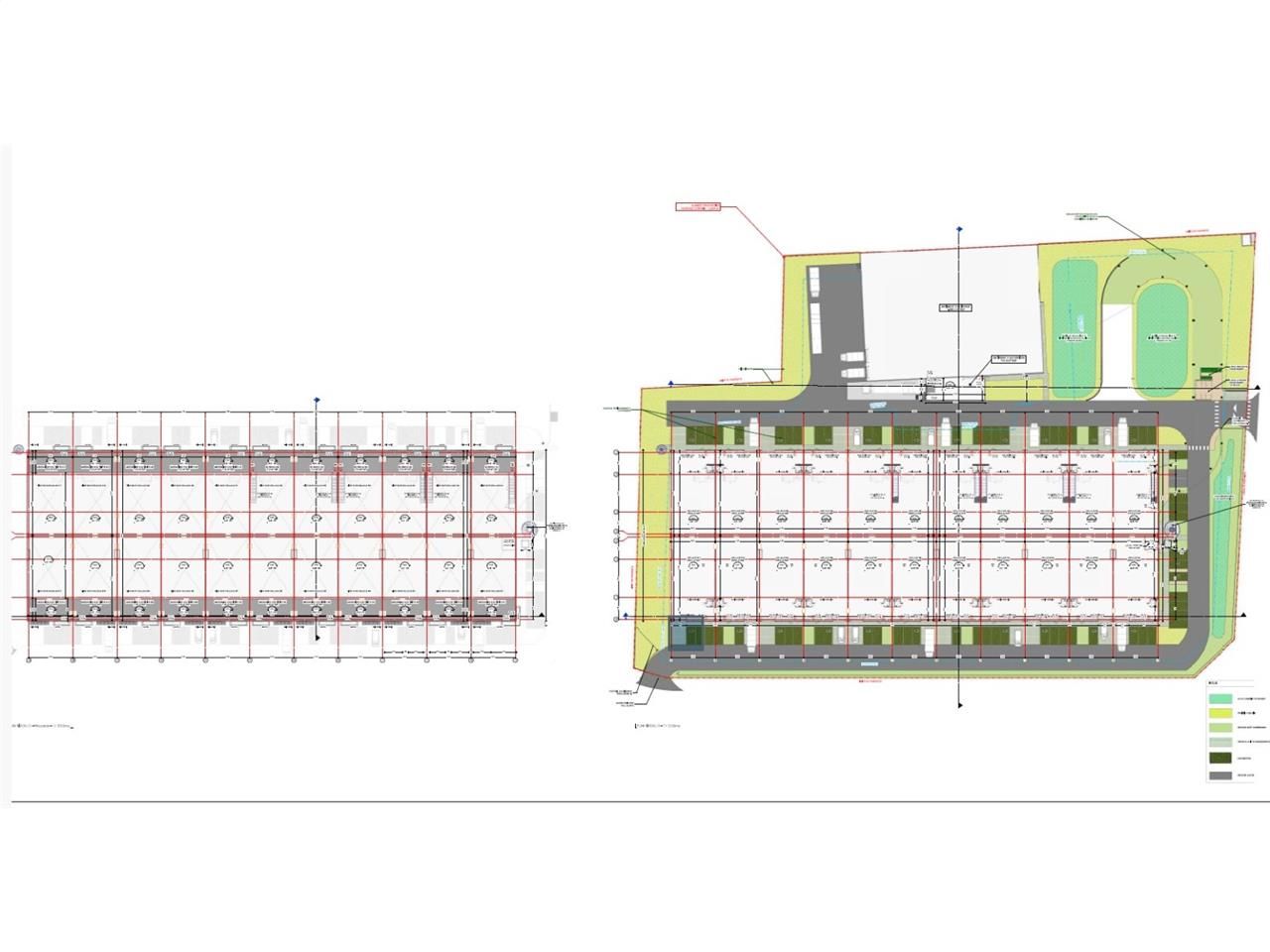
8 970 m² divisible dès 339 m²
HT HC
Location activité/entrepôt - 8970 m²
Bobigny (93000)
Dernière mise à jour : Il y a 2 mois
CBRE vous propose à louer, un bâtiment indépendant d'activités situé sur la commune de Bobigny dans le département de la Seine-Saint-Denis (93). À seulement 18 km de Paris, à proximité des autoroutes A1, A86 sur la ligne E du RER d'Île-de-France. Ces locaux industriels sont édifiés sur un site clos qui disposent d'une porte à quai, d'un accès gros porteurs et plusieurs places de parking. Belle surface de 8970 m² divisibles à partir de 339 m². Location entrepôt idéal pour le développement de vos activités professionnelles. Bail commercial. Disponibilité Février 2026.
Si cet entrepôt/local d'activités à louer dans le 93 vous intéresse ou si vous souhaitez obtenir plus de renseignements, n'hésitez pas à me contacter aujourd'hui pour organiser une visite et bénéficier de toutes les informations nécessaires pour votreprojet immobilier.
En tant qu'expert en immobilier professionnel/industriel, je suis à votre disposition pour vous aider à trouver le bien adapté à vos activités professionnelles et à votre coeur de métier.
Impôt Foncier : 12,85 €/m²/an
Régime Fiscal : T.V.A.
Dépôt de garantie : 3 mois de loyer HT/HC
Honoraires : 15% HT du loyer annuel HT/HC à la charge du preneur
Prestations :
Accessibilité:
Bus RUE DE LA GARE (134, 234, 251)
Tramway LIBERATION (T1)
RER Ligne E "Pantin" à 2.8 km
Metro Ligne 5 "Pablo Picasso" - TRAM 1 à 1.4 km
Autoroute A1 - A86 "Bobigny - Hôpital Avicenne"
Route Périphérique : Porte de Pantin
Les informations sur les risques auxquels ce bien est exposé sont disponibles sur le site Géorisques : www.georisques.gouv.fr
Si cet entrepôt/local d'activités à louer dans le 93 vous intéresse ou si vous souhaitez obtenir plus de renseignements, n'hésitez pas à me contacter aujourd'hui pour organiser une visite et bénéficier de toutes les informations nécessaires pour votreprojet immobilier.
En tant qu'expert en immobilier professionnel/industriel, je suis à votre disposition pour vous aider à trouver le bien adapté à vos activités professionnelles et à votre coeur de métier.
| Étage | Type | Surfaces | Dispo | Loyer | Charges | Type de bailRév. annuelle |
|---|---|---|---|---|---|---|
| RDC | Activités | 279 | Février 2026 | 155 m²/an HT HC | 12 HT/m²/an | Indice ILAT |
| MEZ | Bureaux | 73 | Février 2026 | 155 m²/an HT HC | 12 HT/m²/an | Indice ILAT |
| Total Cellule B 1 | Activités | 352 | Février 2026 | 155 m²/an HT HC | 12 HT/m²/an | 3-6-9 ansIndice ILAT |
| RDC | Activités | 279 | Février 2026 | 155 m²/an HT HC | 12 HT/m²/an | Indice ILAT |
| MEZ | Bureaux | 73 | Février 2026 | 155 m²/an HT HC | 12 HT/m²/an | Indice ILAT |
| Total Cellule B11 | Activités | 352 | Février 2026 | 155 m²/an HT HC | 12 HT/m²/an | 3-6-9 ansIndice ILAT |
| MEZ | Bureaux | 73 | Février 2026 | 135 m²/an HT HC | 12 HT/m²/an | Indice ILAT |
| 1 | Activités | 276 | Février 2026 | 135 m²/an HT HC | 12 HT/m²/an | Indice ILAT |
| Total Cellule C11 | Activités | 349 | Février 2026 | 135 m²/an HT HC | 12 HT/m²/an | 3-6-9 ansIndice ILAT |
| RDC | Activités | 276 | Février 2026 | 155 m²/an HT HC | 12 HT/m²/an | Indice ILAT |
| MEZ | Bureaux | 72 | Février 2026 | 155 m²/an HT HC | 12 HT/m²/an | Indice ILAT |
| Total Cellule B 2 | Activités | 348 | Février 2026 | 155 m²/an HT HC | 12 HT/m²/an | 3-6-9 ansIndice ILAT |
| RDC | Activités | 276 | Février 2026 | 155 m²/an HT HC | 12 HT/m²/an | Indice ILAT |
| MEZ | Bureaux | 72 | Février 2026 | 155 m²/an HT HC | 12 HT/m²/an | Indice ILAT |
| Total Cellule B 3 | Activités | 348 | Février 2026 | 155 m²/an HT HC | 12 HT/m²/an | 3-6-9 ansIndice ILAT |
| RDC | Activités | 276 | Février 2026 | 155 m²/an HT HC | 12 HT/m²/an | Indice ILAT |
| MEZ | Bureaux | 72 | Février 2026 | 155 m²/an HT HC | 12 HT/m²/an | Indice ILAT |
| Total Cellule B 4 | Activités | 348 | Février 2026 | 155 m²/an HT HC | 12 HT/m²/an | 3-6-9 ansIndice ILAT |
| RDC | Activités | 276 | Février 2026 | 155 m²/an HT HC | 12 HT/m²/an | Indice ILAT |
| MEZ | Bureaux | 72 | Février 2026 | 155 m²/an HT HC | 12 HT/m²/an | Indice ILAT |
| Total Cellule B 5 | Activités | 348 | Février 2026 | 155 m²/an HT HC | 12 HT/m²/an | 3-6-9 ansIndice ILAT |
| RDC | Activités | 276 | Février 2026 | 155 m²/an HT HC | 12 HT/m²/an | Indice ILAT |
| MEZ | Bureaux | 72 | Février 2026 | 155 m²/an HT HC | 12 HT/m²/an | Indice ILAT |
| Total Cellule B 6 | Activités | 348 | Février 2026 | 155 m²/an HT HC | 12 HT/m²/an | 3-6-9 ansIndice ILAT |
| RDC | Activités | 276 | Février 2026 | 155 m²/an HT HC | 12 HT/m²/an | Indice ILAT |
| MEZ | Bureaux | 72 | Février 2026 | 155 m²/an HT HC | 12 HT/m²/an | Indice ILAT |
| Total Cellule B 7 | Activités | 348 | Février 2026 | 155 m²/an HT HC | 12 HT/m²/an | 3-6-9 ansIndice ILAT |
| RDC | Activités | 276 | Février 2026 | 155 m²/an HT HC | 12 HT/m²/an | Indice ILAT |
| MEZ | Bureaux | 72 | Février 2026 | 155 m²/an HT HC | 12 HT/m²/an | Indice ILAT |
| Total Cellule B 8 | Activités | 348 | Février 2026 | 155 m²/an HT HC | 12 HT/m²/an | 3-6-9 ansIndice ILAT |
| RDC | Activités | 276 | Février 2026 | 155 m²/an HT HC | 12 HT/m²/an | Indice ILAT |
| MEZ | Bureaux | 72 | Février 2026 | 155 m²/an HT HC | 12 HT/m²/an | Indice ILAT |
| Total Cellule B 9 | Activités | 348 | Février 2026 | 155 m²/an HT HC | 12 HT/m²/an | 3-6-9 ansIndice ILAT |
| RDC | Activités | 276 | Février 2026 | 155 m²/an HT HC | 12 HT/m²/an | Indice ILAT |
| MEZ | Bureaux | 72 | Février 2026 | 155 m²/an HT HC | 12 HT/m²/an | Indice ILAT |
| Total Cellule B10 | Activités | 348 | Février 2026 | 155 m²/an HT HC | 12 HT/m²/an | 3-6-9 ansIndice ILAT |
| MEZ | Bureaux | 72 | Février 2026 | 135 m²/an HT HC | 12 HT/m²/an | Indice ILAT |
| 1 | Activités | 273 | Février 2026 | 135 m²/an HT HC | 12 HT/m²/an | Indice ILAT |
| Total Cellule C 7 | Activités | 345 | Février 2026 | 135 m²/an HT HC | 12 HT/m²/an | 3-6-9 ansIndice ILAT |
| MEZ | Bureaux | 72 | Février 2026 | 135 m²/an HT HC | 12 HT/m²/an | Indice ILAT |
| 1 | Activités | 273 | Février 2026 | 135 m²/an HT HC | 12 HT/m²/an | Indice ILAT |
| Total Cellule C10 | Activités | 345 | Février 2026 | 135 m²/an HT HC | 12 HT/m²/an | 3-6-9 ansIndice ILAT |
| MEZ | Bureaux | 72 | Février 2026 | 135 m²/an HT HC | 12 HT/m²/an | Indice ILAT |
| 1 | Activités | 273 | Février 2026 | 135 m²/an HT HC | 12 HT/m²/an | Indice ILAT |
| Total Cellule C 8 | Activités | 345 | Février 2026 | 135 m²/an HT HC | 12 HT/m²/an | 3-6-9 ansIndice ILAT |
| MEZ | Bureaux | 72 | Février 2026 | 135 m²/an HT HC | 12 HT/m²/an | Indice ILAT |
| 1 | Activités | 273 | Février 2026 | 135 m²/an HT HC | 12 HT/m²/an | Indice ILAT |
| Total Cellule C 9 | Activités | 345 | Février 2026 | 135 m²/an HT HC | 12 HT/m²/an | 3-6-9 ansIndice ILAT |
| RDC | Activités | 270 | Février 2026 | 155 m²/an HT HC | 12 HT/m²/an | Indice ILAT |
| MEZ | Bureaux | 72 | Février 2026 | 155 m²/an HT HC | 12 HT/m²/an | Indice ILAT |
| Total Cellule A 3 | Activités | 342 | Février 2026 | 155 m²/an HT HC | 12 HT/m²/an | 3-6-9 ansIndice ILAT |
| RDC | Activités | 270 | Février 2026 | 155 m²/an HT HC | 12 HT/m²/an | Indice ILAT |
| MEZ | Bureaux | 72 | Février 2026 | 155 m²/an HT HC | 12 HT/m²/an | Indice ILAT |
| Total Cellule A 4 | Activités | 342 | Février 2026 | 155 m²/an HT HC | 12 HT/m²/an | 3-6-9 ansIndice ILAT |
| RDC | Activités | 270 | Février 2026 | 155 m²/an HT HC | 12 HT/m²/an | Indice ILAT |
| MEZ | Bureaux | 72 | Février 2026 | 155 m²/an HT HC | 12 HT/m²/an | Indice ILAT |
| Total Cellule A 5 | Activités | 342 | Février 2026 | 155 m²/an HT HC | 12 HT/m²/an | 3-6-9 ansIndice ILAT |
| RDC | Activités | 270 | Février 2026 | 155 m²/an HT HC | 12 HT/m²/an | Indice ILAT |
| MEZ | Bureaux | 72 | Février 2026 | 155 m²/an HT HC | 12 HT/m²/an | Indice ILAT |
| Total Cellule A 6 | Activités | 342 | Février 2026 | 155 m²/an HT HC | 12 HT/m²/an | 3-6-9 ansIndice ILAT |
| MEZ | Bureaux | 73 | Février 2026 | 180 m²/an HT HC | 12 HT/m²/an | Indice ILAT |
| 1 | Activités | 269 | Février 2026 | 135 m²/an HT HC | 12 HT/m²/an | Indice ILAT |
| Total Cellule C 1 | Activités | 342 | Février 2026 | 145 m²/an HT HC | 12 HT/m²/an | 3-6-9 ansIndice ILAT |
| MEZ | Bureaux | 72 | Février 2026 | 135 m²/an HT HC | 12 HT/m²/an | Indice ILAT |
| 1 | Activités | 267 | Février 2026 | 135 m²/an HT HC | 12 HT/m²/an | Indice ILAT |
| Total Cellule C 2 | Activités | 339 | Février 2026 | 135 m²/an HT HC | 12 HT/m²/an | 3-6-9 ansIndice ILAT |
| MEZ | Bureaux | 72 | Février 2026 | 135 m²/an HT HC | 12 HT/m²/an | Indice ILAT |
| 1 | Activités | 267 | Février 2026 | 135 m²/an HT HC | 12 HT/m²/an | Indice ILAT |
| Total Cellule C 3 | Activités | 339 | Février 2026 | 135 m²/an HT HC | 12 HT/m²/an | 3-6-9 ansIndice ILAT |
| MEZ | Bureaux | 72 | Février 2026 | 135 m²/an HT HC | 12 HT/m²/an | Indice ILAT |
| 1 | Activités | 267 | Février 2026 | 135 m²/an HT HC | 12 HT/m²/an | Indice ILAT |
| Total Cellule C 4 | Activités | 339 | Février 2026 | 135 m²/an HT HC | 12 HT/m²/an | 3-6-9 ansIndice ILAT |
| MEZ | Bureaux | 72 | Février 2026 | 135 m²/an HT HC | 12 HT/m²/an | Indice ILAT |
| 1 | Activités | 267 | Février 2026 | 135 m²/an HT HC | 12 HT/m²/an | Indice ILAT |
| Total Cellule C 5 | Activités | 339 | Février 2026 | 135 m²/an HT HC | 12 HT/m²/an | 3-6-9 ansIndice ILAT |
| MEZ | Bureaux | 72 | Février 2026 | 135 m²/an HT HC | 12 HT/m²/an | Indice ILAT |
| 1 | Activités | 267 | Février 2026 | 135 m²/an HT HC | 12 HT/m²/an | Indice ILAT |
| Total Cellule C 6 | Activités | 339 | Février 2026 | 135 m²/an HT HC | 12 HT/m²/an | 3-6-9 ansIndice ILAT |
Impôt Foncier : 12,85 €/m²/an
Régime Fiscal : T.V.A.
Dépôt de garantie : 3 mois de loyer HT/HC
Honoraires : 15% HT du loyer annuel HT/HC à la charge du preneur
Prestations :
- Site clos
- Bureaux privatifs
- 3 cellules aménagées : sanitaire PMR en RDC, dalles PVC imitation parquet, faux plafond et climatisation réversible
- Porte sectionnelle : 3.50 m x 3.50 m
- Hauteur sous plafond RDC : 8 m et 4.24 m sous mezzanine
- Hauteur sous plafond R+1 : 6.9 m et 3.8 m sous mezzanine
- Charge au sol RDC : 3T/m² et 350 Kg/m² pour les mezzanines
- Charge au sol R+1 : 1T/m² et 350 Kg/m² pour les mezzanines
- Tarif bleu
- Accès étage par une rampe pour véhicules de 7.5 tonnes maximum
- RIA
- Parking : 104 emplacements soit 4 par Cellules
- Certification : BREEAM GOOD
- Immeuble indépendant
- Surface RDC : 4122 m²
- Accès bâtiment :
. Gros porteurs & moyens porteurs - Murs périmétriques : Bardage double peau
- Couverture : Bac acier isolé étanchéité multicouche
Accessibilité:
Bus RUE DE LA GARE (134, 234, 251)
Tramway LIBERATION (T1)
RER Ligne E "Pantin" à 2.8 km
Metro Ligne 5 "Pablo Picasso" - TRAM 1 à 1.4 km
Autoroute A1 - A86 "Bobigny - Hôpital Avicenne"
Route Périphérique : Porte de Pantin
Les informations sur les risques auxquels ce bien est exposé sont disponibles sur le site Géorisques : www.georisques.gouv.fr
Voir plus
Afficher les consommations énergétiques
Favoris
Exporter
Appeler
Contacter
Signaler cette annonce










