A l’appui d’un réseau leader à l’international, I&L Solutions est une équipe de plus de 70 professionnels spécialisés en immobilier Logistique et Industriel au service des investisseurs, des propri ...
En savoir plus

682 m²
HT HC
Location activité/entrepôt - 682 m²
Argenteuil (95100)
Dernière mise à jour : Hier
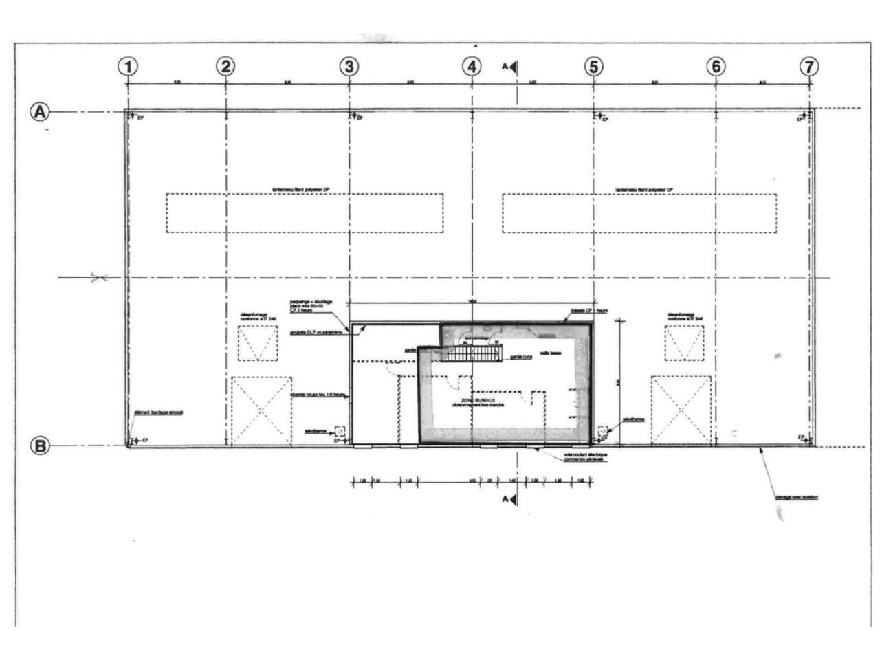
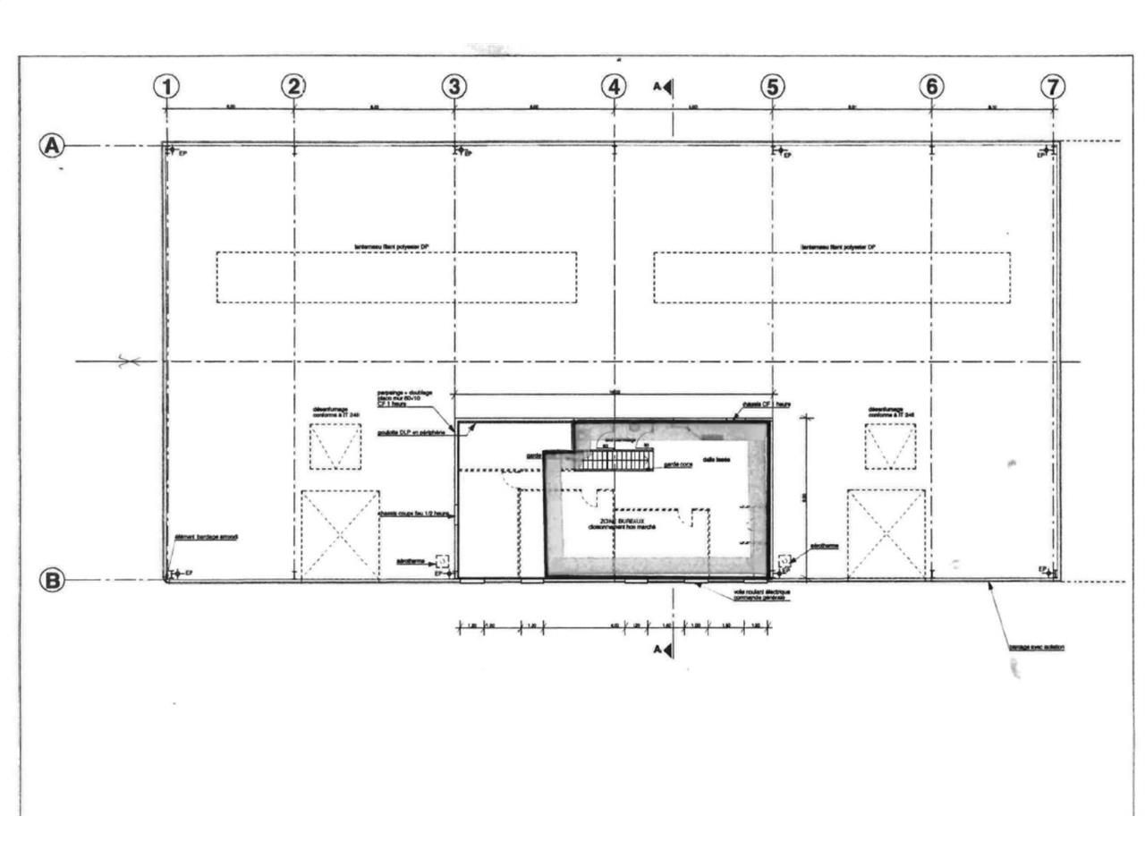
CBRE vous propose à louer une cellule de stockage située sur la commune d'Argenteuil dans le département du Val d'Oise (95). A proximité de l'autoroute A15 sur la ligne J du Transilien d'Ile-de-France. Ce local industriel dispose d'une grande aire de manoeuvre, d'un accès poids lourd et d'un bureau d'accompagnement avec cour privative. Belle surface de 682 m² non divisibles. Location entrepôt idéal pour le développement de vos activités professionnelles. Bail commercial. Disponibilité Janvier 2026.
Si cet entrepôt/local d'activités à louer dans le 95 vous intéresse ou si vous souhaitez obtenir plus de renseignements, n'hésitez pas à me contacter aujourd'hui pour organiser une visite et bénéficier de toutes les informations nécessaires pour votreprojet immobilier.
En tant qu'expert en immobilier professionnel/industriel, je suis à votre disposition pour vous aider à trouver le bien adapté à vos activités professionnelles et à votre coeur de métier.
Régime Fiscal : T.V.A.
Dépôt de garantie : 3 mois de loyer TTC
Paiement Loyer : trimestriel
Honoraires : 15% HT du loyer annuel HT/HC à la charge du preneur
Information sur le Bail :
Charges : 15 980 euros /an HT HC Frais de bail à la charge du preneur : 800.00 euros HT Etat des lieux par huissier à la charge du preneur : 50%
Prestations :
Accessibilité:
Transilien Val d'Argenteuil (J)
Autoroute A86 - A15
Bus Lignes 1 - 5 - 272
RER RER A (Sartrouville)
Les informations sur les risques auxquels ce bien est exposé sont disponibles sur le site Géorisques : www.georisques.gouv.fr
Si cet entrepôt/local d'activités à louer dans le 95 vous intéresse ou si vous souhaitez obtenir plus de renseignements, n'hésitez pas à me contacter aujourd'hui pour organiser une visite et bénéficier de toutes les informations nécessaires pour votreprojet immobilier.
En tant qu'expert en immobilier professionnel/industriel, je suis à votre disposition pour vous aider à trouver le bien adapté à vos activités professionnelles et à votre coeur de métier.
| Étage | Type | Surfaces | Dispo | Loyer | Charges | Type de bailRév. annuelle |
|---|---|---|---|---|---|---|
| RDC | Activités | 602 | Janvier 2026 | 91,06 m²/an HT HC | 14,5 HT/m²/an | 3-6-9 ansIndice ILAT |
| 1 | Bureaux | 80 | Janvier 2026 | 91,06 m²/an HT HC | 14,5 HT/m²/an | 3-6-9 ansIndice ILAT |
Régime Fiscal : T.V.A.
Dépôt de garantie : 3 mois de loyer TTC
Paiement Loyer : trimestriel
Honoraires : 15% HT du loyer annuel HT/HC à la charge du preneur
Information sur le Bail :
Charges : 15 980 euros /an HT HC Frais de bail à la charge du preneur : 800.00 euros HT Etat des lieux par huissier à la charge du preneur : 50%
Prestations :
- Bâtiment isolé
- Places de parking disponibles
- Surface RDC : 602 m²
- Surface terrain : 0
- Haut. libre max. ss poutre : 7,5 m
- Accès bâtiment : Aire de manoeuvre jusqu'à 20 m
. Accès moyens et gros porteurs - Equipements entrepôts : . Chape anti poussière
Electricité :
. Puissance électrique : 380V - Chauffage : Aérotherme
- Ossature : Métallique
- Couverture : Bac acier
Accessibilité:
Transilien Val d'Argenteuil (J)
Autoroute A86 - A15
Bus Lignes 1 - 5 - 272
RER RER A (Sartrouville)
Les informations sur les risques auxquels ce bien est exposé sont disponibles sur le site Géorisques : www.georisques.gouv.fr
Voir plus
Afficher les consommations énergétiques
Favoris
Exporter
Appeler
Contacter
Signaler cette annonce










