BNP Paribas Real Estate, N°1 de la transaction en immobilier d''entreprise en France, vous propose un accompagnement de qualité pour l''acquisition, la vente ou la location d''un bien immobilier.Vo ...
En savoir plus

19 271 m² divisible dès 6 039 m²
Loyer sur demande
Location activité/entrepôt - 19271 m²
Éragny (95610)
Dernière mise à jour : Il y a 2 mois
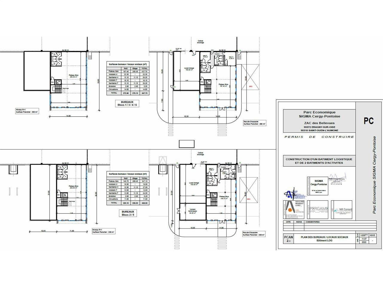
ERAGNY - ST-OUEN L'AUMONE (95) Lancement en blanc Nous vous proposons 3 cellules en blanc d'une surface totale de 19 271 m² environ, livraison avril 2026. Certification BREEAM Excellent/ WELL objectif "Silver". ICPE : h1450(A)/1510(A)/4755(A)/4331(E)/1436(D)/2025(D)/4120(D)/4130(D)/4140(D)/4150(D)/4320(D)/4321(D)Y/4330(D)/4441(D)/4510(D)/4715(D) et 4801(D). Loyer : 1200 euros annuels par place de parking VL
BNP PARIBAS REAL ESTATE vous propose 3 cellules en blanc d'une surface totale de 19 271 m² environ situé à Eragny (95).
ICPE1450(A)/1510(A)/4755(A)/4331(E)/1436(D)/2025(D)/4120(D)/4130(D)/4140(D)/4150(D)/4320(D)/4321(D)Y/4330(D)/4441(D)/4510(D)/4715(D) et 4801(D)
Caractéristiques techniques :
14 portes plain-pied
80 portes à quai
Hauteur libre : 11,7 m
Aire de béquillage : 22 m en béton balayé
Hauteur acrotère : 14,20 m (plateforme logistique)
620 places de parking VL
34 places de parking PL
Certification BREEAM EXCELLENT et WELL objectif pour les bureaux.
Disponibilité: 01/04/2026Honoraires: Nous consulter. à la signature du bail
| Fiche technique du bien | |
|---|---|
| RER | C |
| Desserte routière | A15/N104/N184/A86 |
| Autorisation d'exploiter | 1450 |
| Autorisation d'exploiter | 4755 |
| Autorisation d'exploiter | 1510 |
| Autorisation d'exploiter | 2925 1436/4120/4130/4140/4150/4320/4321/4330/4441/4510/4715 et 4801 |
| Autorisation d'exploiter | 4331 |
| Parking(s) | 34 Places PL |
| Parking(s) | 620 Places VL |
| Source chauffage | Gaz |
| Hauteur sous-plafond | 2,70 mètre(s) dans les bureaux |
| Hauteur sous-plafond | 2,50 mètre(s) dans les vestiaires/ sanitaires |
| Charge au sol RDC | 5,00 tonne(s)/m² |
| Hauteur libre | 11,70 mètre(s) (plateforme logistique) |
| Porte(s) d'accès plain-pied | 14 |
| Porte(s) d'accès à quai | 80 |
| Aire de manoeuvre | 38 ml |
| Eclairage intérieur | LED |
| Puissance électrique | 2 MVA |
| Sprinklers | Oui |
Voir plus
Afficher les consommations énergétiques
Favoris
Exporter
Appeler
Contacter
Signaler cette annonce
