L’agence CBRE Lyon conseille et accompagne les chefs d’entreprise dans leurs projets immobiliers quels que soient leur taille et leur secteur d’activité. Spécialistes de la transaction de bureaux, ...
En savoir plus

5 793 m²
HT HC
Location activité/entrepôt - 5793 m²
Mions (69780)
Dernière mise à jour : Hier
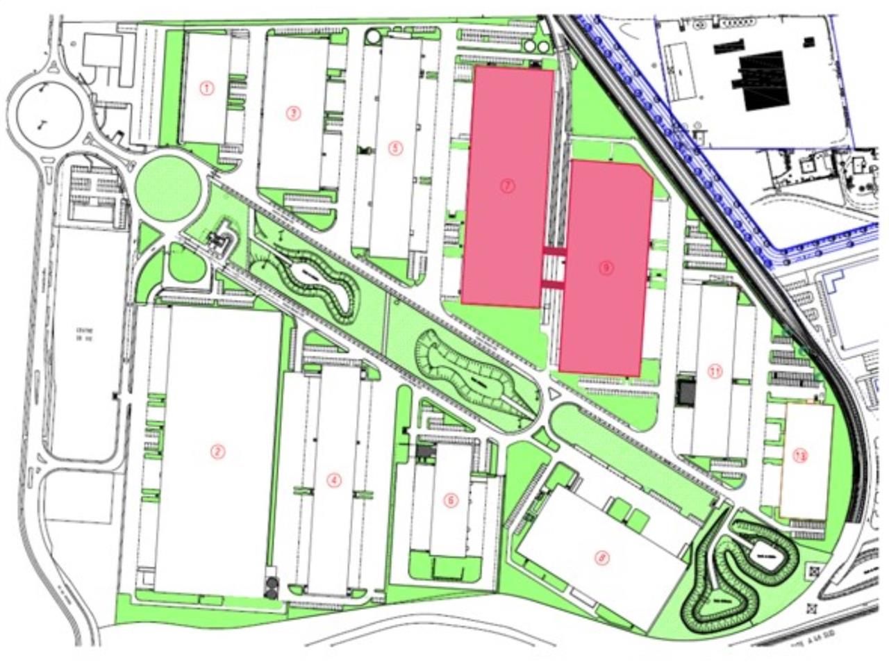
Au sud est de Lyon, au coeur du secteur logistique de la Rocade Est et sur un échangeur complet de l'A46, dans un parc sécurisé, un bâtiment logistique disponible et rénové de 17 025 m² comprenant des espaces tertiaires remis à neuf , 1 cellule de stockage de 5 793 m² (cellule A) comprenant 5 portes à quai, éclairage LED, panneaux photovoltaïques et autorisations ICPE.
Mions est une commune située dans le département du Rhône, en région Auvergne-Rhône-Alpes.
Régime Fiscal : T.V.A.
Honoraires : 15 % HT d'un loyer annuel HT/HC à la charge du preneur
Information sur le Bail :
Provisions de Charges 10.26 euros/m² Impôt foncier 2024 : 10.52 euros/m² Honoraire de gestion bailleur : 2.75 % HT d'un an de loyer frais de rédaction de bail : 3 000 euros
Prestations :
Accessibilité:
SNCF Gare Lyon Part-Dieu (25 min)
SNCF Gare Lyon St-Exupéry (20 min)
Aeroport Aéroport Lyon St-Exupéry (20 min)
Port E. Herriot (20 min)
Metro MD (Lyon - Parilly)
Bus C25 (Parilly - Sogaris/ Promotrans)
Les informations sur les risques auxquels ce bien est exposé sont disponibles sur le site Géorisques : www.georisques.gouv.fr
Mions est une commune située dans le département du Rhône, en région Auvergne-Rhône-Alpes.
| Étage | Type | Surfaces | Dispo | Loyer | Charges | Type de bailRév. annuelle |
|---|---|---|---|---|---|---|
| Entrepôts | 4996 | Immédiate | 80 m²/an HT HC | 3-6-9 ansIndice ILAT | ||
| Entrepôts | 683 | Immédiate | 80 m²/an HT HC | 3-6-9 ansIndice ILAT | ||
| Entrepôts | 114 | Immédiate | 80 m²/an HT HC | 3-6-9 ansIndice ILAT |
Régime Fiscal : T.V.A.
Honoraires : 15 % HT d'un loyer annuel HT/HC à la charge du preneur
Information sur le Bail :
Provisions de Charges 10.26 euros/m² Impôt foncier 2024 : 10.52 euros/m² Honoraire de gestion bailleur : 2.75 % HT d'un an de loyer frais de rédaction de bail : 3 000 euros
Prestations :
- Bâtiment 7 :
- Hauteur sous plafond : 9,50 m
- Résistance au sol : 5T/m²
- Eclairage LED int. et ext.
- 5 quais niveleurs
- Puissance électrique : tarif jaune
- RIA/Sprinkler
- 1 salle de charge
- Rénovation totale des bureaux livrés sans cloisonnement et réseau informatique
- Entrepôt livré sans chauffage
- 15 places pour VL électrique
- Surface terrain : 0
Accessibilité:
SNCF Gare Lyon Part-Dieu (25 min)
SNCF Gare Lyon St-Exupéry (20 min)
Aeroport Aéroport Lyon St-Exupéry (20 min)
Port E. Herriot (20 min)
Metro MD (Lyon - Parilly)
Bus C25 (Parilly - Sogaris/ Promotrans)
Les informations sur les risques auxquels ce bien est exposé sont disponibles sur le site Géorisques : www.georisques.gouv.fr
Voir plus
Afficher les consommations énergétiques
Favoris
Exporter
Appeler
Contacter
Signaler cette annonce










