Century 21 Business Pro est une agence dédiée à l'immobilier commercial et d'entreprise spécialisée dans la commercialisation de locaux commerciaux, fonds de commerce, bureaux, locaux d’activités, ...
En savoir plus

895 m²
HT HC
Location bureau - 895 m²
Trignac (44570)
Dernière mise à jour : Il y a 2 jours
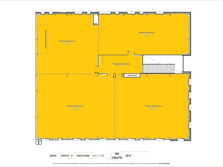
SAINT-NAZAIRE (44) - Zone de Brais CENTURY 21 vous propose A LA LOCATION, au sein d'un ensemble immobilier à construire, un plateau de bureaux de 895 m2 environ de surface utile au 1er étage. Le plateau sera livré sol posé, murs isolés et peints. Bloc sanitaire privé comprenant un point d'eau et WC. Plafonds et luminaires leds posés. Plinthes périphériques (courant fort et faible) posées. Compteur électrique individuel et système de chauffage posés. Possibilité de louer des places de stationnements privatives (500 EUR HT/an/place) Livraison prévue 4T2026 Loyer annuel 152 150 EUR HT provisions pour charges annuelles 13 425 EUR HT Taxe foncière charge preneur Places de stationnements à louer en sus (500 EUR HT/an) Honoraires d'agence en sus Projet à affiner selon besoins du preneur Livraison prévue : 4T2026 Réf 8265 Les informations sur les risques auxquels ce bien est exposé sont disponibles sur le site Géorisques : www.georisques.gouv.fr
Voir plus
Afficher les consommations énergétiques
Favoris
Exporter
Appeler
Contacter
Signaler cette annonce










