L’équipe Bureaux Grandes Surfaces Ile de France de BNP Paribas Real Estate, dispose de toute l''expérience nécessaire pour vous aider à mener à bien votre projet immobilier sur l’ensemble du territ ...
En savoir plus

17 949 m² divisible dès 620 m²
HT HC
HELYS - Location bureau - 17949 m²
Suresnes (92150)
Dernière mise à jour : Il y a 2 jours
Situé sur les berges de Seine à Suresnes, sur l'emplacement historique des ateliers de l'aviateur Louis Blériot (créés en 1915), nous vous proposons à la location 20 076 m² divisibles de bureaux.
Signé par l’agence d’Architectes ATELIER 2M et par le cabinet BENOIT, cet immeuble conjugue transparence, fluidité et modularité.
HELYS offre de grands plateaux parfaitement configurés pour des agencements en open-space (18m de profondeur) ou en bureaux cloisonnés.
Les prestations techniques offrent un confort de travail remarquable et dispose d’une offre de services complète et variée.
Hall d’accueil double hauteur lumineux et confortable donnant sur le patio paysager.
Disponibilité: ImmédiateHonoraires: Nous consulter.
| Fiche technique du bien | |
|---|---|
| Tramway | T1 |
| Gare | Oui |
| Etat de l'immeuble | Rénové |
| Restauration | 400 Places |
| Gestion technique centralisée | Oui |
| Sécurité | Contrôle d'accès |
Afficher les consommations énergétiques
Surfaces divisibles : 6
| Surface | LoyerHT/HC/m²/an | Étage / Batiment | Infos complémentaires |
| 620 m² | N.C | RDC | RDC- R+1+3+4 |
| 2121 m² | N.C | RDC | RDC |
| 5315 m² | N.C | R+1 | RDC- R+1+3+4 |
| 3156 m² | N.C | R+2 | R+2 |
| 4276 m² | N.C | R+3 | RDC- R+1+3+4 |
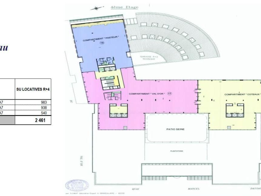
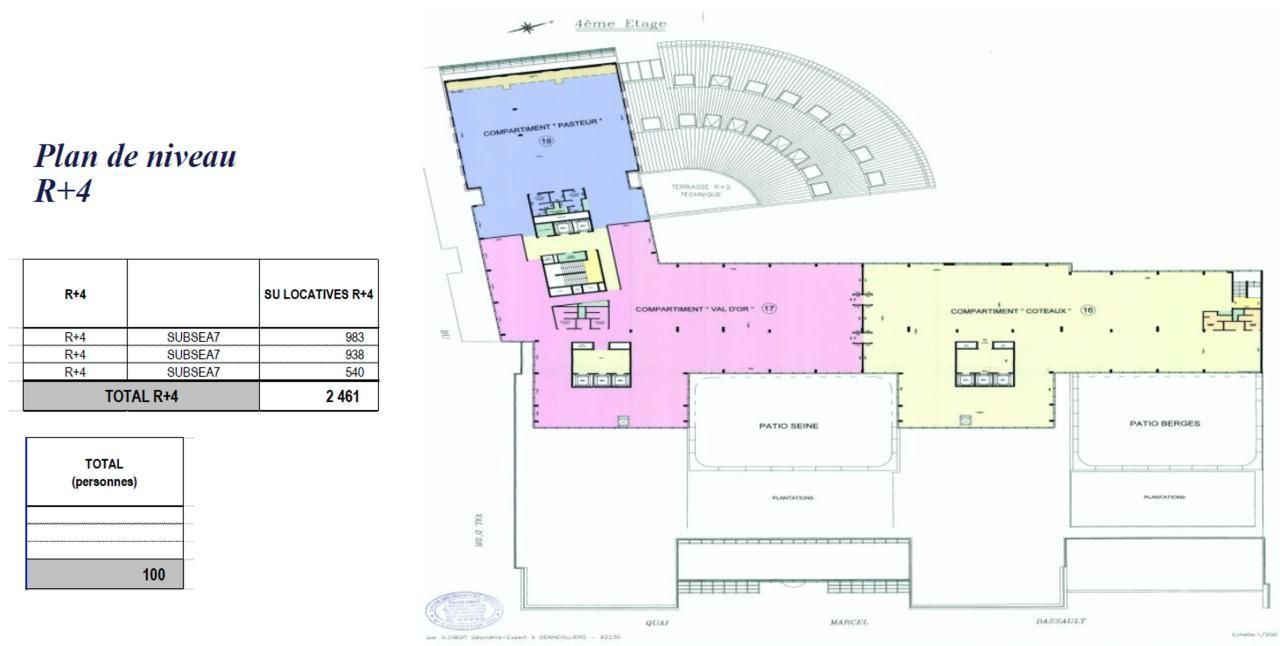
| 2461 m² | N.C | R+4 | RDC- R+1+3+4 |
Localisation et transport aux alentours
Favoris
Exporter
Appeler
Contacter
Signaler cette annonce










