L'équipe de G2B Real Estate est agence immobilière spécialiste de l'immobilier d'entreprise partout en Île-de-France depuis plus de 13 ans. Hasan Gulbol (Associé), Frédéric Bazil (Associé), Philipp ...
En savoir plus

4 100 m²
Loyer sur demande
Location bureau - 4100 m²
Sucy-en-Brie (94370)
Dernière mise à jour : Hier
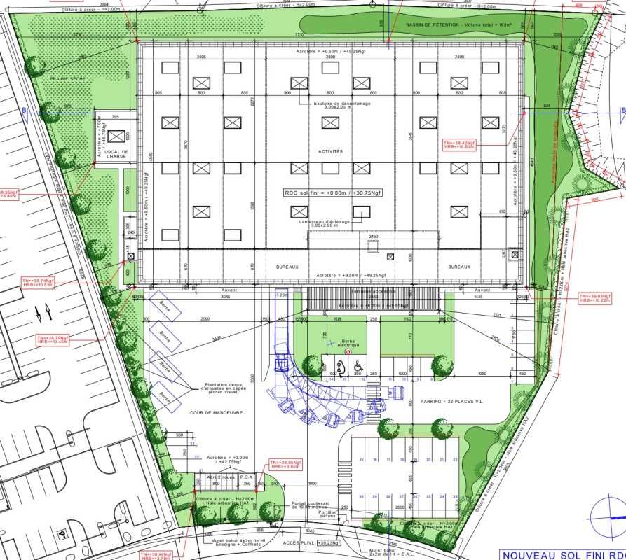
Dans un parc d'activité neuf à proximité de Créteil et de l'A86, G2B REAL ESTATE vous propose la location d'un bâtiment indépendant de de4 218 m².
Impôt Foncier : 10,21 €/m²/an
Régime Fiscal : TVA
Dépôt de garantie : 3 mois de loyer HT HC
Honoraires : 15% HT du loyer annuel HT HC à la charge du Preneur
Taxe Bureau : 8,04 €/m²/an
Prestations :
Accessibilité:
Autoroute A86 à proximité
Bus ATELIERS RATP (104)
RER Sucy Bonneuil (A, E)
Les informations sur les risques auxquels ce bien est exposé sont disponibles sur le site Géorisques : www.georisques.gouv.fr
| Étage | Type | Surfaces | Dispo | Loyer | Charges | Type de bailRév. annuelle |
|---|---|---|---|---|---|---|
| 1 | Bureaux | 597 | Indice ILAT | |||
| 1 | Terrasse | 118 | Indice ILAT | |||
| Rdc | Activités | 3125 | Indice ILAT | |||
| Rdc | Bureaux | 378 | Indice ILAT | |||
| Total Cellule | Activités | 4100 | 3 mois après accord | 6/9/12 ansIndice ILAT |
Impôt Foncier : 10,21 €/m²/an
Régime Fiscal : TVA
Dépôt de garantie : 3 mois de loyer HT HC
Honoraires : 15% HT du loyer annuel HT HC à la charge du Preneur
Taxe Bureau : 8,04 €/m²/an
Prestations :
- Site clos, contrôle d'accès sur portails
- Voirie lourde
- Espaces verts
- Eclairage extérieur
- Toiture végétalisée
- Sol moquette
- Faux plafond
- Menuiseries extérieures aluminium
- Dalles LED 60x60
- Courant faible à câbler par le preneur
- Immeuble indépendant
- Surface RDC : 3503 m²
- Surface terrain : 0
- Résistance sol : 3 T/m²
- Nbr de portes à quai : 1
- Equipements entrepôts : Dallage quartzé industriel
Eclairage par gamelles LED - Chauffage : Aérothermes gaz circulation d'eau chaude
Accessibilité:
Autoroute A86 à proximité
Bus ATELIERS RATP (104)
RER Sucy Bonneuil (A, E)
Les informations sur les risques auxquels ce bien est exposé sont disponibles sur le site Géorisques : www.georisques.gouv.fr
Emplacement(s) de Parking: 30 extérieur(s)
Voir plus
Afficher les consommations énergétiques
Localisation et transport aux alentours
Favoris
Exporter
Appeler
Contacter
Signaler cette annonce
