Leader mondial des services dédiés à l'immobilier d'entreprise, Cushman & Wakefield accompagne ses clients dans la transformation de leurs modes de travail, de consommation et de vie. Nos 43 000 co ...
En savoir plus

4 955 m² divisible dès 381 m²
HT HC
Location bureau - 4955 m²
Strasbourg (67000)
Publiée : Aujourd'hui
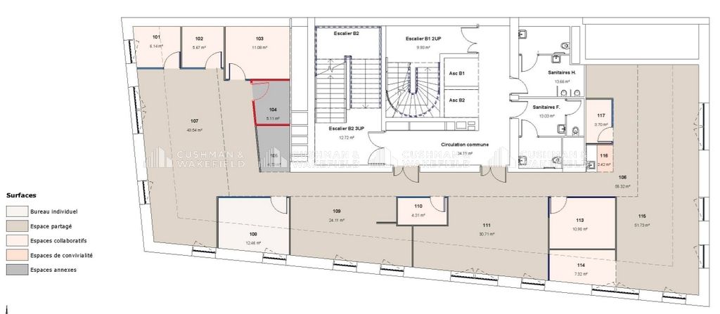
Immeuble de bureaux nouvelle génération au sein du quartier Archipel, idéalement situé sur le quartier d'affaires international du Wacken. Ces locaux, disponibles à la location, répondent aux normes Breeam Very Good, pour votre plus grand confort. Vaste espace urbain très central dédié depuis un siècle aux foires et expositions, le Wacken devient aujourd'hui Archipel, quartier d'affaires et de vie d'une exceptionnelle qualité. C'est entre le quartier des Institutions Européennes et le quartier des banques, qui fait de Strasbourg la seconde place bancaire francaise, que se développe Archipel, quartier d''affaires à haut niveau de services, associant business et vie sociale, efficacité et détente, performance et développement durable. Une offre de services diversifiée à toute proximité : logements, commerces, services, hôtellerie, transports en commun, Le 1522 est un btiment en R+8+Mezzanine, avec parvis central commun et parking public en sous-sol d'une surface totale de 4915 m². L'immeuble est actuellement occupé par un locataire mono utilisateur. Les locaux sont cloisonnés. 2 ascenseurs desservent l'ensemble des niveaux et des sanitaires H/F sont disponibles à chaque palier d'étage (avec accès pour tous). Parkings publics possibles en sous-sol avec accès direct à tous les étages (310 places) Droits de stationnement: 40 emplacements sont disponibles dans le parking public Parcus au titre de la convention longue durée signée le 28/04/2020 entre le Mandant et la société Parcus. Ces droits de stationnement correspondent à l''autorisation de stationner sur une ou l''autre place du parking (sans place attribuée) du lundi au vendredi (hors jour férié) de 6h30 à 18h (heure d''entrée) jusqu''à 21h (heure de sortie. Durée de la convention : 12 ans à compter du 04/07/2022 avec droit de priorité pour le renouvellement de la convention. Répartition des droits de stationnement : une convention de sous location sera signée entre le Mandant et le(s) Preneur(s). Attribution des droits sur la base d''une place pour 124 m² loués Immeuble labellisé Breeam Very Good en accord avec les enjeux de l'éco-construction. Etat capacitaire : 1 personne par 10 m² Bus : ligne 7 et BHNS (ligne H) - Bus à haut niveau de service électrique qui relie la gare au Parlement Européen en 10 mn Tram : lignes E et B Accès routier : A35 sortie Wacken
Voir plus
Afficher les consommations énergétiques
Surfaces divisibles : 8
| Surface | LoyerHT/HC/m²/an | Étage / Batiment |
| 381 m² | 215 € | 1 |
| 395 m² | 215 € | 2 |
| 394 m² | 215 € | 3 |
| 747 m² | 215 € | 4 |
| 697 m² | 215 € | 5 |
| 697 m² | 215 € | 6 |
| 695 m² | 220 € | 7 |
| 949 m² | 220 € | 8 |
Localisation et transport aux alentours
Favoris
Exporter
Appeler
Contacter
Signaler cette annonce
