Leader mondial des services dédiés à l'immobilier d'entreprise, Cushman & Wakefield accompagne ses clients dans la transformation de leurs modes de travail, de consommation et de vie. Nos 43 000 co ...
En savoir plus



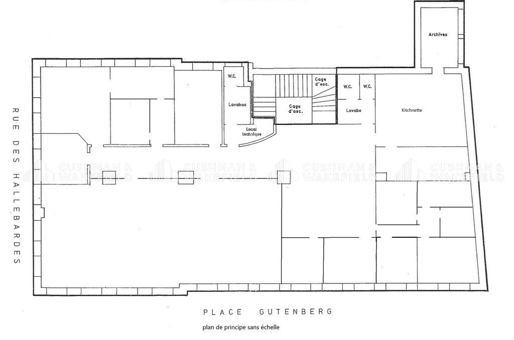
378 m²
HT HC
Location bureau - 378 m²
Strasbourg (67000)
Dernière mise à jour : Il y a 4 jours
Bureaux au centre ville de Strasbourg, au sein d'un Immeuble composé de surfaces commerciales et de bureaux. Localisation en coeur de Ville, vue emblématique sur la place Gutenberg. Nous vous présentons des locaux bureaux au centre ville de Strasbourg, au sein d'un Immeuble composé de surfaces commerciales et de bureaux. Localisation en coeur de Ville, vue emblématique sur la place Gutenberg. Le secteur de la place Gutenberg à Strasbourg offre un cadre stratégique pour l''implantation de votre entreprise. Situé en plein coeur du centre historique, il bénéficie d''un accès optimal aux services, commerces et administrations. Le réseau de transports en commun y est dense, avec plusieurs lignes de tramway (A, B, C, D) et de bus facilitant la mobilité. L''environnement est dynamique, attractif pour les clients et collaborateurs, avec une forte affluence touristique et commerciale. Proche de la gare et des institutions européennes, ce quartier allie visibilité, accessibilité et prestige, en faisant un choix idéal pour les entreprises souhaitant s''implanter à Strasbourg. Le département Bureaux de Cushman & Wakefield Strasbourg est à votre entière disposition pour vous apporter plus de précisions concernant ces bureaux à louer au centre-ville de Strasbourg. N'hésitez plus, contactez-nous ! . Sol : Moquettes . Murs peints . Faux-plafonds en dalles incorporant les luminaires LED . Double virage bois avec volets . Chauffage/climatisation réversibles par cassette en faux plafond . Sanitaires privatifs, 1 douche Cloisonnement amovible : 1 accueil, 1 open space, 12 bureaux, 1 kitchenette Ascenseur Bus : ligne 10 Tram : Ligne A
Voir plus
Afficher les consommations énergétiques
Localisation et transport aux alentours
- Langstross Grand'Rue289m (4min à pied)AD
- Place Broglie352m (5min à pied)BCF
- Porte de l'Hôpital397m (6min à pied)AD
Favoris
Exporter
Appeler
Contacter
Signaler cette annonce
