Arnold Entreprise est un cabinet de conseil en immobilier d’entreprise implanté dans le Grand Ouest. Il opère sur la métropole nantaise et les bassins économiques de Vannes et Lorient.La structure ...
En savoir plus

3 456 m² divisible dès 319 m²
Loyer sur demande
Location bureau - 3456 m²
Sainte-Luce-sur-Loire (44980)
Dernière mise à jour : Il y a 5 mois
Bureaux à louer à vendre 3690 m2 SAINTE LUCE SUR LOIRE
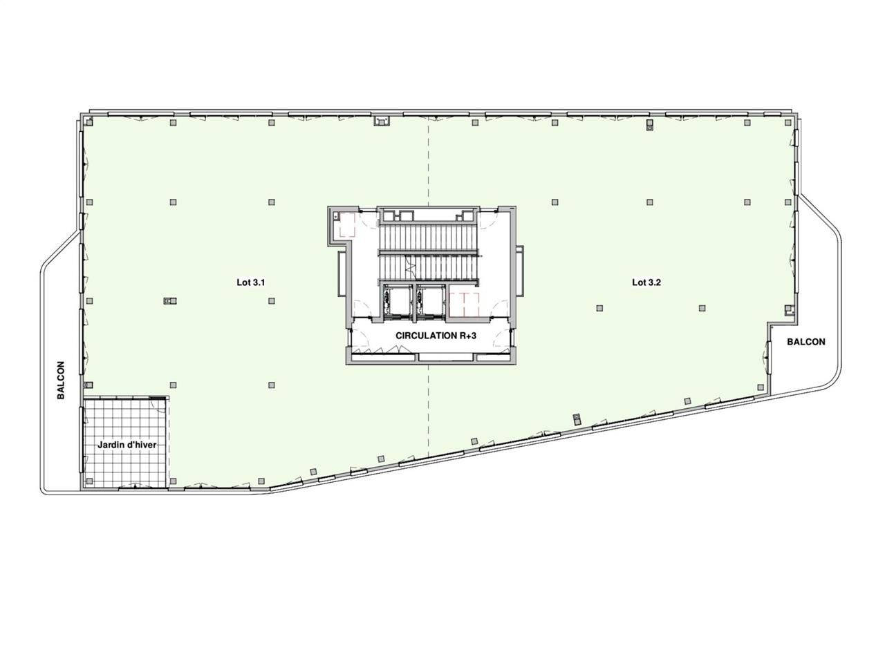
ARNOLD ENTREPRISE vous propose un immeuble de bureaux neuf d'une superficie totale de 3 456 m², divisible à partir de 319 m², disponible à la vente ou à la location. Cette offre unique allie flexibilité et fonctionnalité pour répondre à vos besoins professionnels.
À proximité de l'adresse se trouvent les arrêts de bus Pinier (Ligne 107) et La Grille (Ligne 117, Ligne 127, Ligne 137, Ligne 157, Ligne C7). L'autoroute A811 est également accessible, avec les entrées Sainte-Luce-sur-Loire - Centre et Thouaré-sur-Loire - Centre, ainsi que la sortie de l'autoroute A811.
Régime Fiscal : T.V.A.
Dépôt de garantie : 3 mois de loyer HT/HC
Honoraires : 15 % HT du loyer annuel HT à la charge du preneur
Prestations :
Accessibilité:
Bus Pinier (Ligne 107), La Grille (Ligne 117, Ligne 127, Ligne 137, Ligne 157, Ligne C7)
Autoroute A 811 (Entrée Sainte-Luce-sur-Loire - Centre, Thouaré-sur-Loire - Centre), A 811 (Sortie)
Les informations sur les risques auxquels ce bien est exposé sont disponibles sur le site Géorisques : www.georisques.gouv.fr
ARNOLD ENTREPRISE vous propose un immeuble de bureaux neuf d'une superficie totale de 3 456 m², divisible à partir de 319 m², disponible à la vente ou à la location. Cette offre unique allie flexibilité et fonctionnalité pour répondre à vos besoins professionnels.
À proximité de l'adresse se trouvent les arrêts de bus Pinier (Ligne 107) et La Grille (Ligne 117, Ligne 127, Ligne 137, Ligne 157, Ligne C7). L'autoroute A811 est également accessible, avec les entrées Sainte-Luce-sur-Loire - Centre et Thouaré-sur-Loire - Centre, ainsi que la sortie de l'autoroute A811.
| Étage | Type | Surfaces | Dispo | Loyer | Charges | Type de bailRév. annuelle |
|---|---|---|---|---|---|---|
| 4 | Bureaux | 385,15 | 1er juin 2026 | 3-6-9 ansILAT Indice des Loyers des Activités Tertiaires | ||
| 3 | Bureaux | 346,89 | 1er juin 2026 | 3-6-9 ansILAT Indice des Loyers des Activités Tertiaires | ||
| 3 | Bureaux | 322,71 | 1er juin 2026 | 3-6-9 ansILAT Indice des Loyers des Activités Tertiaires | ||
| 2 | Bureaux | 374,69 | 1er juin 2026 | 3-6-9 ansILAT Indice des Loyers des Activités Tertiaires | ||
| 2 | Bureaux | 319,25 | 1er juin 2026 | 3-6-9 ansILAT Indice des Loyers des Activités Tertiaires | ||
| 1 | Bureaux | 843,05 | 1er juin 2026 | 3-6-9 ansILAT Indice des Loyers des Activités Tertiaires | ||
| RDC | Bureaux | 864,67 | 1er juin 2026 | 3-6-9 ansILAT Indice des Loyers des Activités Tertiaires |
Régime Fiscal : T.V.A.
Dépôt de garantie : 3 mois de loyer HT/HC
Honoraires : 15 % HT du loyer annuel HT à la charge du preneur
Prestations :
- Immeuble de bureau neuf développant une superficie de 3456 m2 divisible . Les plateaux sont livrés aménagés, non cloisonnés.
- Immeuble indépendant
- Surface RDC : 864,67 m²
Accessibilité:
Bus Pinier (Ligne 107), La Grille (Ligne 117, Ligne 127, Ligne 137, Ligne 157, Ligne C7)
Autoroute A 811 (Entrée Sainte-Luce-sur-Loire - Centre, Thouaré-sur-Loire - Centre), A 811 (Sortie)
Les informations sur les risques auxquels ce bien est exposé sont disponibles sur le site Géorisques : www.georisques.gouv.fr
Voir plus
Afficher les consommations énergétiques
Localisation et transport aux alentours
Favoris
Exporter
Appeler
Contacter
Signaler cette annonce




