L’agence CBRE Rennes conseille et accompagne les chefs d’entreprise dans leurs projets immobiliers quels que soient leur taille et leur secteur d’activité. Spécialistes de la transaction de bureaux ...
En savoir plus

482 m² divisible dès 250 m²
HT HC
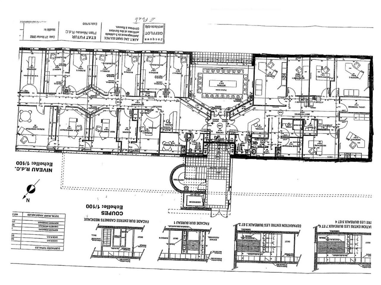
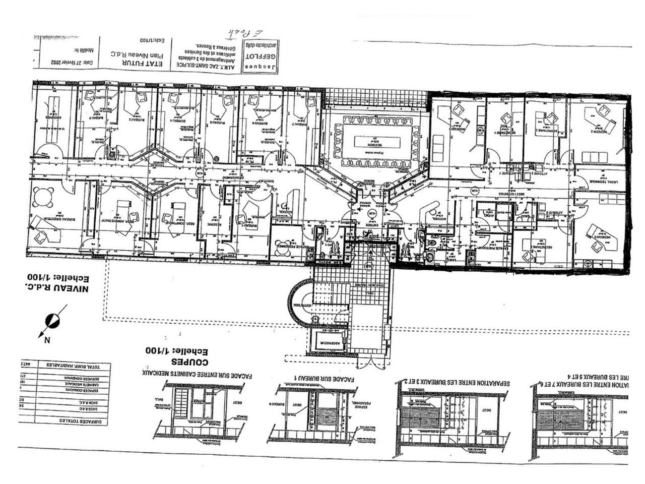
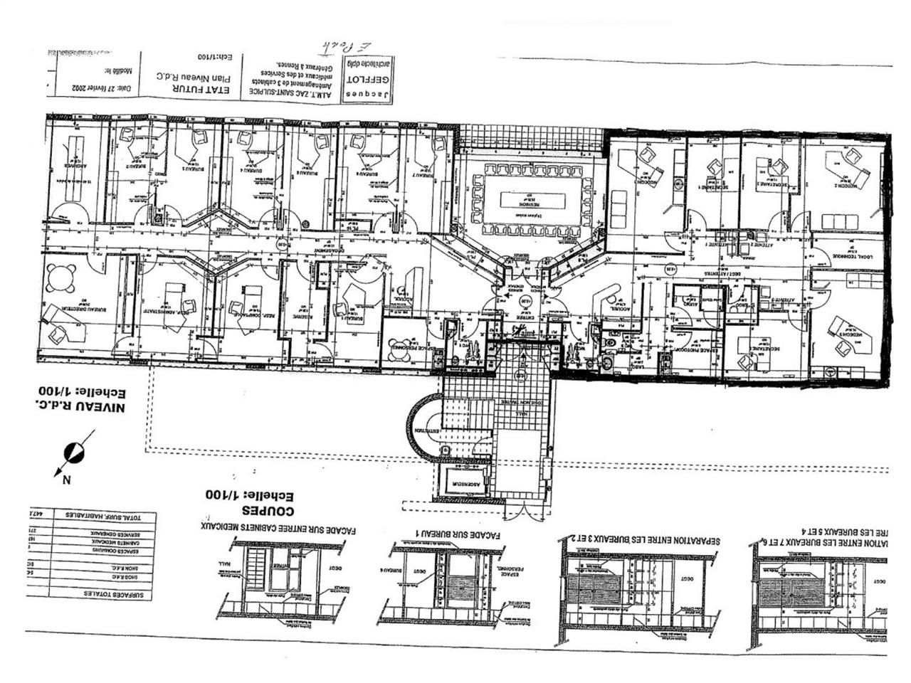
Location bureau - 482 m²
Rennes (35000)
Dernière mise à jour : Il y a 3 mois
Au Nord Est de Rennes, au sein de la ZAC St Sulpice, l'immeuble E PARK bénéficie d'un accès immédiat au centre commercial les Longs Champs, ses commerces, pôles de restauration, salles de sport, crèches, ainsi qu'au métro Atalante. CBRE vous propose des bureaux à louer aménagés et cloisonnés. Bon ratio m²/parking.
Zone tertiaire attractive bénéficiant d'un environnement paysagé et d'une accessibilité immédiate aux grands axes.
Les locaux sont complétés par des places de stationnement.
Impôt Foncier : 27 €/HT/m²/an
Régime Fiscal : T.V.A.
Dépôt de garantie : 3 mois de loyer HT/HC
Honoraires : 15% HT du loyer annuel HT/HC à la charge du preneur.
Information sur le Bail :
Frais de gestion technique : 2,5 % HT du loyer annuel HT HC Frais de rédaction d'acte en sus : charge Preneur
Prestations :
Accessibilité:
Metro Atalante (b) à 15 minutes à pied
Route Rocade Nord (Porte des Longs Champs)
Bus ZA Saint-Sulpice (C4, 34, 41, 50, 70)
Accès immédiat au centre commercial des Longchamps
Les informations sur les risques auxquels ce bien est exposé sont disponibles sur le site Géorisques : www.georisques.gouv.fr
Zone tertiaire attractive bénéficiant d'un environnement paysagé et d'une accessibilité immédiate aux grands axes.
Les locaux sont complétés par des places de stationnement.
| Étage | Type | Surfaces | Dispo | Loyer | Charges | Type de bailRév. annuelle |
|---|---|---|---|---|---|---|
| RDC | Bureaux | 482 | Immédiate | 160 m²/an HT HC | 37 HT/m²/an | 3-6-9 ansIndice ILAT |
Impôt Foncier : 27 €/HT/m²/an
Régime Fiscal : T.V.A.
Dépôt de garantie : 3 mois de loyer HT/HC
Honoraires : 15% HT du loyer annuel HT/HC à la charge du preneur.
Information sur le Bail :
Frais de gestion technique : 2,5 % HT du loyer annuel HT HC Frais de rédaction d'acte en sus : charge Preneur
Prestations :
- Immeuble tertiaire
- Environnement paysager
- Rez de chaussée
- Locaux adaptés à des activités para médicales / libérales
- Bureaux aménagés et cloisonnés
- Une rénovation est prévue à la charge du Bailleur
- Climatisation réversible
- Accueil
- Nombreux bureaux avec point d'eau
- Open space
- Coin cuisine
- Local technique
- Douche
- Sanitaires privatifs
- 15 places de stationnements dont 11 en sous-sol
- Surface RDC : 482 m²
Accessibilité:
Metro Atalante (b) à 15 minutes à pied
Route Rocade Nord (Porte des Longs Champs)
Bus ZA Saint-Sulpice (C4, 34, 41, 50, 70)
Accès immédiat au centre commercial des Longchamps
Les informations sur les risques auxquels ce bien est exposé sont disponibles sur le site Géorisques : www.georisques.gouv.fr
Voir plus
Afficher les consommations énergétiques
Favoris
Exporter
Appeler
Contacter
Signaler cette annonce










