Conseil en immobilier d'entreprise, Cushman & Wakefield est un acteur incontournable au rayonnement international. Cushman & Wakefield offre des solutions dans toutes les étapes que comporte un p ...
En savoir plus

1 040 m²
HT HC
TOUR INITIALE - Location bureau - 1040 m²
Puteaux (92800)
Dernière mise à jour : Il y a 3 jours
Immeuble de très grand standing au pied du métro ligne 1
Immeuble TOUR INITIALE
Cushman & Wakefield vous invite à découvrir la tour INITIALE idéalement située au pied du métro Ligne 1, Esplanade de La Défense. Après une restructuration en 2003 et une rénovation en 2019, les espaces communs au 30ème étage offrent des vues imprenables à 360°.
Vous pourrez ainsi profiter d'un moment de détente à la cafétéria, organiser une réunion dans l'une des salles du business center, jouer un air de piano dans la brasserie parisienne ou simplement vous réunir entre collègues dans l'espace lounge.
Un restaurant d'entreprise, un auditorium, une salle de sport et une conciergerie complètent la gamme de services la tour INITIALE.
Impôt Foncier : 30,4 €//m²/an
Régime Fiscal : T.V.A.
Dépôt de garantie : 3 mois de loyer HT/HC
Paiement Loyer : Trimestriel
Honoraires : à la charge du preneur
Taxe Bureau : 20 €/m²/an
Information sur le Bail :
Budget charges et taxes 2025 Honoraires de gestion techniques et administrative : 1,9 euros/m²/an Fluides relatifs aux parties communes : 22,2 euros/m² Services (accueil, accès au 30ème étage [bar, restaurant, co-working et salles de réunion], conciergerie et fitness hors abonnement) : 17,8 euros HT/m²/an Assurance : 1,06 euros/m²/an
Prestations :
Accessibilité:
Métro Esplanade de la Défense (ligne 1)
RER La Défense - Grande Arche (RER A)
Tram La Défense - Grande Arche (T2)
Bus Lignes 73-157-158-175-175-541-BALABUS
Les informations sur les risques auxquels ce bien est exposé sont disponibles sur le site Géorisques : www.georisques.gouv.fr
Immeuble TOUR INITIALE
Cushman & Wakefield vous invite à découvrir la tour INITIALE idéalement située au pied du métro Ligne 1, Esplanade de La Défense. Après une restructuration en 2003 et une rénovation en 2019, les espaces communs au 30ème étage offrent des vues imprenables à 360°.
Vous pourrez ainsi profiter d'un moment de détente à la cafétéria, organiser une réunion dans l'une des salles du business center, jouer un air de piano dans la brasserie parisienne ou simplement vous réunir entre collègues dans l'espace lounge.
Un restaurant d'entreprise, un auditorium, une salle de sport et une conciergerie complètent la gamme de services la tour INITIALE.
| Étage | Type | Surfaces | Dispo | Loyer | Charges | Type de bailRév. annuelle |
|---|---|---|---|---|---|---|
| 4 | Bureaux | 1040 | Immédiate | 390 HT/HC/m²/an | 98 HT/m²/an | 3-6-9 ansSelon indice INSEE du coût de la construction |
| -1 | Arch./Reser. | 986 | 230 HT/HC/m²/an | 3-6-9 ansSelon indice INSEE du coût de la construction | ||
| SS | Parkings | 1800 HT/HC/place/an | 3-6-9 ansSelon indice INSEE du coût de la construction | |||
| SS | Parkings | 2500 HT/HC/place/an | 3-6-9 ansSelon indice INSEE du coût de la construction |
Impôt Foncier : 30,4 €//m²/an
Régime Fiscal : T.V.A.
Dépôt de garantie : 3 mois de loyer HT/HC
Paiement Loyer : Trimestriel
Honoraires : à la charge du preneur
Taxe Bureau : 20 €/m²/an
Information sur le Bail :
Budget charges et taxes 2025 Honoraires de gestion techniques et administrative : 1,9 euros/m²/an Fluides relatifs aux parties communes : 22,2 euros/m² Services (accueil, accès au 30ème étage [bar, restaurant, co-working et salles de réunion], conciergerie et fitness hors abonnement) : 17,8 euros HT/m²/an Assurance : 1,06 euros/m²/an
Prestations :
- Tour restructurée en 2003 par Valode & Pistre
- Tour de 109 m de hauteur, 30 étages
- Travaux de rénovation en cours dans le hall afin de le rendre plus chaleureux et convivial
- Certification/Labels : HQE BD 2016 Très Performant, BREEAM RFO 2015 Very Good, Wired Score Gold
- Climatisation par ventilo convecteurs
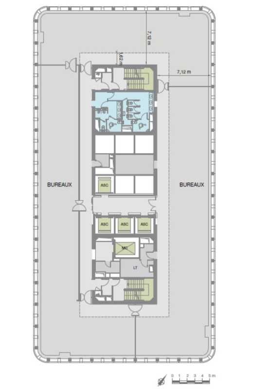
- Etage courant : 1 000 m²
- Trame de façade : 1,43 m
- Profondeur : 7,12 m
- HSP : 2,63 m en étage courant et 2,32 m dans les circulations
- Faux plafonds métalliques
- Vaste hall double hauteur
- GTB
- Monte-charge
- Accès livraison
- Vaste hall d'accueil double hauteur
- RIE (ELIOR) et cafétéria (1 200 couverts) rénovés et ventilés en avril 2019
- Le 30ème étage dédié aux services réservés aux collaborateurs de la Tour : bar lounge, espace club, salle de conseil, espace coworking, salles de réunion modulables
- Hospitality Manager
- Conciergerie
- Auditorium (80 places) sur réservation via une application
- Espace fitness et Wellness avec vestiaires et douches
- Accès sécurisé / gardiennage 24h/24
- Dépose taxi
- Locaux en état d'usage
- Une rénovation du 4ème sera prévue dès Janvier 2026
- QP parties communes incluses
- Optimisation des espaces et aménagement sans contrainte
- Capacitaire : 80 postes/étage
- Immeuble indépendant
Accessibilité:
Métro Esplanade de la Défense (ligne 1)
RER La Défense - Grande Arche (RER A)
Tram La Défense - Grande Arche (T2)
Bus Lignes 73-157-158-175-175-541-BALABUS
Les informations sur les risques auxquels ce bien est exposé sont disponibles sur le site Géorisques : www.georisques.gouv.fr
53 Parking(s) en sous-sol 3 Parking(s) en sous-sol
Voir plus
Afficher les consommations énergétiques
Localisation et transport aux alentours
Favoris
Exporter
Appeler
Contacter
Signaler cette annonce










