Présente sur la métropole nantaise depuis plus de 35 ans, notre agence dispose d''une équipe experte et dynamique au service des investisseurs et entrepreneurs attirés par la métropole nantaise.L'' ...
En savoir plus

Location bureau - 1212 m²
L'emplacement de FUSION au coeur du Quartier de la Création, à proximité de nombreux services, restauration, commerces, salles de sport, crèches .... apporte aux utilisateurs de l'immeuble un grand confort d'accès et de travail, le tout à 2 pas de la Loire et des vastes espaces de détente du site des Nefs.
L'immeuble propose à tous ses occupants plus de 400 m² d'espaces communs de qualité, permettant les échanges inter-entreprises : salles de réunion, salle de détente, espace restauration avec cuisine, vestiaires et douches, accès à de grandes et terrasses végétalisées en gradin.
Idéalement desservi par les transports en commun haute fréquence : Busway 5 en pied d'immeuble, 3 lignes de tramway à 10 minutes (à pied ou en bus); future ligne de tramway (2026) à 3 minutes.
Nombreux parkings publics à toute proximité.
Honoraires: 30% HT du loyer HT/HC. à la signature du bail
| Fiche technique du bien | |
|---|---|
| Etat des locaux | Neuf |
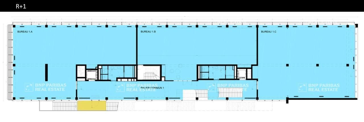
Surfaces divisibles : 5
| Surface | LoyerHT/HC/m²/an | Étage / Batiment | Infos complémentaires |
| 192 m² | N.C | RDC | C 4 |
| 85 m² | N.C | RDC | C 5 |
| 254 m² | N.C | R+1 | B1b |
| 344 m² | N.C | R+1 | B1c |
| 337 m² | N.C | R+2 | B2c |
