L’agence CBRE Nantes conseille et accompagne les chefs d’entreprise dans leurs projets immobiliers quels que soient leur taille et leur secteur d’activité. Spécialistes de la transaction de bureaux ...
En savoir plus

2 050 m² divisible dès 690 m²
HT HC
Location bureau - 2050 m²
Nantes (44000)
Dernière mise à jour : Il y a 11 jours
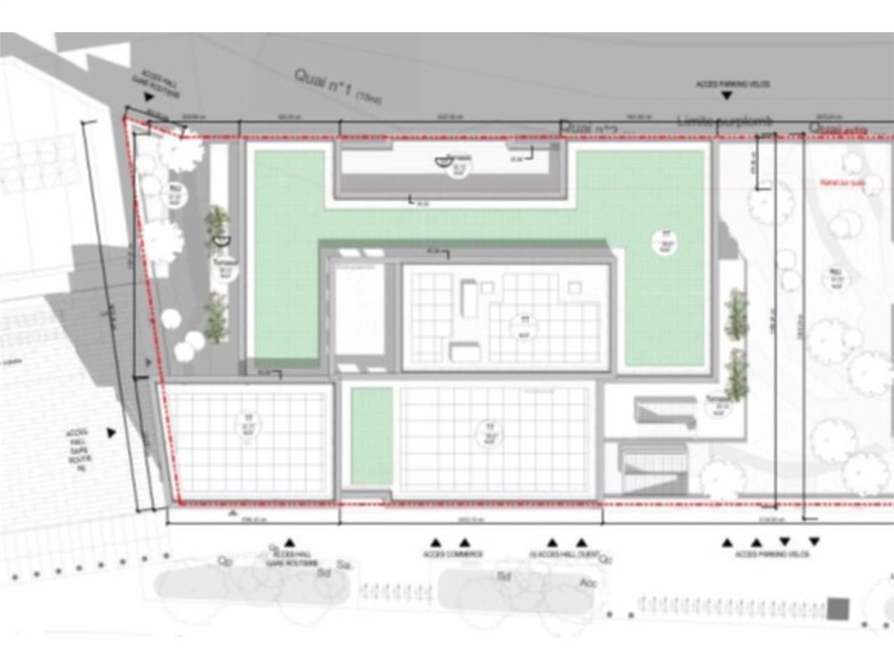
Immeuble LE CARROUSEL
EURONANTES, au sein du "Carrousel", ensemble immobilier emblématique d'Euronantes, CBRE vous propose en exclusivité 1360 m² de bureaux divisibles. Situés au dessus du pôle d'échange multimodal de la gare et de ses services, Le Carrousel est un immeuble performant en matière de consommation énergétique et d'empreinte carbone. Le plateau bénéficie d'espaces extérieurs privatifs.
Situé au pied de la Gare SNCF, « Le Carrousel » est composé d'un pôle d'échange multimodal et de deux immeubles de bureaux fonctionnant de manière indépendante. Le bâtiment en R+9 sera composé de 4 niveaux de pôle multimodal, 5 niveaux de bureaux, d'un accès à la gare, de commerces en rez-de-chaussée et d'un parking vélo de plus de 1400 places.
Situés aux 4ème et 5ème étages, CBRE vous propose des grands plateaux divisibles bénéficiant d'une vue dégagée sur Nantes.
Régime Fiscal : T.V.A.
Dépôt de garantie : 3 mois de loyer HT/HC
Honoraires : A la charge du preneur.
Prestations :
Accessibilité:
Transilien Nantes (SNCF)
Bus Gare SNCF Nord (12), Gare SNCF Sud (C3, C5, NA)
Tramway Gare SNCF Nord (1), Cité Internationale des Congrè (4)
Parkings publics EFFIA Gare Sud
Les informations sur les risques auxquels ce bien est exposé sont disponibles sur le site Géorisques : www.georisques.gouv.fr
EURONANTES, au sein du "Carrousel", ensemble immobilier emblématique d'Euronantes, CBRE vous propose en exclusivité 1360 m² de bureaux divisibles. Situés au dessus du pôle d'échange multimodal de la gare et de ses services, Le Carrousel est un immeuble performant en matière de consommation énergétique et d'empreinte carbone. Le plateau bénéficie d'espaces extérieurs privatifs.
Situé au pied de la Gare SNCF, « Le Carrousel » est composé d'un pôle d'échange multimodal et de deux immeubles de bureaux fonctionnant de manière indépendante. Le bâtiment en R+9 sera composé de 4 niveaux de pôle multimodal, 5 niveaux de bureaux, d'un accès à la gare, de commerces en rez-de-chaussée et d'un parking vélo de plus de 1400 places.
Situés aux 4ème et 5ème étages, CBRE vous propose des grands plateaux divisibles bénéficiant d'une vue dégagée sur Nantes.
| Étage | Type | Surfaces | Dispo | Loyer | Charges | Type de bailRév. annuelle |
|---|---|---|---|---|---|---|
| 4 | Bureaux | 1360 | Immédiate | 245 m²/an HT HC | 43 HT/m²/an | Sous-locationIndice ILAT |
| 5 | Bureaux | 690 | Immédiate | 245 m²/an HT HC | 43 HT/m²/an | Sous-locationIndice ILAT |
Régime Fiscal : T.V.A.
Dépôt de garantie : 3 mois de loyer HT/HC
Honoraires : A la charge du preneur.
Prestations :
- Programme neuf BREEAM Very Good/Certification E3-C2
- Prestations haut de gamme
- Terrasses privatives
- Structure bois (poteaux, poutres, murs)
- Isolation biosourcée (chanvre, lin ou coton)
- Récupération des eaux de pluies pour couvrir les besoins en eau des végétaux
- Plancher technique
- VMC Double flux
- Panneaux photovoltaïques
- Stores intérieurs
- Eclairage LED
- Chauffage urbain
- GTB et suivi énergétique
- Rafraichissement de l'air neuf système adiabatique
- Système de modulation des débits airs (sonde CO2)
- Durée du bail : nous consulter
Accessibilité:
Transilien Nantes (SNCF)
Bus Gare SNCF Nord (12), Gare SNCF Sud (C3, C5, NA)
Tramway Gare SNCF Nord (1), Cité Internationale des Congrè (4)
Parkings publics EFFIA Gare Sud
Les informations sur les risques auxquels ce bien est exposé sont disponibles sur le site Géorisques : www.georisques.gouv.fr
Voir plus
Afficher les consommations énergétiques
Localisation et transport aux alentours
Favoris
Exporter
Appeler
Contacter
Signaler cette annonce
