L’agence CBRE Nantes conseille et accompagne les chefs d’entreprise dans leurs projets immobiliers quels que soient leur taille et leur secteur d’activité. Spécialistes de la transaction de bureaux ...
En savoir plus

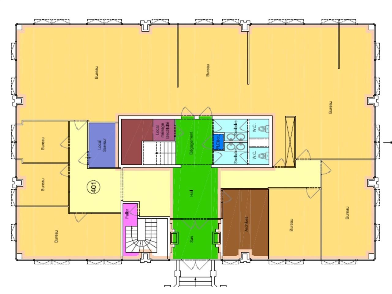
395 m² divisible dès 100 m²
HT HC
Location bureau - 395 m²
Nantes (44000)
Dernière mise à jour : Il y a 2 mois
A l'est de Nantes, au coeur du parc tertiaire de l'Aubinière, un plateau de bureaux à louer dans un immeuble indépendant. Aménagement flexible en, openspace ou bureaux cloisonnés. Accès rapide au périphérique via la Route de Paris, stationnement et commodités à proximité.
A l'est de Nantes, au coeur du parc tertiaire de l'Aubinière, un plateau de bureaux à louer dans un immeuble indépendant. Aménagement flexible en, openspace ou bureaux cloisonnés. Accès rapide au périphérique via la Route de Paris, stationnement et commodités à proximité.
Impôt Foncier : 20,98 €/m²/an
Régime Fiscal : T.V.A.
Dépôt de garantie : 3 mois de loyer HT/HC
Honoraires : 15% la charge du preneur.
Prestations :
Accessibilité:
Bus Danemark (77, 85)
Les informations sur les risques auxquels ce bien est exposé sont disponibles sur le site Géorisques : www.georisques.gouv.fr
A l'est de Nantes, au coeur du parc tertiaire de l'Aubinière, un plateau de bureaux à louer dans un immeuble indépendant. Aménagement flexible en, openspace ou bureaux cloisonnés. Accès rapide au périphérique via la Route de Paris, stationnement et commodités à proximité.
| Étage | Type | Surfaces | Dispo | Loyer | Charges | Type de bailRév. annuelle |
|---|---|---|---|---|---|---|
| 1 | Bureaux | 395 | Immédiate | 120 m²/an HT HC | 46 HT/m²/an | 3-6-9 ansIndice ILAT |
| Parkings | Immédiate | 600 U/an HT HC | 3-6-9 ansIndice ILAT |
Impôt Foncier : 20,98 €/m²/an
Régime Fiscal : T.V.A.
Dépôt de garantie : 3 mois de loyer HT/HC
Honoraires : 15% la charge du preneur.
Prestations :
- Bâtiment indépendant
- Contrôle d'accès
- Plateaux rationnels
- Belle luminosité
- Rénovation qualitative
Accessibilité:
Bus Danemark (77, 85)
Les informations sur les risques auxquels ce bien est exposé sont disponibles sur le site Géorisques : www.georisques.gouv.fr
Emplacement(s) de Parking: 14 places
Voir plus
Afficher les consommations énergétiques
Favoris
Exporter
Appeler
Contacter
Signaler cette annonce
