Evolis, votre partenaire en immobilier d’entreprise! Que vous soyez une entreprise, utilisateur de locaux professionnels, investisseur, ou propriétaire, Evolis met à votre service son expertise ...
En savoir plus

139 m²
HT HC
Location bureau - 139 m²
Montrouge (92120)
Dernière mise à jour : Il y a 4 jours
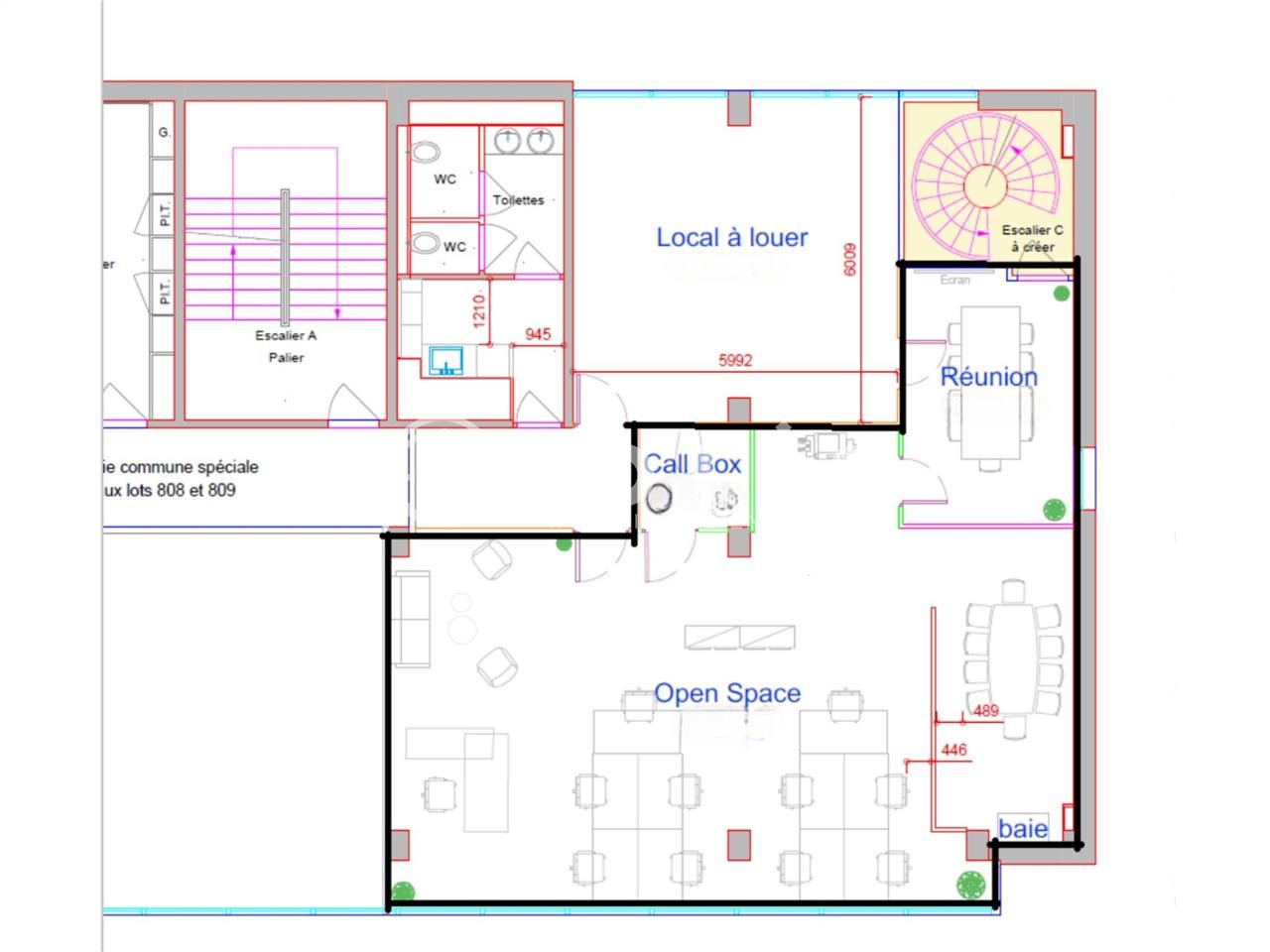
A LOUER - BUREAUX de standing À MONTROUGE
A proximité immédiate de la porte d'Orléans et proche du métro ligne 4, EVOLIS vous propose une surface de 139 m² de bureaux à louer accompagnée de 5 emplacements de parking en sous-sol et d'un local d'archives de 15 m².
Les bureaux sont situés dans un immeuble entièrement rénové de standing, offrant des prestations de qualité : climatisation double flux, espaces déjà aménagés, archives et parkings en sous-sol.
Une opportunité rare pour les entreprises ou investisseurs à la recherche de locaux flexibles, fonctionnels et idéalement situés proche de la Vache Noire et de son centre commercial.
Impôt Foncier : 51 €/m²/an HT
Régime Fiscal : T.V.A.
Dépôt de garantie : 3 mois de loyer HT HC
Honoraires : A la charge du preneur
Prestations :
Accessibilité:
Bus De Gaulle / Vanne (MONTBUS), Léon Gambetta (187, 188, 197, N21, N14)
Métro Ligne 4
RER Laplace (B)
Route Boulevard Périphérique - Porte d'Orléans
Route RN20
Grand Paris Express Bagneux (L15 Fin 2026)
Les informations sur les risques auxquels ce bien est exposé sont disponibles sur le site Géorisques : www.georisques.gouv.fr
A proximité immédiate de la porte d'Orléans et proche du métro ligne 4, EVOLIS vous propose une surface de 139 m² de bureaux à louer accompagnée de 5 emplacements de parking en sous-sol et d'un local d'archives de 15 m².
Les bureaux sont situés dans un immeuble entièrement rénové de standing, offrant des prestations de qualité : climatisation double flux, espaces déjà aménagés, archives et parkings en sous-sol.
Une opportunité rare pour les entreprises ou investisseurs à la recherche de locaux flexibles, fonctionnels et idéalement situés proche de la Vache Noire et de son centre commercial.
| Étage | Type | Surfaces | Dispo | Loyer | Charges | Type de bailRév. annuelle |
|---|---|---|---|---|---|---|
| 7 | Bureaux | 139 | Nous consulter | 280 m²/an/ HT/HC | 60 m²/an HT | Bail commercial 3-6-9 ansILAT Indice des Loyers des Activités Tertiaires |
| SS | Archives | 15 | Nous consulter | 120 m²/an/ HT/HC | Bail commercial 3-6-9 ansILAT Indice des Loyers des Activités Tertiaires | |
| 3SS | Parkings | Nous consulter | 1500 place/an/ HT/HC | Bail commercial 3-6-9 ansILAT Indice des Loyers des Activités Tertiaires |
Impôt Foncier : 51 €/m²/an HT
Régime Fiscal : T.V.A.
Dépôt de garantie : 3 mois de loyer HT HC
Honoraires : A la charge du preneur
Prestations :
- Site clos
- Interphone
- Digicode
- Ascenseurs
- Accueil
- Bureaux en Open space
- Salle de réunion
- Phone box
- Climatisation double flux
- Dalles PVC imitation parquet
- Faux plafond
- Plinthes périphériques pour le câblage informatique
- Baie de brassage
- Kitchenette
- Sanitaires privatifs
Accessibilité:
Bus De Gaulle / Vanne (MONTBUS), Léon Gambetta (187, 188, 197, N21, N14)
Métro Ligne 4
RER Laplace (B)
Route Boulevard Périphérique - Porte d'Orléans
Route RN20
Grand Paris Express Bagneux (L15 Fin 2026)
Les informations sur les risques auxquels ce bien est exposé sont disponibles sur le site Géorisques : www.georisques.gouv.fr
Voir plus
Afficher les consommations énergétiques
Localisation et transport aux alentours
Favoris
Exporter
Appeler
Contacter
Signaler cette annonce
