L’agence CBRE Lille conseille et accompagne les chefs d’entreprise dans leurs projets immobiliers quels que soient leur taille et leur secteur d’activité. Spécialistes de la transaction de bureaux, ...
En savoir plus

256 m²
HT HC
Location bureau - 256 m²
Marcq-en-Baroeul (59700)
Dernière mise à jour : Aujourd'hui
Immeuble neuf de bureaux à vendre à louer
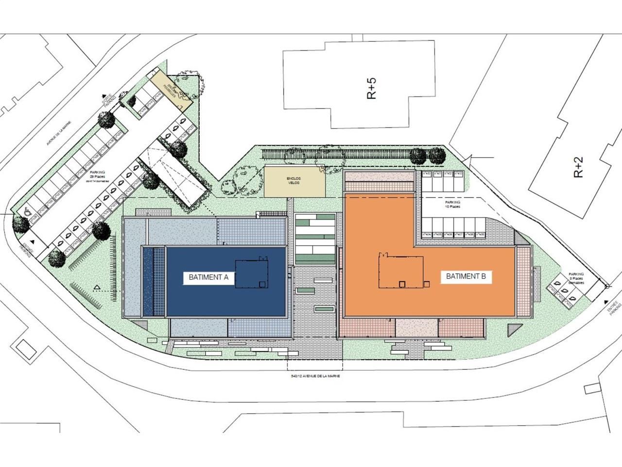
Au coeur du Parc Europe de Marcq en Baroeul, nous vous présentons deux surfaces de bureaux neuves développant 685 m², en cours de travaux, intitulés EMPREINTE. Idéalement situées, à proximité directe des transports en commun ainsi que des grands axes routiers, cet emplacement permet de rayonner sur l'ensemble de la Métropole Lilloise.
Le Parc Europe à Marcq-en-Baroeul est un parc d'affaires moderne situé au Avenue de la Marne. Il offre des bureaux et des espaces de travail pour diverses entreprises, avec des bâtiments au design contemporain et des aménagements paysagers soignés.
Régime Fiscal : T.V.A.
Dépôt de garantie : 3 mois de loyer HT/HC
Paiement Loyer : trimestriel
Honoraires : 15% HT du loyer annuel HT HC à la charge du preneur
Prestations :
Accessibilité:
Autoroute A1/ A22 / A23 / A25 / A27
Bus Ligne arrêt : Verdun à 3 min
Route Voie Rapide Urbaine
Aeroport Lille Lesquin à 20 min
SNCF Gares TER & TGV à 15 min
Tramway Station : Château Rouge à 500 m
Station V'Lille à 5 min
Les informations sur les risques auxquels ce bien est exposé sont disponibles sur le site Géorisques : www.georisques.gouv.fr
Au coeur du Parc Europe de Marcq en Baroeul, nous vous présentons deux surfaces de bureaux neuves développant 685 m², en cours de travaux, intitulés EMPREINTE. Idéalement situées, à proximité directe des transports en commun ainsi que des grands axes routiers, cet emplacement permet de rayonner sur l'ensemble de la Métropole Lilloise.
Le Parc Europe à Marcq-en-Baroeul est un parc d'affaires moderne situé au Avenue de la Marne. Il offre des bureaux et des espaces de travail pour diverses entreprises, avec des bâtiments au design contemporain et des aménagements paysagers soignés.
| Étage | Type | Surfaces | Dispo | Loyer | Charges | Type de bailRév. annuelle |
|---|---|---|---|---|---|---|
| 2 | Bureaux | 256 | Immédiate | 190 m²/an HT HC | 23 HT/m²/an | 3-6-9 ansIndice ILAT |
Régime Fiscal : T.V.A.
Dépôt de garantie : 3 mois de loyer HT/HC
Paiement Loyer : trimestriel
Honoraires : 15% HT du loyer annuel HT HC à la charge du preneur
Prestations :
- Ascenseur desservant les étages ainsi que le sous-sol
- Bornes de recharges électriques (véhicules électriques, vélos, trottinettes, voitures.)
- Bâtiment passif -50% par rapport à la RE2020
- Climatisation double-flux
- Contrôle d'accès sécurisé
- Espaces de travail lumineux
- Espace de travail partagé, modulable, ouvert sur l'extérieur
- Eclairage LED
- Faux plancher
- Faux plafond
- Fibre optique
- Hall d'accueil : Services et conciergerie (RDC bât. A)
- Local vélo / trottinette
- Plateaux livrés en base paysagère
- Protection solaire / triple vitrage
- Visiophonie
- Terrasses privatives à chaque étage (végétalisées & connectées)
- Certification : PASSIVE
- Surface terrasses
- Bâtiment A :
- R+2 : 74 m²
- Places de parking :
- Loyer : 600 euros HT/U/an
- R+2 : 6 places extérieures
- Les frais de gestion sont inclus dans les charges.
Accessibilité:
Autoroute A1/ A22 / A23 / A25 / A27
Bus Ligne arrêt : Verdun à 3 min
Route Voie Rapide Urbaine
Aeroport Lille Lesquin à 20 min
SNCF Gares TER & TGV à 15 min
Tramway Station : Château Rouge à 500 m
Station V'Lille à 5 min
Les informations sur les risques auxquels ce bien est exposé sont disponibles sur le site Géorisques : www.georisques.gouv.fr
Voir plus
Afficher les consommations énergétiques
Favoris
Exporter
Appeler
Contacter
Signaler cette annonce
