BNP Paribas Real Estate Lille, qui revendique plus de 40 ans de présence sur le marché lillois, est composé d''une équipe expérimentée aux expertises diversifiées. Elle est principalement composée ...
En savoir plus



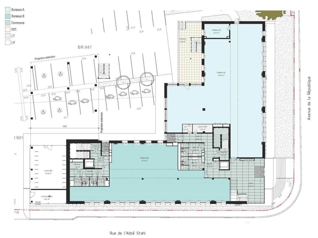
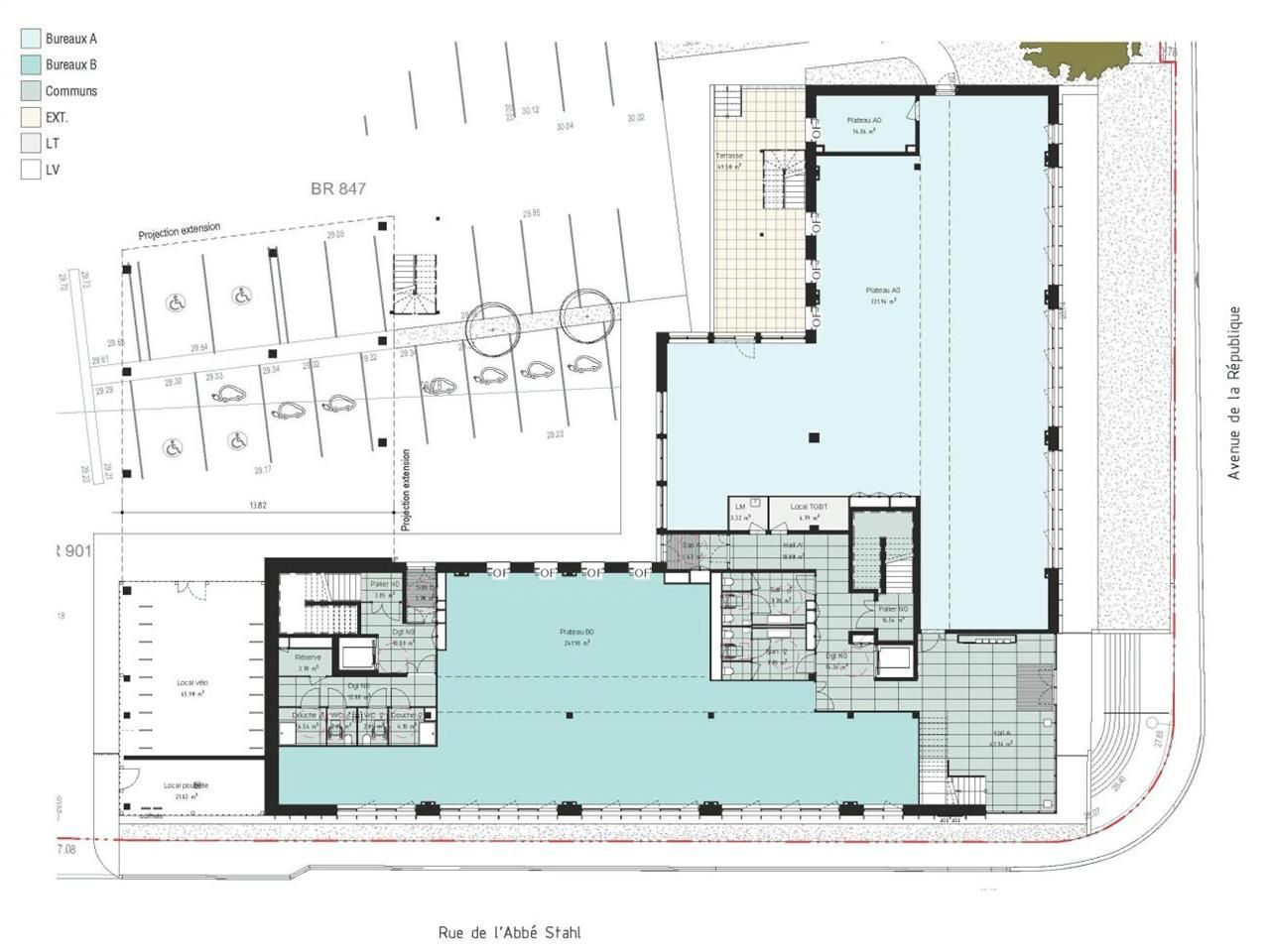
3 471 m² divisible dès 234 m²
HT HC
Le 843 - Location bureau - 3471 m²
Marcq-en-Baroeul (59700)
Dernière mise à jour : Il y a 6 jours
Bureaux à louer sur l'Avenue de la République de Marcq-en-Baroeul. Nouveau programme de bureaux, situé à Marcq-en-Baroeul 843 avenue de la République
BNPPRE Présente : A LOUER Nouveau Programme de Bureaux à Marcq-en-Baroeul
Adresse : 843 Avenue de la République, Marcq-en-Baroeul
BNPPRE est fier de vous présenter ce nouveau programme immobilier de bureaux, idéalement situé au coeur de Marcq-en-Baroeul. Concu pour répondre aux besoins des entreprises locales et des acteurs économiques de la région, ce projet offre des espaces de travail modernes et fonctionnels.
Caractéristiques Clés :
- Emplacement Stratégique : Situé sur l'avenue de la République, ce projet bénéficie d'une accessibilité exceptionnelle. Il est directement connecté aux principaux axes routiers de la métropole lilloise, facilitant un accès rapide au centre-ville de Lille et aux grands pôles économiques environnants.
- Transports en Commun : Station de Tramway "BUISSON" à 270 m, gare Lille flandres à 10 minutes en tramway, station V'Lille "Buisson" à moins de 100 mètres. Le HUB des Gares de Lille est accessible en seulement 12 minutes à vélo.
- Innovation et Qualité : Ce développement allie innovation, qualité de construction et respect des normes environnementales actuelles, offrant un cadre de travail idéal pour les entreprises soucieuses de leur impact écologique.
- Délais de Réalisation :
- Démarrage des travaux : mars/avril 2025
- Livraison prévisionnelle : T3 2026
- Bureaux à louer Marcq-en-Baroeul
- Immobilier d'entreprise Lille
- Espaces de travail modernes
- Accessibilité bureaux Lille
- Développement immobilier durable
- Emplacement stratégique Marcq-en-Baroeul
- Transports en commun Lille
- BNPPRE nouveaux projets
Toutes nos offres sur https://www.bnppre.fr/bureau/nord-59/
Disponibilité: 30/06/2027Honoraires: 15% HT du loyer HT/HC. à la signature du bail
| Fiche technique du bien | |
|---|---|
| Bus | Lignes à proximité : C10, 16 |
| Tramway | Station "Buisson" 3 min |
| Desserte routière | VRU, A1, A22, A23, A25, A27 |
| Gare | Flandre à 5 stations de tramway 9 min |
| Gare | Europe à 5 stations de tramway 9 min |
| Etat des locaux | Rénové Uniquement les parties communes |
Afficher les consommations énergétiques
Localisation et transport aux alentours
- Buisson271m (4min à pied)RT
Favoris
Exporter
Appeler
Contacter
Signaler cette annonce










