Nous sommes Immprove, une grande équipe de plus de 200 experts en immobilier d’entreprise, implantés localement avec plus de 20 agences sur tout le territoire.Depuis 2009, notre proximité, notre ét ...
En savoir plus



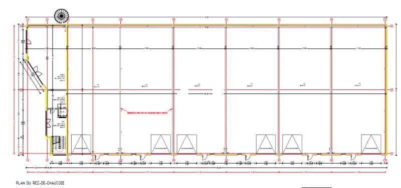
1 226 m² divisible dès 92 m²
HT HC
Location bureau - 1226 m²
Le Mesnil-Amelot (77990)
Dernière mise à jour : Il y a 2 mois
CELLULE D'ACTIVITE ET BUREAUX PROCHE AEROPORT
Dans la zone d'activité du Mesnil Amelot, Immprove vous propose à la location plusieurs de bureaux et une surface d'activité de 1 226 m² divisible à partir de 91 m².
Prestation neuves, ascenseur disponible, bureaux avec terrasse (en fonction des lots).
Impôt Foncier : 10 €/m²/an HT
Régime Fiscal : T.V.A. (20%)
Dépôt de garantie : 3 mois de loyer HT HC
Paiement Loyer : Trimestriel
Honoraires : 15% HT du loyer annuel HT HC à la charge du preneur
Prestations :
Accessibilité:
Bus 2101 - 2102 - 2161 - 2162 à proximité
SNCF Ligne K : Mitry -Claye et Thieux-Nantouillet
Autoroute A1 - N104 - N2 à proximité
Les informations sur les risques auxquels ce bien est exposé sont disponibles sur le site Géorisques : www.georisques.gouv.fr
Dans la zone d'activité du Mesnil Amelot, Immprove vous propose à la location plusieurs de bureaux et une surface d'activité de 1 226 m² divisible à partir de 91 m².
Prestation neuves, ascenseur disponible, bureaux avec terrasse (en fonction des lots).
| Étage | Type | Surfaces | Dispo | Loyer | Charges | Type de bailRév. annuelle |
|---|---|---|---|---|---|---|
| 1 | Bureaux | 226,74 | Immédiate | 115 m²/an HT HC | 25 m²/an HT | Bail Commercial 3-6-9 ansselon l'indice des loyers des activités tertiaires (ILAT) |
| 2 | Bureaux | 432,95 | Immédiate | 80 m²/an HT HC | 25 m²/an HT | Bail Commercial 3-6-9 ansselon l'indice des loyers des activités tertiaires (ILAT) |
| 1 | Bureaux | 193,2 | Immédiate | 80 m²/an HT HC | 25 m²/an HT | Bail Commercial 3-6-9 ansselon l'indice des loyers des activités tertiaires (ILAT) |
| RDC | Activités | 281,29 | Immédiate | 125 m²/an HT HC | 25 m²/an HT | Bail Commercial 3-6-9 ansselon l'indice des loyers des activités tertiaires (ILAT) |
| RDC | Bureaux | 91,84 | Immédiate | 80 m²/an HT HC | 25 m²/an HT | Bail Commercial 3-6-9 ansselon l'indice des loyers des activités tertiaires (ILAT) |
Impôt Foncier : 10 €/m²/an HT
Régime Fiscal : T.V.A. (20%)
Dépôt de garantie : 3 mois de loyer HT HC
Paiement Loyer : Trimestriel
Honoraires : 15% HT du loyer annuel HT HC à la charge du preneur
Prestations :
- Façade en bardage
- Accès véhicules légers
- Accès poids lourds
- Portail d'accès
- Parties communes de qualité
- Site sécurisé 24h/24h
- BUREAUX :
- Locaux neuf et lumineux aménagés en :
- Accueil
- Espace ouvert
- Sanitaires privatifs
- Locaux modulables
- Terrasse privative
- Faux plafonds
- Sol PVC
- Pré-câblage informatique et téléphonique
- ENTREPOTS :
- Charge au sol : 3 tonnes / m²
- Hauteur libre : 7 m
- Porte sectionnelle de plain-pied : 4x4 m
- Puissance électrique : 36 kVA
- Tarif bleu
- Parking extérieur
- Surface RDC : 373,13 m²
- Surface terrain : 0
Accessibilité:
Bus 2101 - 2102 - 2161 - 2162 à proximité
SNCF Ligne K : Mitry -Claye et Thieux-Nantouillet
Autoroute A1 - N104 - N2 à proximité
Les informations sur les risques auxquels ce bien est exposé sont disponibles sur le site Géorisques : www.georisques.gouv.fr
Voir plus
Afficher les consommations énergétiques
Localisation et transport aux alentours
Favoris
Exporter
Appeler
Contacter
Signaler cette annonce

