Nous sommes Immprove, une grande équipe de plus de 200 experts en immobilier d’entreprise, implantés localement avec plus de 20 agences sur tout le territoire.Depuis 2009, notre proximité, notre ét ...
En savoir plus

1 294 m² divisible dès 104 m²
HT HC
Location bureau - 1294 m²
Le Chesnay (78150)
Dernière mise à jour : Il y a 2 mois
PRODUIT RARE
LE CHESNAY - Immprove vous propose à la location des surfaces de bureaux ou de stockage au sein d'un immeuble de bureaux, le tout à proximité immédiate du centre commercial de Parly II et des grands axes. Au sein d'un immeuble sécurisé et accessible depuis un ascenseur PMR, vous profiterez de surfaces de bureaux lumineuses en étage, bénéficiant de sanitaires privatifs, d'un espace cuisine avec arrivée d'eau pour certains bureaux. Places de parkings en extérieur. Pour de plus amples informations ou demande de visite, contactez-nous.
Régime Fiscal : T.V.A. (20%)
Dépôt de garantie : 3 mois de loyer HT HC
Honoraires : 15% HT du loyer annuel HT HC à la charge du preneur
Information sur le Bail :
Les charges comprennent : Taxe foncière, taxe bureaux, chauffage, ascenseur, vidéosurveillance et charges générales d'entretiens. Reste à la charge du preneur : électricité et réseau. En option supplémentaire : place de parking disponibles en extérieur au prix de 600 euros/U/an HT
Prestations :
Accessibilité:
Bus Bus nombreuses lignes - Arrêt Centre Commercial Parly 2
Autoroute Autoroute A13
Les informations sur les risques auxquels ce bien est exposé sont disponibles sur le site Géorisques : www.georisques.gouv.fr
LE CHESNAY - Immprove vous propose à la location des surfaces de bureaux ou de stockage au sein d'un immeuble de bureaux, le tout à proximité immédiate du centre commercial de Parly II et des grands axes. Au sein d'un immeuble sécurisé et accessible depuis un ascenseur PMR, vous profiterez de surfaces de bureaux lumineuses en étage, bénéficiant de sanitaires privatifs, d'un espace cuisine avec arrivée d'eau pour certains bureaux. Places de parkings en extérieur. Pour de plus amples informations ou demande de visite, contactez-nous.
| Étage | Type | Surfaces | Dispo | Loyer | Charges | Type de bailRév. annuelle |
|---|---|---|---|---|---|---|
| 3 | Bureaux | 271,3 | Après accord | 230 m²/an HT HC | 70 m²/an HT | Bail Commercial 3-6-9 ansselon l'indice des loyers des activités tertiaires (ILAT) |
| 2 | Bureaux | 128 | Immédiate | 215 m²/an HT HC | 70 m²/an HT | Bail Commercial 3-6-9 ansselon l'indice des loyers des activités tertiaires (ILAT) |
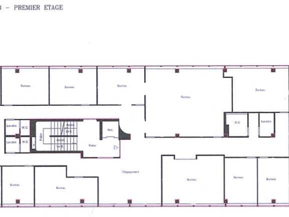
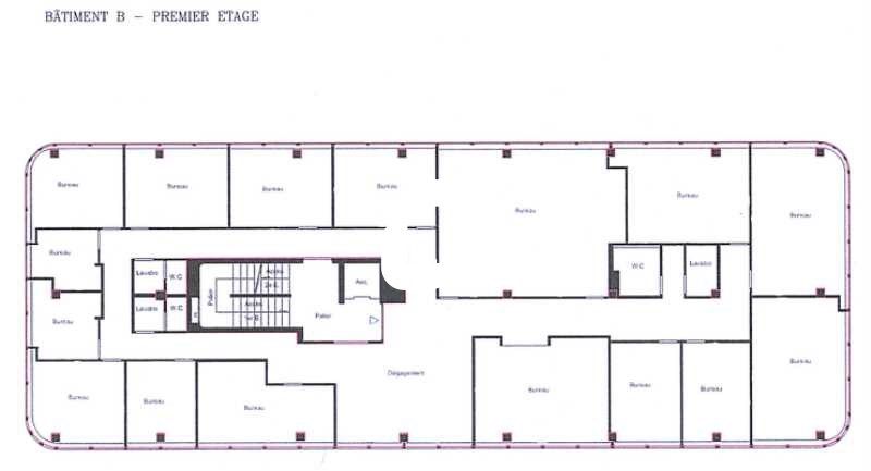
| 1 | Bureaux | 429 | Immédiate | 215 m²/an HT HC | 70 m²/an HT | Bail Commercial 3-6-9 ansselon l'indice des loyers des activités tertiaires (ILAT) |
| RDJ | Activités | 362 | Immédiate | 150 m²/an HT HC | 36 m²/an HT | Bail Commercial 3-6-9 ansselon l'indice des loyers des activités tertiaires (ILAT) |
| RDJ | Activités | 104 | Immédiate | 150 m²/an HT HC | 36 m²/an HT | Bail Commercial 3-6-9 ansselon l'indice des loyers des activités tertiaires (ILAT) |
| Parkings | Immédiate | 600 place/an HT HC | Bail Commercial 3-6-9 ansselon l'indice des loyers des activités tertiaires (ILAT) |
Régime Fiscal : T.V.A. (20%)
Dépôt de garantie : 3 mois de loyer HT HC
Honoraires : 15% HT du loyer annuel HT HC à la charge du preneur
Information sur le Bail :
Les charges comprennent : Taxe foncière, taxe bureaux, chauffage, ascenseur, vidéosurveillance et charges générales d'entretiens. Reste à la charge du preneur : électricité et réseau. En option supplémentaire : place de parking disponibles en extérieur au prix de 600 euros/U/an HT
Prestations :
- Immeuble moderne
- Façade mur rideau
- Accès véhicules légers
- Contrôle d'accès
- Vidéosurveillance
- Ascenseur PMR
- Fibre
- Immeuble PMR et ERP
- Ascenseur PMR
- Locaux en bon état et lumineux
- Cloisonnement amovible
- Climatisation réversible dans certains lots
- Sanitaires privatifs
- Parking en extérieur
- Surface RDC : 466 m²
Accessibilité:
Bus Bus nombreuses lignes - Arrêt Centre Commercial Parly 2
Autoroute Autoroute A13
Les informations sur les risques auxquels ce bien est exposé sont disponibles sur le site Géorisques : www.georisques.gouv.fr
Voir plus
Afficher les consommations énergétiques
Localisation et transport aux alentours
Favoris
Exporter
Appeler
Contacter
Signaler cette annonce






