AIRES d'entreprises est une société indépendante de l'immobilier d'entreprises qui conjugue le conseil aux utilisateurs et aux investisseurs en répondant aux problématiques des entreprises et à la ...
En savoir plus

2 565 m² divisible dès 68 m²
HT HC
Location bureau - 2565 m²
La Madeleine (59110)
Dernière mise à jour : Il y a 11 mois
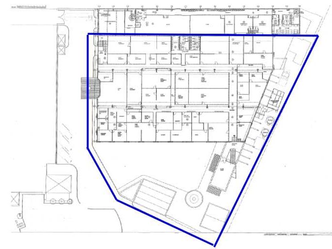
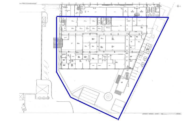
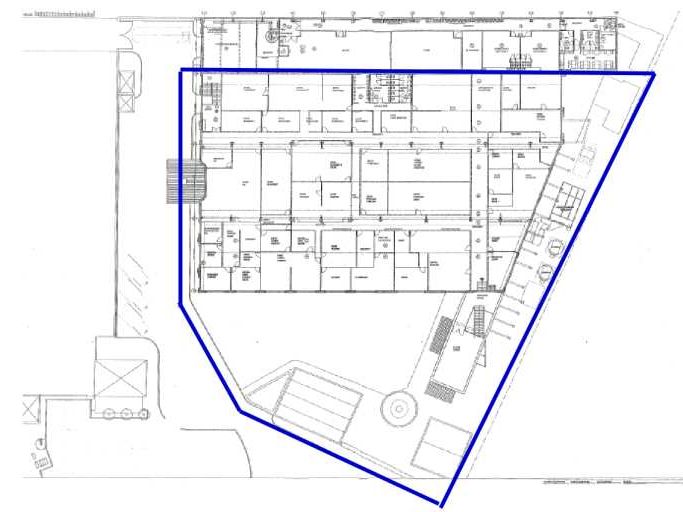
À louer 2565 m² de surface de bureaux qui se décomposent comme suit :
- Environ 68 m² de bureaux en rez-de-chaussée
- Environ 104 m² de bureaux en rez-de-chaussée
- Environ 2 172 m² de bureaux en R+1
- un accueil au rez-de-chaussée d'une superficie d'environ 104 m²
- Une salle de réunion à l'entresol d'une superficie d'environ 105 m²
- Un réfectoire de 116 m² environ.
Il se situé dans un cadre verdoyant, proche de toutes commodités, à deux pas de la Gare.
Impôt Foncier : 21500 €/HT/an
Régime Fiscal : T.V.A.
Honoraires : 15 % HT du loyer annuel HT, à la charge du Preneur
Information sur le Bail :
Provision pour charges : 11.900 euros ht/an (Assurance - Communs électricité - Interventions diverses - Entretien espaces verts - Suivi technique maintenance SG) Redevance Terrain arrière : 3.450 euros ht/an Provision électricité : 35.800 euros ht/an, selon consommation Provision eau : 8.100 euros ht/an selon consommation Provision Gaz : 45.500 euros ht/an selon consommation
Prestations :
Accessibilité:
SNCF La Madeleine (Nord) (SNCF)
Bus Arrêt de bus à proximité
Tram Proche Tram
Les informations sur les risques auxquels ce bien est exposé sont disponibles sur le site Géorisques : www.georisques.gouv.fr
- Environ 68 m² de bureaux en rez-de-chaussée
- Environ 104 m² de bureaux en rez-de-chaussée
- Environ 2 172 m² de bureaux en R+1
- un accueil au rez-de-chaussée d'une superficie d'environ 104 m²
- Une salle de réunion à l'entresol d'une superficie d'environ 105 m²
- Un réfectoire de 116 m² environ.
Il se situé dans un cadre verdoyant, proche de toutes commodités, à deux pas de la Gare.
| Étage | Type | Surfaces | Dispo | Loyer | Charges | Type de bailRév. annuelle |
|---|---|---|---|---|---|---|
| Parties communes | 116 | 3-6-9 ansILAT Indice des Loyers des Activités Tertiaires | ||||
| Bureaux | 68 | 3-6-9 ansILAT Indice des Loyers des Activités Tertiaires | ||||
| 1 | Bureaux | 2172 | 3-6-9 ansILAT Indice des Loyers des Activités Tertiaires | |||
| Entre-sol | Salle de Réunion | 105 | 3-6-9 ansILAT Indice des Loyers des Activités Tertiaires | |||
| RDC | Accueil | 104 | 3-6-9 ansILAT Indice des Loyers des Activités Tertiaires | |||
| Parkings | 3-6-9 ansILAT Indice des Loyers des Activités Tertiaires |
Impôt Foncier : 21500 €/HT/an
Régime Fiscal : T.V.A.
Honoraires : 15 % HT du loyer annuel HT, à la charge du Preneur
Information sur le Bail :
Provision pour charges : 11.900 euros ht/an (Assurance - Communs électricité - Interventions diverses - Entretien espaces verts - Suivi technique maintenance SG) Redevance Terrain arrière : 3.450 euros ht/an Provision électricité : 35.800 euros ht/an, selon consommation Provision eau : 8.100 euros ht/an selon consommation Provision Gaz : 45.500 euros ht/an selon consommation
Prestations :
- Grand parking privatif
- Surface RDC : 0 m²
Accessibilité:
SNCF La Madeleine (Nord) (SNCF)
Bus Arrêt de bus à proximité
Tram Proche Tram
Les informations sur les risques auxquels ce bien est exposé sont disponibles sur le site Géorisques : www.georisques.gouv.fr
Emplacement(s) de Parking: 57 places
Voir plus
Afficher les consommations énergétiques
Favoris
Exporter
Appeler
Contacter
Signaler cette annonce










