BNP Paribas Real Estate Lille, qui revendique plus de 40 ans de présence sur le marché lillois, est composé d''une équipe expérimentée aux expertises diversifiées. Elle est principalement composée ...
En savoir plus



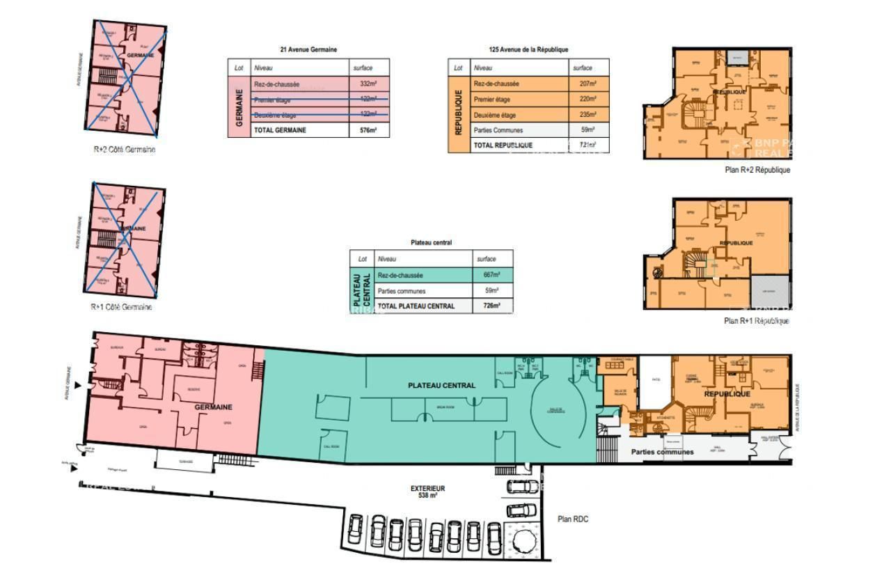
Location bureau - 1714 m²
BNNPRE vous propose à la location cet immeuble indépendant bénéficiant d'un emplacement stratégique, à proximité immédiate du quartier dynamique d'Euralille, 3ème quartier d'affaires de France, offrant ainsi un cadre de travail urbain et dynamique, propice à la productivité !
ACCESSIBILITE :
Sa localisation optimale, à moins de 20 min à pied des Gares de Lille permettra à vos équipes et clients de pouvoir opter pour de multiples options de transport :
Nombreux arrêts de bus qui desservent la zone
Arrêt tramway " Romarin " à 3 min à pied 220 mètres
Arrêt métro " Saint-Maurice Pellevoisin " à 23 min à pied 1,6 km
Station V'Lille " Romarin " à 3 min à pied 220 mètres
Aéroport " Lille-Lesquin " à 12 minutes en voiture 10,8 km
Accès routiers & autoroutiers - VRU, A1, A22, A23, A25, A27
Concernant l'immeuble :
Immeuble de 1930 rénové.
Facade historique.
Places de parking
Climatisé
Douches
Vous souhaitez trouver des espaces de bureaux, un plateau ou un local professionnel dans la métropole lilloise/ Lille ? Nous vous proposons une large gamme d'offres de location et de vente dans le Nord, adaptées aux besoins de votre entreprise. Consultez nos surfaces disponibles et choisissez l'unité de bureaux qui dynamisera votre activité dans le Nord-Pas-de-Calais.
Toutes nos offres sur bnppre.fr/bureau/nord-59/
Disponibilité: ImmédiateHonoraires: 15% HT du loyer HT/HC. à la signature du bail
| Fiche technique du bien | |
|---|---|
| Métro | Arrêt « Saint-Maurice Pellevoisin » à 23 min à pied 2 km |
| Bus | Lignes : 86, 88, L5, L91 |
| Tramway | Arrêt « Romarin » à 3 min à pied 220 m |
| Desserte routière | VRU, A1, A22, A23, A25, A27 |
| Aéroport | Lille lesquin 12 min en voiture 11 km |
| Gare | Flandre 18 min à pied 1 km |
| Gare | Europe 18 min à pied 1 km |
| Climatisation | Oui |
Surfaces divisibles : 3
| Surface | LoyerHT/HC/m²/an | Étage / Batiment | Infos complémentaires |
| 726 m² | N.C | RDC | LOT PLATEAU CENTRAL |
| 267 m² | N.C | RDC | LOT GERMAINE |
| 721 m² | N.C | RDC | LOT REPUBLIQUE |
