Conseil en immobilier d'entreprise, Cushman & Wakefield est un acteur incontournable au rayonnement international. Cushman & Wakefield offre des solutions dans toutes les étapes que comporte un p ...
En savoir plus

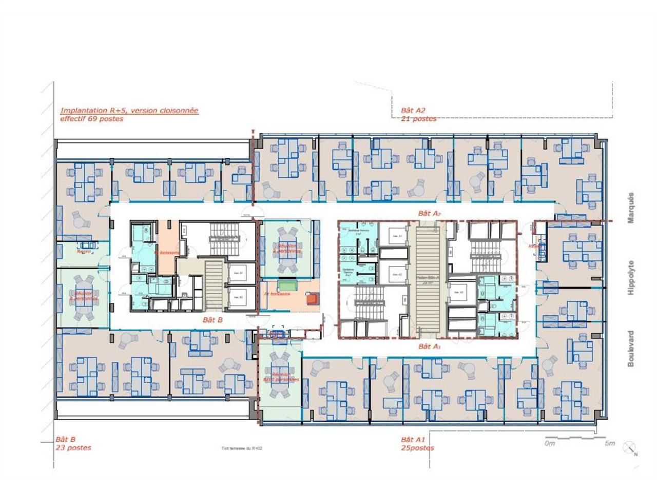
628 m² divisible dès 233 m²
HT HC
METROSUD - Location bureau - 628 m²
Ivry-sur-Seine (94200)
Dernière mise à jour : Il y a 5 mois
En bordure du périphérique Porte d'Ivry
Immeuble METROSUD
À Ivry-sur-Seine, une surface de bureaux de 630 m² est disponible à la location au 9e étage de l'immeuble Metrosud, offrant une vue dégagée et une belle luminosité tout au long de la journée. Idéalement situé en bordure du périphérique Porte d'Ivry, cet immeuble moderne propose un environnement de travail agréable et facilement accessible.
Le plateau, entièrement climatisé, est modulable selon les besoins : open space ou bureaux cloisonnés. Les utilisateurs bénéficient d'espaces partagés récemment rénovés, comprenant une cafétéria, des zones de détente ainsi que des salles de réunion mutualisées.
L'immeuble est parfaitement connecté aux transports en commun, à seulement quelques minutes à pied du métro ligne 7 et du tramway T3a. Un accueil avec contrôle d'accès est présent au rez-de-chaussée pour garantir la sécurité et le confort de vos équipes.
Une opportunité à saisir pour implanter vos bureaux dans un immeuble bien situé, flexible et fonctionnel. Contactez-nous pour organiser une visite.
Impôt Foncier : 37 €//m²/an
Régime Fiscal : T.V.A.
Dépôt de garantie : 3 mois de loyer HT/HC
Paiement Loyer : Trimestriel
Honoraires : à la charge du preneur
Taxe Bureau : 11,66 €/m²/an
Information sur le Bail :
Espace service : 7 euros HTHC/m²
Prestations :
Accessibilité:
Métro Porte d'Ivry (ligne 7)
Tram Porte d'Ivry (T3a)
Tram Chateaudun - Barbès (T9)
Bus Lignes 27-83-132-323
Accès routier BP sortie "Porte d'Ivry" - N7-N305-D50-D54
Les informations sur les risques auxquels ce bien est exposé sont disponibles sur le site Géorisques : www.georisques.gouv.fr
Immeuble METROSUD
À Ivry-sur-Seine, une surface de bureaux de 630 m² est disponible à la location au 9e étage de l'immeuble Metrosud, offrant une vue dégagée et une belle luminosité tout au long de la journée. Idéalement situé en bordure du périphérique Porte d'Ivry, cet immeuble moderne propose un environnement de travail agréable et facilement accessible.
Le plateau, entièrement climatisé, est modulable selon les besoins : open space ou bureaux cloisonnés. Les utilisateurs bénéficient d'espaces partagés récemment rénovés, comprenant une cafétéria, des zones de détente ainsi que des salles de réunion mutualisées.
L'immeuble est parfaitement connecté aux transports en commun, à seulement quelques minutes à pied du métro ligne 7 et du tramway T3a. Un accueil avec contrôle d'accès est présent au rez-de-chaussée pour garantir la sécurité et le confort de vos équipes.
Une opportunité à saisir pour implanter vos bureaux dans un immeuble bien situé, flexible et fonctionnel. Contactez-nous pour organiser une visite.
| Étage | Type | Surfaces | Dispo | Loyer | Charges | Type de bailRév. annuelle |
|---|---|---|---|---|---|---|
| 9 | Bureaux | 395 | 250 HT/HC/m²/an | 50 HT/m²/an | 3-6-9 ansSur l'indice ILAT | |
| 9 | Bureaux | 233 | 250 HT/HC/m²/an | 50 HT/m²/an | 3-6-9 ansSur l'indice ILAT | |
| SS | Arch./Reser. | 263 | 70 HT/HC/m²/an | 3-6-9 ansSur l'indice ILAT | ||
| Intérieur | Parkings | 1200 HT/HC/U/an | 3-6-9 ansSur l'indice ILAT |
Impôt Foncier : 37 €//m²/an
Régime Fiscal : T.V.A.
Dépôt de garantie : 3 mois de loyer HT/HC
Paiement Loyer : Trimestriel
Honoraires : à la charge du preneur
Taxe Bureau : 11,66 €/m²/an
Information sur le Bail :
Espace service : 7 euros HTHC/m²
Prestations :
- Immeuble de standing Code du travail
- Visibilité périphérique
- Deux halls d'accueil indépendants
- Trois ascenseurs
- Gardien 7h/19h
- Systèmes de vidéo-portiers et vidéo-surveillance
- Contrôle d'accès par lecteurs de badges
- Accessibilité PMR
- Fibre optique
- Accès parking par ascenseurs
- Espace conciergerie
- Terrasse aménagée et accessible
- Espace cafétéria
- Salle de réunion mutualisée
- Espace de co-working
- Espace détente
- Parkings en sous-sol
- Stationnements pour véhicules électriques
- Surfaces lumineuses et rationnelles
- Surface RDC : 0 m²
Accessibilité:
Métro Porte d'Ivry (ligne 7)
Tram Porte d'Ivry (T3a)
Tram Chateaudun - Barbès (T9)
Bus Lignes 27-83-132-323
Accès routier BP sortie "Porte d'Ivry" - N7-N305-D50-D54
Les informations sur les risques auxquels ce bien est exposé sont disponibles sur le site Géorisques : www.georisques.gouv.fr
Voir plus
Afficher les consommations énergétiques
Localisation et transport aux alentours
Favoris
Exporter
Appeler
Contacter
Signaler cette annonce










