Présente à Dijon depuis plus de 30 ans, l''équipe de BNP Paribas Real Estate a une solide connaissance du marché local et de son évolution. Elle se spécialise dans l''accompagnement des entreprises ...
En savoir plus

111 m²
HT HC
Location bureau - 111 m²
Dijon (21000)
Dernière mise à jour : Hier
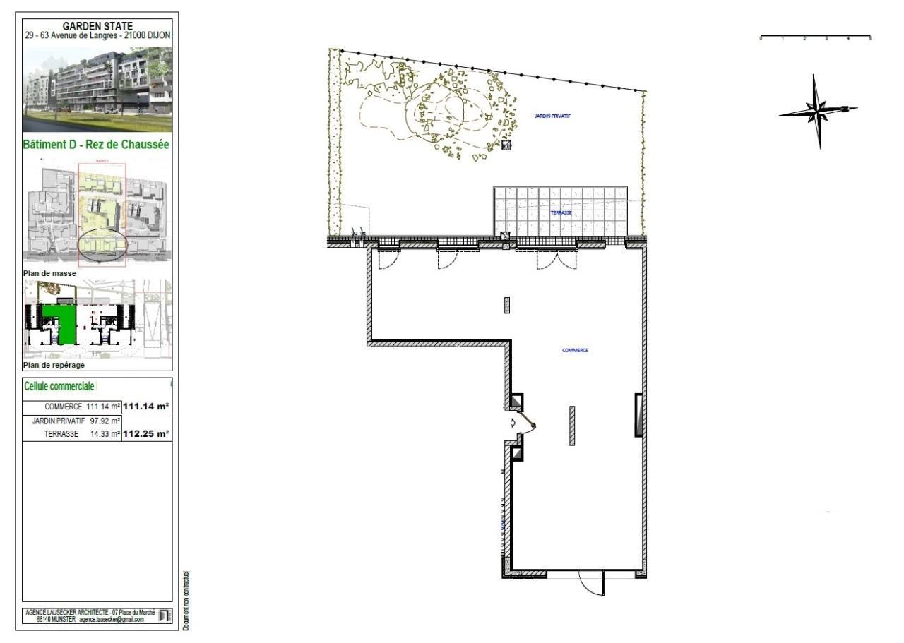
DIJON AVENUE DE LANGRES Dans un ensemble immobilier neuf, locaux en rez-de-chaussée de 111,14 m² environ ainsi que 112,25 m² environ de terrasse. Possibilité de louer des places de parking en sous-sol en sus.
IMMEUBLE AVENUE DE LANGRES Location de bureaux de 111 m² environ.
Des bureaux neufs d'une surface de 111,14 m², situés avenue de Langres à Dijon, sont disponibles à la location.
Ces bureaux sont intégrés à un immeuble mixte, bénéficiant d'un emplacement privilégié, à proximité de nombreux services et commodités.
Le btiment, neuf et moderne, offre un accès aux Personnes à Mobilité Réduite (PMR) et la possibilité d'accueillir du public.
Les locaux disposent en complément d'une terrasse privative de 112,25 m², offrant un espace extérieur apprécié.
Il est possible de louer en sus des places de parking en sous-sol dans l'immeuble.
Accessibilité :
- Accès aux axes routiers majeurs avec une facilité d'accès au centre-ville
- Ligne de tramway (T2)
Services et prestations :
- Btiment moderne
- Places de parking disponibles en sous-sol
- Centre commercial de la Toison d'Or à 5 minutes proposant 160 boutiques, divers restaurants, bars et un hôtel 4 étoiles
- Salles de sport à proximité
- Crèche
Disponibilité: Immédiate
Honoraires: 15% HT du loyer HT/HC. à la signature du bail
| Fiche technique du bien | |
|---|---|
| Tramway | station Drapeau à 3 minutes |
| Desserte routière | Rocade à 15 minutes |
| Etat de l'immeuble | Neuf |
| Restauration | à proximité |
| Enseignes à proximité | CCommercial Toison d'Or à 5 minutes |
| Autre élément bureau | Locaux brut de béton |
| Autre élément bureau | Fluides en attente |
Afficher les consommations énergétiques
Localisation et transport aux alentours
Favoris
Exporter
Appeler
Contacter
Signaler cette annonce










