Conseil en immobilier d'entreprise, Cushman & Wakefield est un acteur incontournable au rayonnement international. Cushman & Wakefield offre des solutions dans toutes les étapes que comporte un p ...
En savoir plus





706 m²
HT HC
CBX - Location bureau - 706 m²
Courbevoie (92400)
Dernière mise à jour : Il y a 2 jours
Bureaux à louer - Tour CBX La Défense - 706 m² Plug & Play dans un immeuble premium avec rooftop et services haut de gamme
Immeuble CBX
Cushman & Wakefield vous propose à la location une surface de bureaux exceptionnelle de 706 m² au sein de la tour CBX en plug & play et déjà équipé, immeuble emblématique de La Défense, au coeur du premier quartier d'affaires européen.
La Tour CBX est un immeuble premium de dernière génération, conçu pour répondre aux attentes des entreprises les plus exigeantes en matière de confort, d'image et de performance. Entièrement modernisée, elle offre un environnement de travail plug & play avec des bureaux entièrement aménagés et équipés, prêts à l'emploi - mobilier, écrans et équipements techniques inclus, permettant une installation immédiate sans travaux ni délai.
Situés dans les étages supérieurs, les bureaux bénéficient d'une luminosité exceptionnelle et d'une vue panoramique sur Paris et les Hauts-de-Seine, créant un cadre de travail unique et inspirant pour vos collaborateurs.
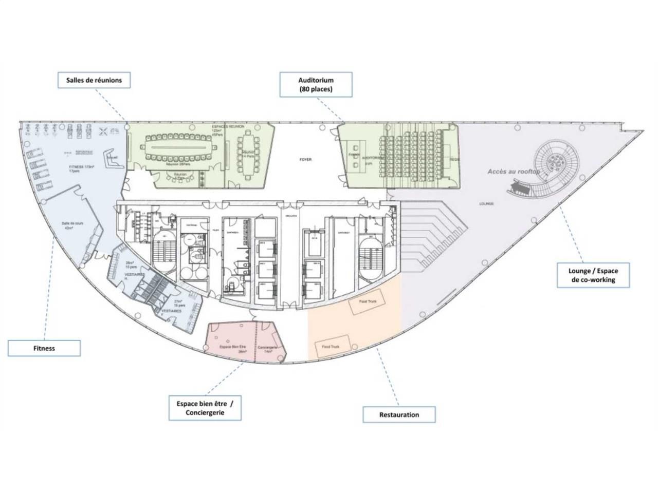
Les occupants profitent d'un ensemble de services haut de gamme : un espace fitness, un auditorium, des salles de réunion mutualisées, ainsi qu'un rooftop aménagé offrant des vues spectaculaires et un environnement propice à la convivialité, au bien-être et à la créativité.
L'immeuble dispose également d'une technologie de pointe, d'un accueil professionnel, d'une sécurité renforcée, d'un système de climatisation performant et d'une connectivité optimale. Tout a été pensé pour offrir une expérience utilisateur fluide, moderne et confortable.
Idéalement située à La Défense, à proximité immédiate des transports (RER A, Métro ligne 1, Tram T2, Transilien et bus), la Tour CBX bénéficie d'une accessibilité optimale et d'une visibilité exceptionnelle dans un environnement dynamique, entouré de commerces, restaurants et services.
Cette surface de 706 m² à louer représente une opportunité rare d'implanter votre entreprise dans un immeuble de référence à La Défense, associant standing, flexibilité et efficacité.
Contactez-nous dès aujourd'hui pour organiser une visite et découvrir les bureaux prêts à l'emploi de la Tour CBX, une adresse prestigieuse et stratégique pour accompagner la croissance de votre entreprise.
Impôt Foncier : 31,17 €//m²/an
Régime Fiscal : T.V.A.
Dépôt de garantie : 3 mois de loyer HT/HC
Honoraires : à la charge du preneur
Taxe Bureau : 23,29 €/m²/an
Information sur le Bail :
Charges fluides : 45,56 euros Loyer archives : 240,00 euros
Prestations :
Accessibilité:
Métro Esplanade de la Défense (1)
Métro La Défense (L15 Horizon 2030)
Bus Lignes 73-174-BALABUS
Tram La Défense Grande Arche (T2)
RER La Défense (E, A)
SNCF La Défense
Accès routier Bd circulaire "sortie Défense 4" - A14 - A86 - Quais de Seine
Les informations sur les risques auxquels ce bien est exposé sont disponibles sur le site Géorisques : www.georisques.gouv.fr
Immeuble CBX
Cushman & Wakefield vous propose à la location une surface de bureaux exceptionnelle de 706 m² au sein de la tour CBX en plug & play et déjà équipé, immeuble emblématique de La Défense, au coeur du premier quartier d'affaires européen.
La Tour CBX est un immeuble premium de dernière génération, conçu pour répondre aux attentes des entreprises les plus exigeantes en matière de confort, d'image et de performance. Entièrement modernisée, elle offre un environnement de travail plug & play avec des bureaux entièrement aménagés et équipés, prêts à l'emploi - mobilier, écrans et équipements techniques inclus, permettant une installation immédiate sans travaux ni délai.
Situés dans les étages supérieurs, les bureaux bénéficient d'une luminosité exceptionnelle et d'une vue panoramique sur Paris et les Hauts-de-Seine, créant un cadre de travail unique et inspirant pour vos collaborateurs.
Les occupants profitent d'un ensemble de services haut de gamme : un espace fitness, un auditorium, des salles de réunion mutualisées, ainsi qu'un rooftop aménagé offrant des vues spectaculaires et un environnement propice à la convivialité, au bien-être et à la créativité.
L'immeuble dispose également d'une technologie de pointe, d'un accueil professionnel, d'une sécurité renforcée, d'un système de climatisation performant et d'une connectivité optimale. Tout a été pensé pour offrir une expérience utilisateur fluide, moderne et confortable.
Idéalement située à La Défense, à proximité immédiate des transports (RER A, Métro ligne 1, Tram T2, Transilien et bus), la Tour CBX bénéficie d'une accessibilité optimale et d'une visibilité exceptionnelle dans un environnement dynamique, entouré de commerces, restaurants et services.
Cette surface de 706 m² à louer représente une opportunité rare d'implanter votre entreprise dans un immeuble de référence à La Défense, associant standing, flexibilité et efficacité.
Contactez-nous dès aujourd'hui pour organiser une visite et découvrir les bureaux prêts à l'emploi de la Tour CBX, une adresse prestigieuse et stratégique pour accompagner la croissance de votre entreprise.
| Étage | Type | Surfaces | Dispo | Loyer | Charges | Type de bailRév. annuelle |
|---|---|---|---|---|---|---|
| 15 | Bureaux | 706 | Immédiate | 520 HT/HC/m²/an | 88,66 HT/m²/an | 9 ans fermesSur l'indice ILAT |
| Parkings | 1800 HT/HC/U/an | 9 ans fermesSur l'indice ILAT |
Impôt Foncier : 31,17 €//m²/an
Régime Fiscal : T.V.A.
Dépôt de garantie : 3 mois de loyer HT/HC
Honoraires : à la charge du preneur
Taxe Bureau : 23,29 €/m²/an
Information sur le Bail :
Charges fluides : 45,56 euros Loyer archives : 240,00 euros
Prestations :
- Immeuble Prime de la Défense
- Architectes KPF (Kohn Pedersen Fox Associates)
- 3 000 m² d'espaces de services rénovés
- Hôtesses d'accueil
- Dernier étage (31ème) dédié au services : Salles de réunion partagées, Fitness, Conciergerie, Espace Lounge (500m²), Auditorium (80 places) et un espace bien être.
- Rooftop aménagé de 250 m²
- Vue imprenable sur Paris et La Défense
- RIE (550 places)
- Cafétéria : 100 places
- Plug & Play
- Capacitaire : 140 à 150 pers./étage
Accessibilité:
Métro Esplanade de la Défense (1)
Métro La Défense (L15 Horizon 2030)
Bus Lignes 73-174-BALABUS
Tram La Défense Grande Arche (T2)
RER La Défense (E, A)
SNCF La Défense
Accès routier Bd circulaire "sortie Défense 4" - A14 - A86 - Quais de Seine
Les informations sur les risques auxquels ce bien est exposé sont disponibles sur le site Géorisques : www.georisques.gouv.fr
Voir plus
Afficher les consommations énergétiques
Localisation et transport aux alentours
- Esplanade de La Défense455m (7min à pied)1
Favoris
Exporter
Appeler
Contacter
Signaler cette annonce










