Conseil en immobilier d'entreprise, Cushman & Wakefield est un acteur incontournable au rayonnement international. Cushman & Wakefield offre des solutions dans toutes les étapes que comporte un p ...
En savoir plus





6 824 m² divisible dès 778 m²
HT HC
CBX - Location bureau - 6824 m²
Courbevoie (92400)
Dernière mise à jour : Il y a 13 jours
Tour CBX - Des bureaux prime au coeur de La Défense
Immeuble CBX
Cushman & Wakefield vous propose des surfaces de bureaux divisibles à partir de 706 m², disponibles immédiatement dans l'une des tours emblématiques de La Défense.
Un immeuble prime signé KPF (Kohn Pedersen Fox Associates), offrant des prestations haut de gamme et des espaces de services rénovés :
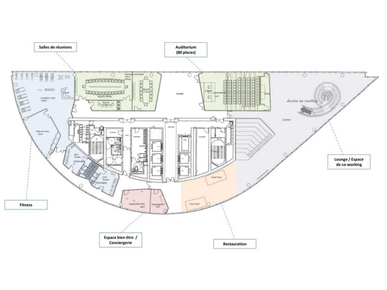
Espace services au 31e étage : salles de réunion partagées, fitness, conciergerie, lounge (500 m²), auditorium (80 places), espace bien-être et rooftop de 250 m² avec vue imprenable sur Paris.
RIE 550 places, cafétéria 100 places
Contrôle d'accès, gardiennage 24/7, télésurveillance
Caractéristiques techniques :
Hauteur sous plafond : 2,75 m
Profondeur des plateaux : 9,50 m et 6,50 m
Faux plancher technique, climatisation 2 tubes - 2 fils
Eclairage naturel grâce à de larges baies vitrées
Surfaces disponibles :
Étage 22 : 1 541 m² (immédiate, rénové)
Étage 21 : 1 541 m² (avril 2026, rénové)
Étage 20 : 1 465 m² (avril 2026, rénové)
Étage 18 : 1 498 m² (mars 2026, Plug & Play)
Étage 15 : 778 m² (immédiate, rénové)
Idéalement située sur l'Esplanade de La Défense, la Tour CBX bénéficie d'une accessibilité optimale (métro ligne 1 et future ligne 15, RER A et E, tram T2, SNCF L et U) et d'une vue panoramique exceptionnelle.
Contactez nos équipes pour organiser une visite et découvrir cette opportunité unique.
Régime Fiscal : T.V.A.
Dépôt de garantie : 3 mois de loyer HT/HC
Honoraires : à la charge du preneur
Information sur le Bail :
Loyer archives : 240,00 euros Les charges incluent les fluides, assurance et property manager Total impôt foncier et taxes : 53,62 euros HT/m²/an
Prestations :
Accessibilité:
Métro Esplanade de la Défense (1)
Métro La Défense (L15 Horizon 2030)
Bus Lignes 73-174-BALABUS
Tram La Défense Grande Arche (T2)
RER La Défense (E, A)
SNCF La Défense
Accès routier Bd circulaire "sortie Défense 4" - A14 - A86 - Quais de Seine
Les informations sur les risques auxquels ce bien est exposé sont disponibles sur le site Géorisques : www.georisques.gouv.fr
Immeuble CBX
Cushman & Wakefield vous propose des surfaces de bureaux divisibles à partir de 706 m², disponibles immédiatement dans l'une des tours emblématiques de La Défense.
Un immeuble prime signé KPF (Kohn Pedersen Fox Associates), offrant des prestations haut de gamme et des espaces de services rénovés :
Espace services au 31e étage : salles de réunion partagées, fitness, conciergerie, lounge (500 m²), auditorium (80 places), espace bien-être et rooftop de 250 m² avec vue imprenable sur Paris.
RIE 550 places, cafétéria 100 places
Contrôle d'accès, gardiennage 24/7, télésurveillance
Caractéristiques techniques :
Hauteur sous plafond : 2,75 m
Profondeur des plateaux : 9,50 m et 6,50 m
Faux plancher technique, climatisation 2 tubes - 2 fils
Eclairage naturel grâce à de larges baies vitrées
Surfaces disponibles :
Étage 22 : 1 541 m² (immédiate, rénové)
Étage 21 : 1 541 m² (avril 2026, rénové)
Étage 20 : 1 465 m² (avril 2026, rénové)
Étage 18 : 1 498 m² (mars 2026, Plug & Play)
Étage 15 : 778 m² (immédiate, rénové)
Idéalement située sur l'Esplanade de La Défense, la Tour CBX bénéficie d'une accessibilité optimale (métro ligne 1 et future ligne 15, RER A et E, tram T2, SNCF L et U) et d'une vue panoramique exceptionnelle.
Contactez nos équipes pour organiser une visite et découvrir cette opportunité unique.
| Étage | Type | Surfaces | Dispo | Loyer | Charges | Type de bailRév. annuelle |
|---|---|---|---|---|---|---|
| 22 | Bureaux | 1541,5 | Immédiate | 500 HT/HC/m²/an | 98,66 HT/m²/an | 3-6-9 ansSur l'indice ILAT |
| 21 | Bureaux | 1541,5 | Avril 2026 | 490 HT/HC/m²/an | 98,66 HT/m²/an | 3-6-9 ansSur l'indice ILAT |
| 20 | Bureaux | 1465,1 | Avril 2026 | 490 HT/HC/m²/an | 98,66 HT/m²/an | 3-6-9 ansSur l'indice ILAT |
| 18 | Bureaux | 1498 | Immédiate | 480 HT/HC/m²/an | 98,66 HT/m²/an | 3-6-9 ansSur l'indice ILAT |
| 15 | Bureaux | 778 | Immédiate | 450 HT/HC/m²/an | 98,66 HT/m²/an | 3-6-9 ansSur l'indice ILAT |
| Parkings | 1800 HT/HC/U/an | 3-6-9 ansSur l'indice ILAT |
Régime Fiscal : T.V.A.
Dépôt de garantie : 3 mois de loyer HT/HC
Honoraires : à la charge du preneur
Information sur le Bail :
Loyer archives : 240,00 euros Les charges incluent les fluides, assurance et property manager Total impôt foncier et taxes : 53,62 euros HT/m²/an
Prestations :
- Immeuble Prime de la Défense
- Architectes KPF (Kohn Pedersen Fox Associates)
- 3 000 m² d'espaces de services rénovés
- Hôtesses d'accueil
- Dernier étage (31ème) dédié au services : Salles de réunion partagées, Fitness, Conciergerie, Espace Lounge (500m²), Auditorium (80 places) et un espace bien être.
- Rooftop aménagé de 250 m²
- Vue imprenable sur Paris et La Défense
- RIE (550 places)
- Cafétéria : 100 places
- Capacitaire : 140 à 150 pers./étage
- 18ème étage proposé en plug & play
- Trame de façade : 1,35 m
- Linéaire de façade : 75 m
- HSP : 2,75 m
- Profondeurs de plateaux : 9.50 m et 6,50 m
- Faux plancher technique : 15 cm
- Climatisation : 2 tubes - 2 fils
- Faux plafond métallique
- Entrée monumentale sur l'esplanade haute de 18m
- 2 batteries d'ascenseurs
- Monte-charge
- Eclairage naturel par de larges et hautes baies vitrées (clair de vitrage 2,35 m)
- Contrôle d'accès
- Gardiennage 24h/24
- Télésurveillance
Accessibilité:
Métro Esplanade de la Défense (1)
Métro La Défense (L15 Horizon 2030)
Bus Lignes 73-174-BALABUS
Tram La Défense Grande Arche (T2)
RER La Défense (E, A)
SNCF La Défense
Accès routier Bd circulaire "sortie Défense 4" - A14 - A86 - Quais de Seine
Les informations sur les risques auxquels ce bien est exposé sont disponibles sur le site Géorisques : www.georisques.gouv.fr
Emplacement(s) de Parking: 120 places
Voir plus
Afficher les consommations énergétiques
Localisation et transport aux alentours
- Esplanade de La Défense455m (7min à pied)1
Favoris
Exporter
Appeler
Contacter
Signaler cette annonce










