Conseil en immobilier d'entreprise, Cushman & Wakefield est un acteur incontournable au rayonnement international. Cushman & Wakefield offre des solutions dans toutes les étapes que comporte un p ...
En savoir plus

11 673 m² divisible dès 239 m²
HT HC
HIGHLAND (EX TOUR MARCHAND) - Location bureau - 11673 m²
Courbevoie (92400)
Dernière mise à jour : Il y a 2 mois
Bureaux à louer dans un immeuble indépendant restructuré de 11 678 m² à Courbevoie, au pied de la Défense.
Immeuble HIGHLAND (EX TOUR MARCHAND)
Bureaux à la location dans un immeuble indépendant restructuré de 11 678 m² à Courbevoie, au pied de la Défense.
Profitez d'une accessibilité exceptionnelle avec le RER A (La Défense), le tramway T2 (Faubourg de l'Arche), et les lignes de bus 73, 176, 178 à proximité.
L'immeuble Highland, restructuré et livré en décembre 2022, offre des bureaux divisibles à partir de 611 m², avec des plateaux de 795 m² et un capacitaire de 70 personnes par étage sur les surfaces de bureaux.
Les prestations incluent une climatisation performante, des faux plafonds techniques, des faux planchers, et une hauteur sous plafond de 2,50 à 2,70 m. Profitez de jardins accessibles de 2 128 m² au 1er étage et d'une grande terrasse de 273 m² au 12ème étage.
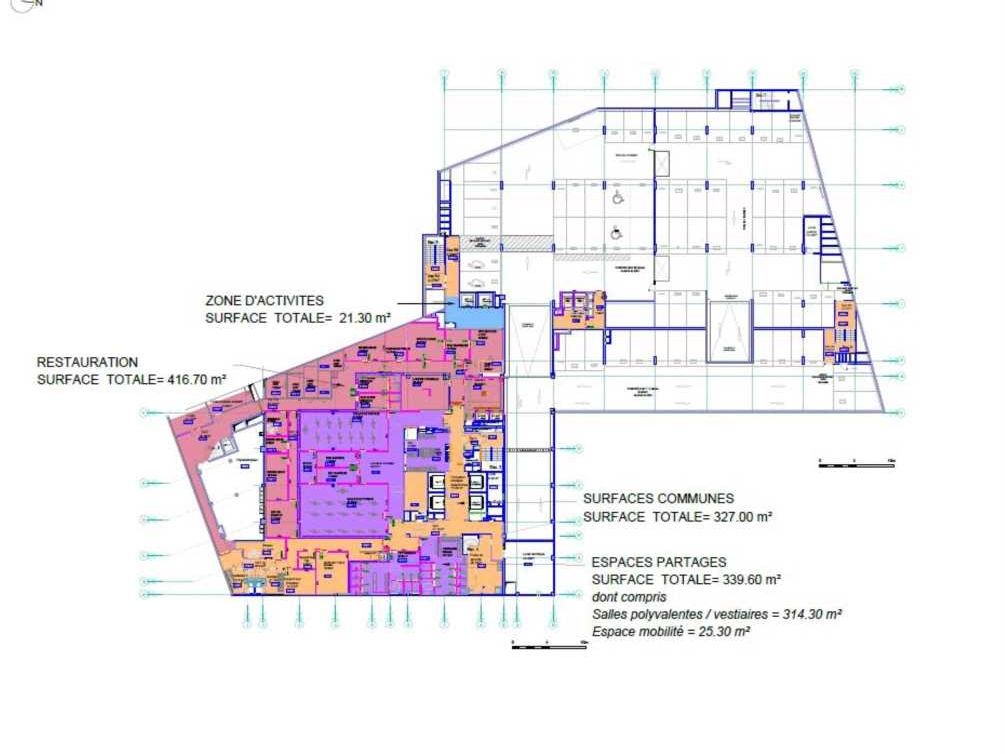
L'immeuble dispose également d'un business center avec auditorium, de 15 salles de réunion mutualisées, d'espaces de restauration de 1 309 m², d'une salle de sport, et d'un parking privatif sprinklé avec possibilité d'emplacements électriques.
Impôt Foncier : 19,2 €//m²/an
Régime Fiscal : T.V.A.
Dépôt de garantie : 3 mois de loyer HT/HC
Honoraires : à la charge du preneur
Taxe Bureau : 19 €/m²/an
Information sur le Bail :
Honoraires de gestion et assurance : 6,40 euros/m²
Prestations :
Accessibilité:
RER La Defense (RER A)
Tram Faubourg de l'Arche (T2)
Bus Lignes n°73-176-178
Les informations sur les risques auxquels ce bien est exposé sont disponibles sur le site Géorisques : www.georisques.gouv.fr
Immeuble HIGHLAND (EX TOUR MARCHAND)
Bureaux à la location dans un immeuble indépendant restructuré de 11 678 m² à Courbevoie, au pied de la Défense.
Profitez d'une accessibilité exceptionnelle avec le RER A (La Défense), le tramway T2 (Faubourg de l'Arche), et les lignes de bus 73, 176, 178 à proximité.
L'immeuble Highland, restructuré et livré en décembre 2022, offre des bureaux divisibles à partir de 611 m², avec des plateaux de 795 m² et un capacitaire de 70 personnes par étage sur les surfaces de bureaux.
Les prestations incluent une climatisation performante, des faux plafonds techniques, des faux planchers, et une hauteur sous plafond de 2,50 à 2,70 m. Profitez de jardins accessibles de 2 128 m² au 1er étage et d'une grande terrasse de 273 m² au 12ème étage.
L'immeuble dispose également d'un business center avec auditorium, de 15 salles de réunion mutualisées, d'espaces de restauration de 1 309 m², d'une salle de sport, et d'un parking privatif sprinklé avec possibilité d'emplacements électriques.
| Étage | Type | Surfaces | Dispo | Loyer | Charges | Type de bailRév. annuelle |
|---|---|---|---|---|---|---|
| 12 | Bureaux | 625 | 390 HT/HC/m²/an | 85,2 HT/m²/an | 9 ans fermesSur l'indice ILAT | |
| 11 | Bureaux | 1045 | 390 HT/HC/m²/an | 85,2 HT/m²/an | 9 ans fermesSur l'indice ILAT | |
| 10 | Bureaux | 1045 | 390 HT/HC/m²/an | 85,2 HT/m²/an | 9 ans fermesSur l'indice ILAT | |
| 9 | Bureaux | 1045 | 390 HT/HC/m²/an | 85,2 HT/m²/an | 9 ans fermesSur l'indice ILAT | |
| 8 | Bureaux | 1045 | 360 HT/HC/m²/an | 85,2 HT/m²/an | 9 ans fermesSur l'indice ILAT | |
| 7 | Bureaux | 1045 | 360 HT/HC/m²/an | 85,2 HT/m²/an | 9 ans fermesSur l'indice ILAT | |
| 6 | Bureaux | 1045 | 360 HT/HC/m²/an | 85,2 HT/m²/an | 9 ans fermesSur l'indice ILAT | |
| 5 | Bureaux | 1045 | 360 HT/HC/m²/an | 85,2 HT/m²/an | 9 ans fermesSur l'indice ILAT | |
| 4 | Bureaux | 1045 | 360 HT/HC/m²/an | 85,2 HT/m²/an | 9 ans fermesSur l'indice ILAT | |
| 3 | Bureaux | 313 | 320 HT/HC/m²/an | 85,2 HT/m²/an | 9 ans fermesSur l'indice ILAT | |
| 3 | Bureaux | 250 | 320 HT/HC/m²/an | 85,2 HT/m²/an | 9 ans fermesSur l'indice ILAT | |
| 3 | Bureaux | 240 | 320 HT/HC/m²/an | 85,2 HT/m²/an | 9 ans fermesSur l'indice ILAT | |
| 3 | Bureaux | 239 | 320 HT/HC/m²/an | 85,2 HT/m²/an | 9 ans fermesSur l'indice ILAT | |
| 2 | Bureaux | 1035 | 300 HT/HC/m²/an | 85,2 HT/m²/an | 9 ans fermesSur l'indice ILAT | |
| 0 | Bureaux | 611 | 300 HT/HC/m²/an | 85,2 HT/m²/an | 9 ans fermesSur l'indice ILAT | |
| Parkings | 1800 HT/HC/U/an | 9 ans fermesSur l'indice ILAT | ||||
| Parkings | 800 HT/HC/U/an | 9 ans fermesSur l'indice ILAT |
Impôt Foncier : 19,2 €//m²/an
Régime Fiscal : T.V.A.
Dépôt de garantie : 3 mois de loyer HT/HC
Honoraires : à la charge du preneur
Taxe Bureau : 19 €/m²/an
Information sur le Bail :
Honoraires de gestion et assurance : 6,40 euros/m²
Prestations :
- Immeuble restructuré livré en décembre 2022 avec des surfaces de bureaux et d'activités
- Capacitaire de 70 personnes par étage sur les surfaces de bureaux
- Taille des plateaux de bureaux : 795 m²
- 1 416m² d'Activité avec 6m HSP
- Climatisation
- Production urbaine (CPCU/Climespace)
- Ventilo convecteur en faux plafond
- GTC
- Monte-charge
- Hauteur sous plafond: 2,50 à 2,70 m
- Faux plafond technique décaissé
- Faux plancher
- Jardins accessibles de 2 128 m² au 1er étage
- Grande terrasse de 273 m² au 12ème étage
- Business Center avec Auditorium (80 personnes)
- 15 salles de réunion mutualisées et équipées
- Espaces de restauration de 1 309 m²
- Salle de sport
- Contrôle d'accès
- Parking privatif sprinklé et possibilité d'avoir 100% d'emplacements électriques
- Immeuble indépendant
- Surface RDC : 611 m²
Accessibilité:
RER La Defense (RER A)
Tram Faubourg de l'Arche (T2)
Bus Lignes n°73-176-178
Les informations sur les risques auxquels ce bien est exposé sont disponibles sur le site Géorisques : www.georisques.gouv.fr
Emplacement(s) de Parking: 226 95
Voir plus
Afficher les consommations énergétiques
Localisation et transport aux alentours
- Faubourg de l'Arche84m (1min à pied)2
Favoris
Exporter
Appeler
Contacter
Signaler cette annonce










