L’agence CBRE Rennes conseille et accompagne les chefs d’entreprise dans leurs projets immobiliers quels que soient leur taille et leur secteur d’activité. Spécialistes de la transaction de bureaux ...
En savoir plus

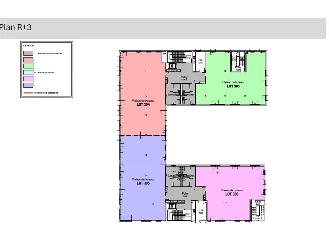
657 m² divisible dès 293 m²
HT HC
Location bureau - 657 m²
Cesson-Sévigné (35510)
Dernière mise à jour : Il y a 7 mois
Idéalement situé au coeur de la zone des Champs Blancs, bénéficiant d'un accès immédiat au métro, au sein d'un immeuble tertiaire neuf identifié CYBER PLACE immeuble dédié aux entreprises de la cyber sécurité. CBRE vous propose des bureaux disponibles d'env 656,80 m² quote part des parties communes incluses, divisibles à partir de 293,40 m². Les locaux sont livrés aménagés, climatisés, libres de cloisonnement et sont complétés par un accès à un vaste rooftoop
CYBER PLACE immeuble tertiaire neuf identifié est un bâtiment développant env plus de 7 600 m² dédiés aux activités de cyber sécurité
Impôt Foncier : 25 €/m²/an HT
Régime Fiscal : T.V.A.
Dépôt de garantie : 3 mois de loyer HT/HC
Paiement Loyer : trimestriel
Honoraires : 30 % HT du loyer annuel HT HC à la charge du preneur.
Prestations :
Accessibilité:
Bus Champs Blancs (1, 35, 41), Château de Vaux (50, 221)
Route Rocade Est
Metro ligne B
Les informations sur les risques auxquels ce bien est exposé sont disponibles sur le site Géorisques : www.georisques.gouv.fr
CYBER PLACE immeuble tertiaire neuf identifié est un bâtiment développant env plus de 7 600 m² dédiés aux activités de cyber sécurité
| Étage | Type | Surfaces | Dispo | Loyer | Charges | Type de bailRév. annuelle |
|---|---|---|---|---|---|---|
| 3 | Bureaux | 363,4 | Immédiate | 188 m²/an HT HC | 27 HT/m²/an | Sous-locationIndice ILAT |
| 3 | Bureaux | 293,4 | Immédiate | 188 m²/an HT HC | 27 HT/m²/an | Sous-locationIndice ILAT |
Impôt Foncier : 25 €/m²/an HT
Régime Fiscal : T.V.A.
Dépôt de garantie : 3 mois de loyer HT/HC
Paiement Loyer : trimestriel
Honoraires : 30 % HT du loyer annuel HT HC à la charge du preneur.
Prestations :
- Immeuble tertiaire identifié
- Visibilité sur axe passant
- Arrêt de Bus au pied de l'immeuble
- Proche transports et accès rocade immédiat
- Certification « BREEAM » niveau GOOD
- Norme WIRED SCORE
- norme thermique suivante : RT 2012
- Plateaux de bureaux neufs
- Livrés aménagés, libres de cloisonnement
- Large souplesse d'aménagement
- Au sein de l'immeuble : entreprises investies dans le domaine de la cybersécurité et notamment celles de la pépinière de Rennes Métropole : Le Pool
- Possibilité de location de salles de réunions ou espace complémentaire, au sein de l'espace coworking présent dans l'immeuble
- Vaste Rooftop
- Ratio m²/ parking : 1/ 40 m²
- Faux plafonds dalles led
- Sol moquette
- Sanitaires communs
- 2 ascenseurs
- Immeuble indépendant
Accessibilité:
Bus Champs Blancs (1, 35, 41), Château de Vaux (50, 221)
Route Rocade Est
Metro ligne B
Les informations sur les risques auxquels ce bien est exposé sont disponibles sur le site Géorisques : www.georisques.gouv.fr
Voir plus
Afficher les consommations énergétiques
Favoris
Exporter
Appeler
Contacter
Signaler cette annonce
