Nous sommes Immprove, une grande équipe de plus de 200 experts en immobilier d’entreprise, implantés localement avec plus de 20 agences sur tout le territoire.Depuis 2009, notre proximité, notre ét ...
En savoir plus

125 m²
HT HC
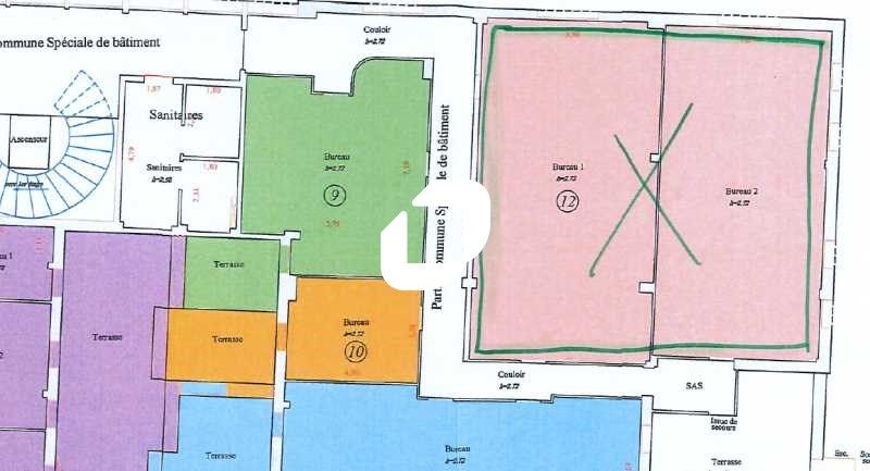
Location bureau - 125 m²
Buc (78530)
Dernière mise à jour : Hier
IMMPROVE vous propose à la location une surface de bureaux en étage dans un bâtiment récent à l'entrée de la zone d'activité de BUC.
La surface au 1er étage est en parfait état, réparties sur 2 espaces identiques donnant accès à une terrasse partagée. Les sanitaires sont en parties communes. Le site est clos et sécurisé via caméras de surveillances. L'immeuble est accessible via des bus, ainsi que l'A86 et N12. N'hésitez pas à nous contacter pour tout complément d'information et organisation de visites.
Régime Fiscal : T.V.A. (20%)
Dépôt de garantie : 3 mois de loyer HT HC
Honoraires : 25 % HT du loyer annuel HT à la charge du Preneur
Prestations :
Accessibilité:
Autoroute Autoroute A86
Route Nationales N12 et N118
SNCF Gare de Versailles Chantiers
Les informations sur les risques auxquels ce bien est exposé sont disponibles sur le site Géorisques : www.georisques.gouv.fr
La surface au 1er étage est en parfait état, réparties sur 2 espaces identiques donnant accès à une terrasse partagée. Les sanitaires sont en parties communes. Le site est clos et sécurisé via caméras de surveillances. L'immeuble est accessible via des bus, ainsi que l'A86 et N12. N'hésitez pas à nous contacter pour tout complément d'information et organisation de visites.
| Étage | Type | Surfaces | Dispo | Loyer | Charges | Type de bailRév. annuelle |
|---|---|---|---|---|---|---|
| 1 | Bureaux | 125 | Immédiate | 100 /m²/an HT HC | 14,4 /m²/an HT | Bail Commercial 3-6-9 ansselon l'indice des loyers des activités tertiaires (ILAT) |
Régime Fiscal : T.V.A. (20%)
Dépôt de garantie : 3 mois de loyer HT HC
Honoraires : 25 % HT du loyer annuel HT à la charge du Preneur
Prestations :
- Immeuble récent
- Façade en bardage
- Parties communes de qualité
- Interphone
- Site clos
- Fibre optique
- Terrasse partagée
- Bon état
- Espace ouvert
- Locaux lumineux
- Faux plafonds
- Sol PVC
- Système de télésurveillance
- Chauffage électrique
- Sanitaires communs
- Interphone
- Fibre optique
- Terrasse partagée
Accessibilité:
Autoroute Autoroute A86
Route Nationales N12 et N118
SNCF Gare de Versailles Chantiers
Les informations sur les risques auxquels ce bien est exposé sont disponibles sur le site Géorisques : www.georisques.gouv.fr
Voir plus
Afficher les consommations énergétiques
Favoris
Exporter
Appeler
Contacter
Signaler cette annonce

