L'équipe de G2B Real Estate est agence immobilière spécialiste de l'immobilier d'entreprise partout en Île-de-France depuis plus de 13 ans. Hasan Gulbol (Associé), Frédéric Bazil (Associé), Philipp ...
En savoir plus

311 m²
Loyer sur demande
Location bureau - 311 m²
Bonneuil-sur-Marne (94380)
Dernière mise à jour : Hier
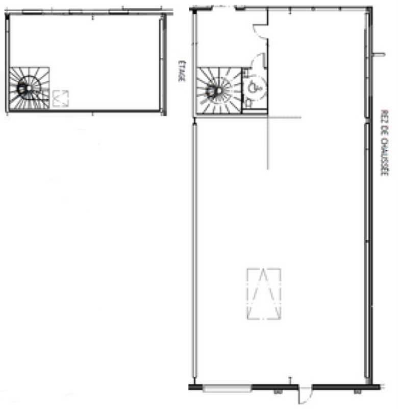
Au sein d'un parc sécurisé, G2B REAL ESTATE vous propose la location d'un local d'activité de 210 m² et ses bureaux d'accompagnement, ainsi qu'une surface de bureaux de 334 m².
Belle hauteur sous plafond et locaux en bon état.
Régime Fiscal : TVA
Dépôt de garantie : 3 mois de loyer HT HC
Honoraires : 15% HT du loyer annuel HT HC à la charge du Preneur
Prestations :
Accessibilité:
Autoroute A4, A86
Métro Créteil Pointe du Lac (8) avec correspondance TCSI
RER Sucy en Brie (A)
Bus Avenue de Choisy (BUS-104, BUS-12, BUS-308, BUS-K)
Les informations sur les risques auxquels ce bien est exposé sont disponibles sur le site Géorisques : www.georisques.gouv.fr
Belle hauteur sous plafond et locaux en bon état.
| Étage | Type | Surfaces | Dispo | Loyer | Charges | Type de bailRév. annuelle |
|---|---|---|---|---|---|---|
| 1 | Bureaux | 101 | Indice ILAT | |||
| Rdc | Activités | 210 | Indice ILAT | |||
| Total Cellule Lot 7 | Activités | 311 | 2ème trimestre 2025 | 180 m²/an HT HC | 30 m²/an HT | 3/6/9 ansIndice ILAT |
Régime Fiscal : TVA
Dépôt de garantie : 3 mois de loyer HT HC
Honoraires : 15% HT du loyer annuel HT HC à la charge du Preneur
Prestations :
- Site clos et sécurisé chaque soir à p. de 22 h
- Vidéosurveillance
- Gardiennage de nuit (gardien et maître chien) dès 18h
- Conciergerie
- Les services :
- Restaurant
- RIE
- Hôtel
- Médecine du travail
- Accès gros porteurs par porte de plain pied
- Parking privatif
- Sol moquette
- Faux-plafond
- Climatisation réversible
- Sanitaires privatifs
- Hall d'entrée privé
- Surface RDC : 210 m²
- Surface terrain : 0
- Résistance sol : 3 T/m²
- Equipements entrepôts : Dalle béton antipoussière
- Chauffage : Aérothermes gaz
- Ossature : Métallique
- Couverture : Bac acier
Accessibilité:
Autoroute A4, A86
Métro Créteil Pointe du Lac (8) avec correspondance TCSI
RER Sucy en Brie (A)
Bus Avenue de Choisy (BUS-104, BUS-12, BUS-308, BUS-K)
Les informations sur les risques auxquels ce bien est exposé sont disponibles sur le site Géorisques : www.georisques.gouv.fr
Voir plus
Afficher les consommations énergétiques
Localisation et transport aux alentours
Favoris
Exporter
Appeler
Contacter
Signaler cette annonce
