Nous sommes Immprove, une grande équipe de plus de 200 experts en immobilier d’entreprise, implantés localement avec plus de 20 agences sur tout le territoire.Depuis 2009, notre proximité, notre ét ...
En savoir plus



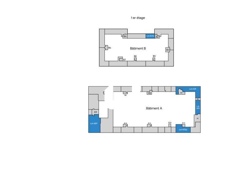
3 776 m² divisible dès 95 m²
HT HC
Location bureau - 3776 m²
Aulnay-sous-Bois (93600)
Dernière mise à jour : Il y a 10 jours
Situé dans le Parc des Mardelles à Aulnay-sous-Bois (93), Immprove vous propose des cellules d'activités et des surfaces de bureaux en étage. Emplacement stratégique proche des autoroutes A3/A1/N2, 10mn de Paris Nord 2 et à 15 min de Paris via l'A1.
Sécurisé, avec portail électrique et vidéo surveillance.
À proximité de Garonor et desservi par plusieurs lignes de bus. Contactez-nous pour une visite dès maintenant !
Impôt Foncier : 16,4 €//m²/an
Régime Fiscal : T.V.A. (20%)
Dépôt de garantie : 3 mois de loyer HT HC
Honoraires : 15% HT du loyer annuel HT HC à la charge du preneur
Information sur le Bail :
Lots B112 & B201 - autres taxes : 3.3 euros m²/an HT Lot A201 & A301 & A211 - autres taxes : 3.2 euros m²/an HT Lots A111 & A911 & A1401b & A1411 & A1501a & A101 - autres taxes : 5,9 euros m²/an HT
Prestations :
Accessibilité:
Bus TRA 609, 610, 614
RER Aulnay-sous-Bois, Le Blanc-Mesnil (B)
Aéroport Aéroport de Roissy - Charles de Gaulle, Le Bourget
Autoroute A1 / A104 / A3 / A86 / N2
Autoroute Boulevard Périphérique: Porte de Bagnolet, Porte de la Chapelle
Train Aulnay-sous-Bois (K)
Les informations sur les risques auxquels ce bien est exposé sont disponibles sur le site Géorisques : www.georisques.gouv.fr
Sécurisé, avec portail électrique et vidéo surveillance.
À proximité de Garonor et desservi par plusieurs lignes de bus. Contactez-nous pour une visite dès maintenant !
| Étage | Type | Surfaces | Dispo | Loyer | Charges | Type de bailRév. annuelle |
|---|---|---|---|---|---|---|
| 1 | Bureaux | 59 | selon l'indice des loyers des activités tertiaires (ILAT) | |||
| RDC | Activités | 316 | selon l'indice des loyers des activités tertiaires (ILAT) | |||
| Total Cellule A1401b et A1411 | Activités | 375 | Immédiate | 118 m²/an HT HC | 45,4 m²/an HT | Bail Commercial 3-6-9 ansselon l'indice des loyers des activités tertiaires (ILAT) |
| 1 | Bureaux | 93 | selon l'indice des loyers des activités tertiaires (ILAT) | |||
| RDC | Activités | 540 | selon l'indice des loyers des activités tertiaires (ILAT) | |||
| 1501 | Activités | 633 | Immédiate | 118 m²/an HT HC | 45,4 m²/an HT | Bail Commercial 3-6-9 ansselon l'indice des loyers des activités tertiaires (ILAT) |
| 1 | Bureaux | 292 | selon l'indice des loyers des activités tertiaires (ILAT) | |||
| RDC | Activités | 1008 | selon l'indice des loyers des activités tertiaires (ILAT) | |||
| 201 | Activités | 1300 | Immédiate | 118 m²/an HT HC | 40,5 m²/an HT | Bail Commercial 3-6-9 ansselon l'indice des loyers des activités tertiaires (ILAT) |
| 1 | Bureaux | 322 | Immédiate | 110 m²/an HT HC | 45,4 m²/an HT | Bail Commercial 3-6-9 ansselon l'indice des loyers des activités tertiaires (ILAT) |
| 1 | Bureaux | 118 | Immédiate | 118 m²/an HT HC | 23,7 m²/an HT | Bail Commercial 3-6-9 ansselon l'indice des loyers des activités tertiaires (ILAT) |
| 1 | Bureaux | 108 | selon l'indice des loyers des activités tertiaires (ILAT) | |||
| RDC | Activités | 146 | selon l'indice des loyers des activités tertiaires (ILAT) | |||
| Total Cellule B201 | Activités | 254 | Janvier 2026 | 118 m²/an HT HC | 40,5 m²/an HT | Bail Commercial 3-6-9 ansselon l'indice des loyers des activités tertiaires (ILAT) |
| RDC | Activités | 679 | Avril 2026 | 115 m²/an HT HC | 40,5 m²/an HT | Bail Commercial 3-6-9 ansselon l'indice des loyers des activités tertiaires (ILAT) |
| RDC | Bureaux | 95 | Immédiate | 115 m²/an HT HC | 40,5 m²/an HT | Bail Commercial 3-6-9 ansselon l'indice des loyers des activités tertiaires (ILAT) |
Impôt Foncier : 16,4 €//m²/an
Régime Fiscal : T.V.A. (20%)
Dépôt de garantie : 3 mois de loyer HT HC
Honoraires : 15% HT du loyer annuel HT HC à la charge du preneur
Information sur le Bail :
Lots B112 & B201 - autres taxes : 3.3 euros m²/an HT Lot A201 & A301 & A211 - autres taxes : 3.2 euros m²/an HT Lots A111 & A911 & A1401b & A1411 & A1501a & A101 - autres taxes : 5,9 euros m²/an HT
Prestations :
- BÂTIMENT B
- Immeuble indépendant
- Bâtiment achevé en 1983 à ossature poteaux et poutre béton
- Toiture de type bac acier
- Façades composées d'éléments de béton préfabriqués peints
- Voiries lourdes pour accès gros porteurs
- Fermeture du site par clôture et portail sur Rue
- Services de conciergerie d'entreprise
- Bureaux lumineux
- Moquette
- Faux plafond
- Luminaires encastrés
- Cloison de doublage sur murs périphériques + murs peints
- Surcharge admissible : 400 kg/m²
- Bât B : Chauffage par radiateur au gaz
- Immeuble indépendant
- Surface RDC : 2784 m²
Accessibilité:
Bus TRA 609, 610, 614
RER Aulnay-sous-Bois, Le Blanc-Mesnil (B)
Aéroport Aéroport de Roissy - Charles de Gaulle, Le Bourget
Autoroute A1 / A104 / A3 / A86 / N2
Autoroute Boulevard Périphérique: Porte de Bagnolet, Porte de la Chapelle
Train Aulnay-sous-Bois (K)
Les informations sur les risques auxquels ce bien est exposé sont disponibles sur le site Géorisques : www.georisques.gouv.fr
Voir plus
Afficher les consommations énergétiques
Favoris
Exporter
Appeler
Contacter
Signaler cette annonce
