Acteur en immobilier d’entreprise, Norman Taylor intervient sur les territoires de Montpellier, Béziers, Narbonne, Perpignan, Aix en Provence, Marseille et Lyon.Nous vous accompagnons dans l'élabor ...
En savoir plus

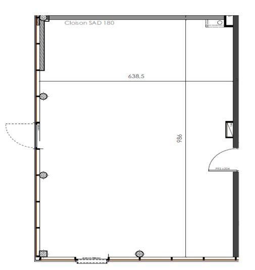
62 m²
HT HC
Location bureau - 62 m²
Perpignan (66000)
Dernière mise à jour : Il y a 2 jours
Perpignan Technosud, à louer, Dernier lot de bureaux aménagés de 62 m² en RDC dans un ensemble immobilier.
Une trentaine de places publics sont également disponibles à proximité immédiate du complexe immobilier.
Les informations sur les risques auxquels ce bien est exposé sont disponibles sur le site Géorisques : www.georisques.gouv.fr
Gare de Perpignan à 8 min
Aéroport Perpignan Rivesaltes à 20 min
Accès A9 à 10 min
Disponibilité : T2 2026
Loyer annuel : 11187 € HTHC
Charges annuelles : 1305 € HT
Montant de la taxe foncière : 1315 €
Honoraires à la charge du preneur : 15 % HT
| type | surface | loyer annuel |
| bureaux | 62 m² | 11 187 € ht/hc |
Voir plus
Afficher les consommations énergétiques
Localisation et transport aux alentours
Favoris
Exporter
Appeler
Contacter
Signaler cette annonce
