BNP Paribas Real Estate, N°1 de la transaction en immobilier d''entreprise en France, vous propose un accompagnement de qualité pour l''acquisition, la vente ou la location d''un bien immobilier.Vo ...
En savoir plus



26 569 m²
HT HC
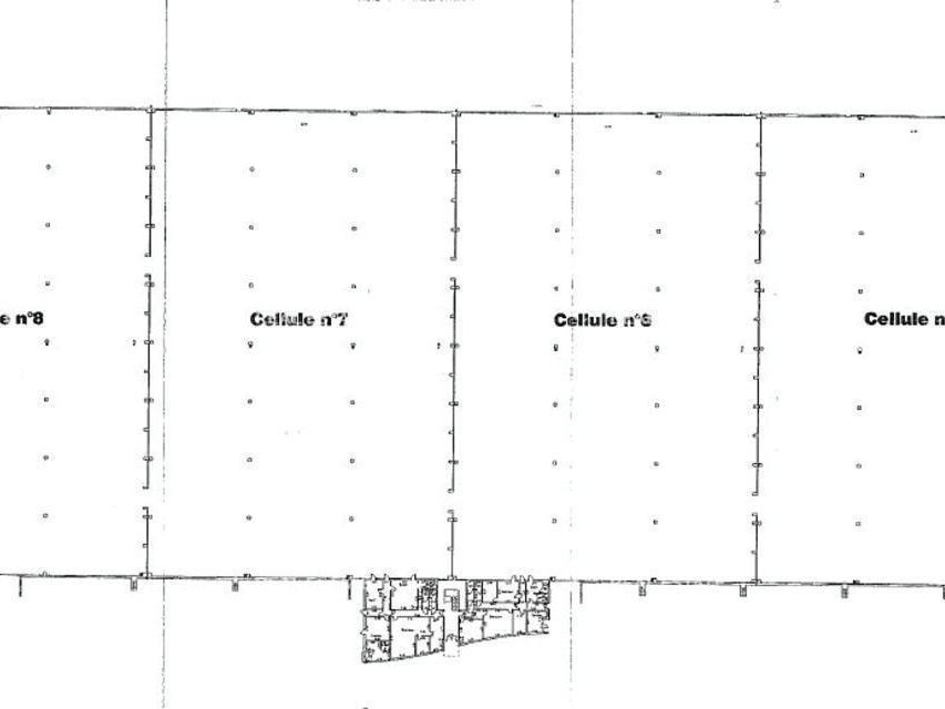
Location activité/entrepôt - 26569 m²
Salon-de-Provence (13300)
Dernière mise à jour : Il y a 2 jours
SALON-DE-PROVENCE (13) ENTREPOT LOGISTIQUE A LOUER Nous vous proposons à location un entrepôt logistique d'une superficie totale de 26 569 m² environ dont 24 426 m² de stockage, 1 380 m² de bureaux et 763 m² de locaux techniques. Disponible immédiatement. ICPE : 1510(A), 1530(A), 2663-1(A), 2663-2(A), 1412(D), 1432(D) Une localisation stratégique au sein du 3ème marché logistique en France. Salon-de-Provence est une localité clé située à 50 km de Marseille, au coeur de la région Provence-Alpes-Côte d'Azur.
BNP PARIBAS REAL ESTATE vous propose à la location un entrepôt logistique Classe A, d'une surface totale d'environ 26 569 m². Le btiment est situé à Salon-de-Provence (13) à proximité des axes routiers D113 / A7 / A54. Une localisation stratégique au sein du 3ème marché logistique en France. Salon-de-Provence est une localité clé située à 50 km de Marseille, au coeur de la région Provence-Alpes-Côte d'Azur.
Disponibilité : immédiate
Caractéristiques techniques
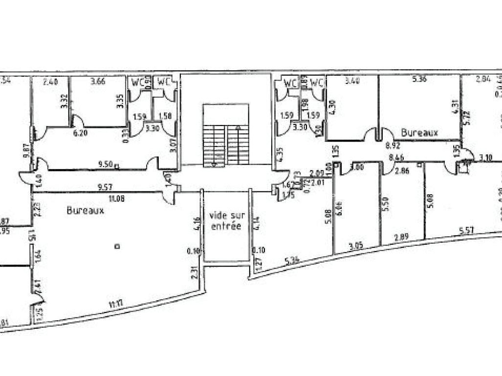
- Surface bureaux : 1 380 m²
- Source chauffage : Gaz
- Hauteur libre : 10,50 mètres
- Portes d'accès à quai : 30
- Portes de plain-pied : 2
- Aire de manoeuvre : 35 ml
- Charges au sol : 7 tonnes / m²
- RIA
- Parking : 109 places
ICPE
- ICPE A : 1510, 1530, 2663.1&2
- ICPE D : 1412, 1432
Accessibilité
- Accès routiers : D113 / A7 / A54
Pour toute information complémentaire, contactez-nous.
Disponibilité: Immédiate
Honoraires: Nous consulter. à la signature du bail
| Fiche technique du bien | |
|---|---|
| Desserte routière | D113 500 m |
| Desserte routière | A7 12 km |
| Desserte routière | A54 3 km |
| Autorisation d'exploiter | 1510 |
| Autorisation d'exploiter | 1530 |
| Autorisation d'exploiter | 2663-1 |
| Autorisation d'exploiter | 2663-2 |
| Autorisation d'exploiter | 1412 |
| Autorisation d'exploiter | 1432 |
| Etat de l'immeuble | Seconde main |
| Etat des locaux | Très bon état |
| Parking(s) | 109 Places |
| Source chauffage | Gaz |
| Charge au sol RDC | 7,00 tonne(s)/m² |
| Hauteur libre | 10,50 mètre(s) |
| Porte(s) d'accès plain-pied | 2 |
| Porte(s) d'accès à quai | 30 |
| Aire de manoeuvre | 35 ml |
| Réseau Incendie Armé | Oui |
Voir plus
Afficher les consommations énergétiques
Favoris
Exporter
Appeler
Contacter
Signaler cette annonce




