L''Agence BNP Paribas Real Rouen accompagne les entreprises et les investisseurs dans tous leurs projets immobiliers.Experts du marché rouennais, notre équipe possède une excellente connaissance du ...
En savoir plus

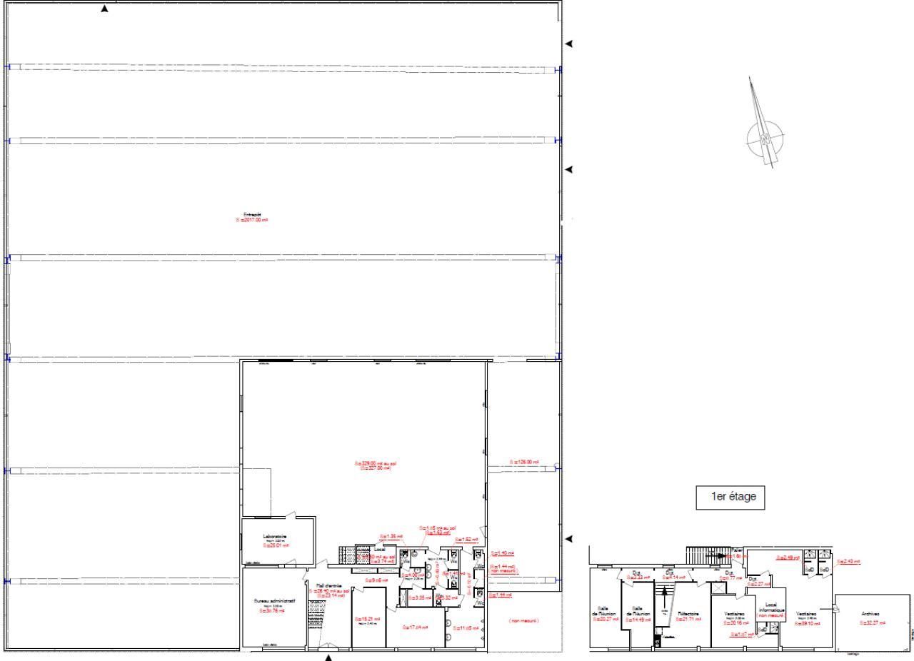
Location activité/entrepôt - 2750 m²
Ce site fonctionnel et polyvalent se compose de :
2 400 m² d'entrepôt
166 m² de bureaux en R+1
184 m² de locaux sociaux
1 porte d'accès à quai
1 porte d'accès plain-pied
Accès possible pour tout porteur
Site télé-surveillé et relié, assurant un haut niveau de sécurité
L'accès au dépôt est facilité grce à une circulation optimisée, permettant des opérations de manutention pratiques et sécurisées.
Le site bénéficie d'un excellent positionnement logistique grce à sa proximité immédiate :
de l'A131, permettant de rejoindre rapidement Le Havre,
de l'A29, assurant une connexion fluide vers Amiens, Rouen, Caen et l'ensemble du réseau autoroutier régional.
Cette localisation en fait un emplacement stratégique pour les entreprises ayant des besoins de distribution régionale, nationale ou import/export.
Transports en commun :
La zone est bien desservie par les transports en commun, permettant un accès facilité pour les salariés. Ces dessertes renforcent l'attractivité du site pour les entreprises recherchant un environnement accessible et pratique pour leurs équipes.
Un site adapté à de multiples activités
Grce à sa surface, sa configuration fonctionnelle et sa localisation stratégique, ce btiment répond aux besoins :
des entreprises logistiques et de transport,
des sociétés industrielles ou de production,
des activités de distribution,
ou de tout acteur recherchant un site sécurisé, accessible et immédiatement opérationnel.
Pour davantage d'informations ou pour organiser une visite, n'hésitez pas à contacter BNP Paribas Real Estate Rouen.
Plus de biens sur notre site https://Local d'activité à vendre ou à louer Normandie - BNP Paribas Real Estate
Trouvez votre futur local, entrepôt, hangar, cellule de stockage ou votre foncier dans les parcs d'activités de Rouen et de Normandie. Disponibles à la location ou à la vente, nos offres s'adaptent à vos besoins en cellules industrielles ou artisanales. Ne manquez pas nos opportunités sur les surfaces à louer ou à vendre de la Métropole Rouennaise.
Disponibilité: 01/05/2026
Honoraires: 15% HT du loyer HT/HC. à la signature du bail
| Fiche technique du bien | |
|---|---|
| Bus | N°25 100 m |
| Desserte routière | autoroute A131 4 km |
| Desserte routière | Autoroute A29 5 km |
| Accès Pers. Mobilité Réduite | Oui |
| Terrain constructible | Oui |
| Extension possible | Oui |
| Etat de l'immeuble | Seconde main |
| Parking(s) | Oui |
| Immeuble indépendant | Oui |
| Source chauffage | Electrique |
| Climatisation | Réversible |
| Accueil | Oui |
| Environnement de proximité | activité - logistique |
| Hall d'accueil | Oui |
| Fenêtres | Oui |
| Salle informatique | Oui |
| Câblage informatique | Oui |
| Bureau(x) cloisonné(s) | Oui |
| Faux plafond | Oui |
| Eclairage Bureaux | Luminaires encastrés |
| Sol bureaux | Dls.thermoplastiques |
| Sanitaire(s) | Oui |
| Charpente | Métallique |
| Couverture | Bac acier isolé |
| Murs | Bardage double peau |
| Hauteur sous poutre | mini 5,55 m / maxi 6,70 m |
| Porte(s) d'accès plain-pied | 1 |
| Porte(s) d'accès à quai | 1 |
| Aire de manoeuvre | Oui |
| Accessibilité type véhicules | Tous porteurs |
| Eclairage intérieur | Oui |
| Puissance électrique | Tarif Bleu |
| Réseau Incendie Armé | Oui |
| Locaux sociaux | Oui |
