MALSH Realty accompagne les entreprises dans leurs projets immobiliers, qu’il s’agisse de locaux d’activités, de bureaux, de commerces, d’entrepôts ou de terrains. L’agence intervient aussi bien au ...
En savoir plus

236 m²
HT HC
Location activité/entrepôt - 236 m²
Francheville (69340)
Dernière mise à jour : Hier
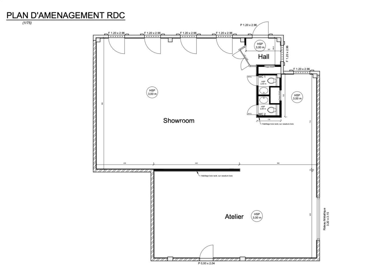
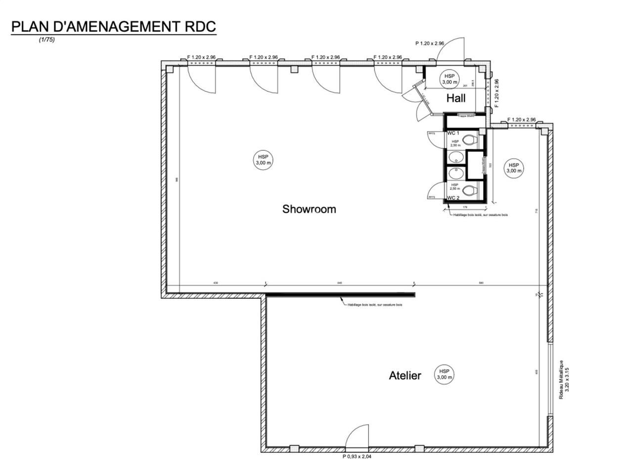
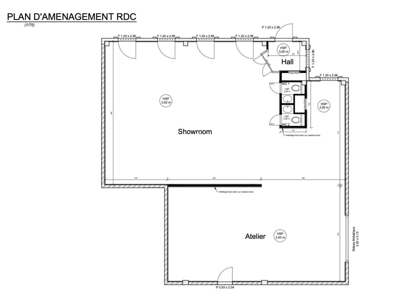
Local d''Activités neuf à FRANCHEVILLE - A VENDRE OU A LOUER - 236 m²
A l'entrée d'un parc d'activités clos et sécurisé, nous vous proposons à la vente ou à la location, un local d'activités d'une surface totale d'environ 236 m² en RDC. Ce local neuf, aménageable selon vos besoins, dispose de 5 places de parking privatives.
Vente ou Location Local d'Activités neuf - Francheville (69340) - 236 m²
MALSH Realty vous propose à la vente ou à la location, à l'entrée d'un parc d'activités clos et sécurisé à Francheville, un local d'activités d'une surface totale d'environ 236 m² en RDC.
Ce local neuf, aménageable selon vos besoins, dispose de 5 places de parking privatives.
Disponible Fin 2025 !
Régime Fiscal : T.V.A. (20%)
Dépôt de garantie : 3 mois de loyer HT/HC
Honoraires : 15 % HT du loyer annuel HT/HC à la charge du preneur, payables à la signature du bail
Prestations :
Accessibilité:
Autoroute Accès par les autoroutes A6 et A7
Bus Bus TCL lignes C21, C22, C22E, C24, 14, 65 et 147
Les informations sur les risques auxquels ce bien est exposé sont disponibles sur le site Géorisques : www.georisques.gouv.fr
A l'entrée d'un parc d'activités clos et sécurisé, nous vous proposons à la vente ou à la location, un local d'activités d'une surface totale d'environ 236 m² en RDC. Ce local neuf, aménageable selon vos besoins, dispose de 5 places de parking privatives.
Vente ou Location Local d'Activités neuf - Francheville (69340) - 236 m²
MALSH Realty vous propose à la vente ou à la location, à l'entrée d'un parc d'activités clos et sécurisé à Francheville, un local d'activités d'une surface totale d'environ 236 m² en RDC.
Ce local neuf, aménageable selon vos besoins, dispose de 5 places de parking privatives.
Disponible Fin 2025 !
| Étage | Type | Surfaces | Dispo | Loyer | Charges | Type de bailRév. annuelle |
|---|---|---|---|---|---|---|
| RDC | Activités | 236 | ILAT Indice des Loyers des Activités Tertiaires | |||
| Parkings | ILAT Indice des Loyers des Activités Tertiaires | |||||
| Total Cellule A1 | Activités | 236 | Fin 2025 | 150 HT/HC/m²/an | commercial 3-6-9 ansILAT Indice des Loyers des Activités Tertiaires |
Régime Fiscal : T.V.A. (20%)
Dépôt de garantie : 3 mois de loyer HT/HC
Honoraires : 15 % HT du loyer annuel HT/HC à la charge du preneur, payables à la signature du bail
Prestations :
- Accès de plain-pied
- 1 porte sectionnelle (3,2 m x 3,15 m)
- 5 places de parking privatives
- Hauteur sous poutre : 4 m
- Sol : dalle industrielle
- Local neuf (reconstruction), aménageable selon vos besoins
Accessibilité:
Autoroute Accès par les autoroutes A6 et A7
Bus Bus TCL lignes C21, C22, C22E, C24, 14, 65 et 147
Les informations sur les risques auxquels ce bien est exposé sont disponibles sur le site Géorisques : www.georisques.gouv.fr
Voir plus
Afficher les consommations énergétiques
Localisation et transport aux alentours
Favoris
Exporter
Appeler
Contacter
Signaler cette annonce

