Située dans le 3ème arrondissement de Lyon au 15 rue des Cuirassiers, notre agence compte environ 35 collaborateurs expérimentés pour vous accompagner tout au long de la mise en œuvre de votre proj ...
En savoir plus

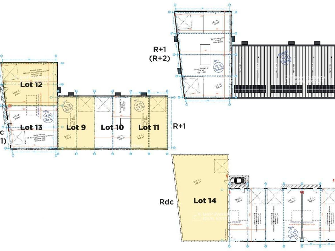
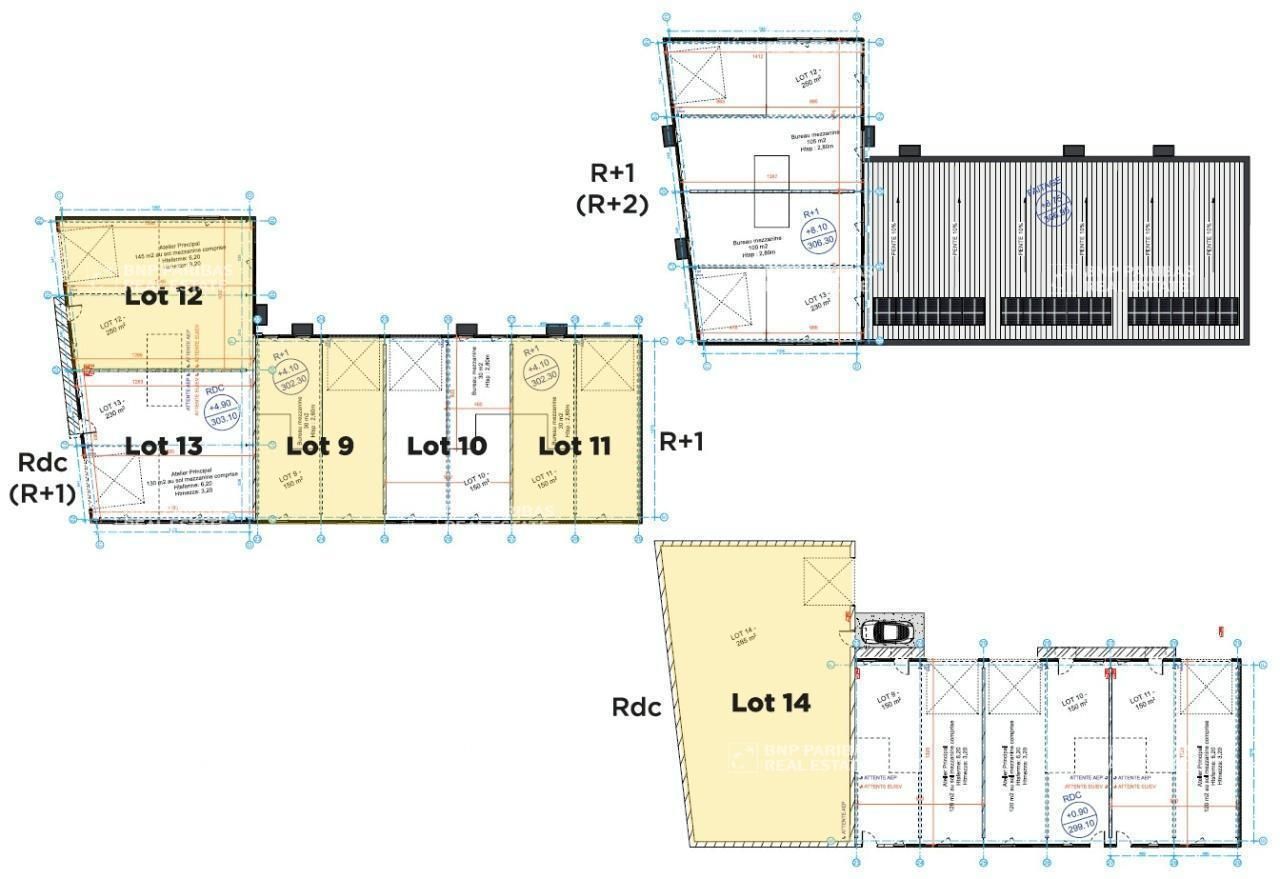
2 395 m² divisible dès 150 m²
Activité/Entrepôt à vendre - 2395 m²
Taluyers (69440)
Dernière mise à jour : Il y a 1 mois
Taluyers (69) VENTE - NEUF - TALUYERS (69)- BNP PRE vous propose à la vente plusieurs cellules d'activités sur la commune de Taluyers (69). Proche de la D342. Disponible fin 2025. Venez découvrir nos cellules à partir de 150 m² équipées d'une mezzanine et d'une porte d'accès plain-pied par lot (3.80mX4m). BNP PRE vous accompagne dans tous vos projets. A votre disposition.
Implanté à Taluyers, entre Mornant, Millery et Saint-Laurent-d'Agny, au coeur de l'ouest lyonnais, dans un secteur apprécié des entreprises, ces cellules d'activités constituent un point d'ancrage intéressant pour les sociétés souhaitant se situer à proximité de la métropole.Ce secteur réunit des entreprises évoluant dans des domaines variés : artisanat, production légère, services techniques, logistique de proximité, commerce professionnel et activités de transformation.
Honoraires: Nous consulter. à la signature de l'acte
Côté accessibilité, ces cellules d'activité profitent de dessertes efficaces vers les axes départementaux reliant l'ensemble du pays mornantais à Brignais, Givors et à la métropole lyonnaise. Les connexions rapides vers l'A450 et la A7 facilitent les déplacements vers les pôles économiques du sud-ouest lyonnais.
Disponibilité: ImmédiateHonoraires: Nous consulter. à la signature de l'acte
| Fiche technique du bien | |
|---|---|
| Desserte routière | D342 |
| Parking(s) | 39 Places |
| Environnement de proximité | Espaces verts : 746 m² |
| Environnement de proximité | Plan d'eau 500 m² |
| Charpente | Métallique |
| Couverture | Bac acier isolé |
| Murs | Bardage double peau |
| Charge au sol RDC | 1,50 tonne(s)/m² |
| Hauteur libre | 6,00 mètre(s) |
| Hauteur sous poutre | 3,15 mètre(s) Lot 14 |
| Porte(s) d'accès plain-pied | 1 par lot (3.80x4m) |
| Accessibilité type véhicules | Tous porteurs |
| Puissance électrique | Tarif Bleu |
| Mezzanine | Oui |
Voir plus
Afficher les consommations énergétiques
Surfaces divisibles : 27
| Surface | PrixHD/HH/m² | Étage / Batiment | Infos complémentaires |
| 120 m² | N.C | RDC | BAT A- Lot 1 |
| 120 m² | N.C | RDC | BAT A- Lot 2 |
| 120 m² | N.C | RDC | BAT A- Lot 3 |
| 120 m² | N.C | RDC | BAT A- Lot 4 |
| 120 m² | N.C | RDC | BAT A- Lot 5 |
| 120 m² | N.C | RDC | BAT A- Lot 6 |
| 120 m² | N.C | RDC | BAT A- Lot 7 |
| 120 m² | N.C | RDC | BAT A- Lot 8 |
| 120 m² | N.C | RDC | BAT B- Lot 9 |
| 120 m² | N.C | RDC | BAT B- Lot 10 |
| 120 m² | N.C | RDC | BAT B- Lot 11 |
| 265 m² | N.C | RDC | BAT B- Lot 14 |
| 145 m² | N.C | RDC | BAT B- Lot 12 |
| 130 m² | N.C | RDC | BAT B- Lot 13 |
| 100 m² | N.C | R+1 | BAT B- Lot 13 |
| 105 m² | N.C | R+1 | BAT B- Lot 12 |
| 30 m² | N.C | R+1 | BAT B- Lot 11 |
| 30 m² | N.C | R+1 | BAT B- Lot 10 |
| 30 m² | N.C | R+1 | BAT B- Lot 9 |
| 30 m² | N.C | R+1 | BAT A- Lot 8 |
| 30 m² | N.C | R+1 | BAT A- Lot 7 |
| 30 m² | N.C | R+1 | BAT A- Lot 6 |
| 30 m² | N.C | R+1 | BAT A- Lot 5 |
| 30 m² | N.C | R+1 | BAT A- Lot 4 |
| 30 m² | N.C | R+1 | BAT A- Lot 3 |
| 30 m² | N.C | R+1 | BAT A- Lot 2 |
| 30 m² | N.C | R+1 | BAT A- Lot 1 |
Favoris
Exporter
Appeler
Contacter
Signaler cette annonce






