Depuis plus de 20 ans, EOL est l'un des leaders de l'immobilier industriel, logistique et retail, spécialisé dans 3 métiers : la transaction, le conseil en investissement et l'assistance à maîtrise ...
En savoir plus

3 502 m²
Activité/Entrepôt à vendre - 3502 m²
Louvres (95380)
Dernière mise à jour : Il y a 2 jours
A Vendre - local d'activité avec bureaux de 3 500 m² env
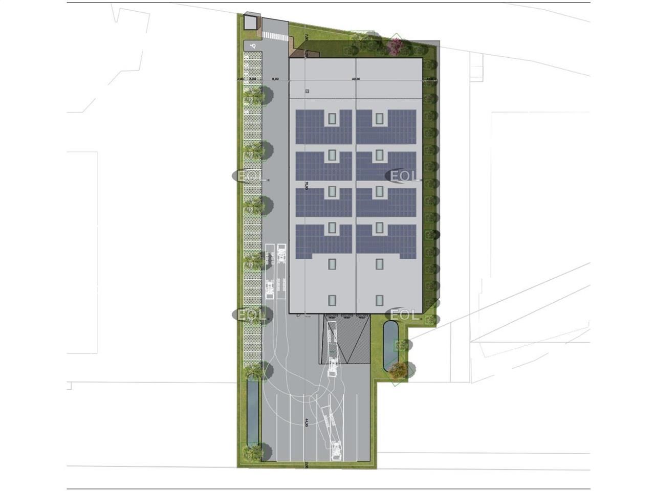
EOL vous propose à la vente un local d'activité avec bureaux d'une surface totale de 3 500 m² situé dans la zone de la Briquetterie à Louvres (95).
Les principales caractéristiques de ce bien sont sa charge au sol de 3 t/m², sa hauteur libre de 11 à 12 mètres, la présence de portes de plain-pied et d'accès à quai. De nombreuses places de parking sont disponibles.
Idéalement positionné, son emplacement est stratégique via les axes routiers (A1, A3 et N104) et les transports en commun (RER D et de nombreux bus). L'aéroport Paris-Charles de Gaulle est à 3 km.
Nous sommes à votre entière disposition pour de plus amples informations.
Superficies :
Description :
Bâtiment indépendant : oui
Etat général : PC non déposé}
Disponibilité : 18 mois après accord
Caractéristiques :
Type de construction : ossature métallique
Hauteur : de 7,5 à 8 m
Charge au sol : 3 t/m²
Couverture : bac acier isolé étanchéité multicouche
Isolation des murs : bardage double peau isolé
Accès de plain pied : Oui
Accès à quai : Oui
Source du chauffage : électricité
Type de chauffage : aérothermes
Type d'éclairage : LED
Prestations :
Emplacements de parking : 36 VL
Voierie lourde
Conditions financières (HT) :
Prix de vente hors fiscalité : 6 933 960 €
Prix de vente hors fiscalité/m² : 1 980 €
Charges (HT) & Taxes :
Charges locatives : 0 €/m²
Charges de copropriété : 0 €/m²
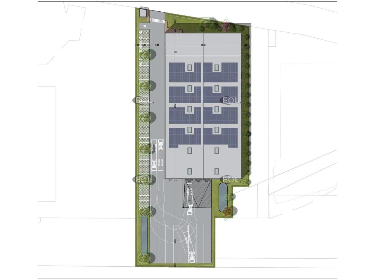
EOL vous propose à la vente un local d'activité avec bureaux d'une surface totale de 3 500 m² situé dans la zone de la Briquetterie à Louvres (95).
Les principales caractéristiques de ce bien sont sa charge au sol de 3 t/m², sa hauteur libre de 11 à 12 mètres, la présence de portes de plain-pied et d'accès à quai. De nombreuses places de parking sont disponibles.
Idéalement positionné, son emplacement est stratégique via les axes routiers (A1, A3 et N104) et les transports en commun (RER D et de nombreux bus). L'aéroport Paris-Charles de Gaulle est à 3 km.
Nous sommes à votre entière disposition pour de plus amples informations.
Superficies :
Description :
Bâtiment indépendant : oui
Etat général : PC non déposé}
Disponibilité : 18 mois après accord
Caractéristiques :
Type de construction : ossature métallique
Hauteur : de 7,5 à 8 m
Charge au sol : 3 t/m²
Couverture : bac acier isolé étanchéité multicouche
Isolation des murs : bardage double peau isolé
Accès de plain pied : Oui
Accès à quai : Oui
Source du chauffage : électricité
Type de chauffage : aérothermes
Type d'éclairage : LED
Prestations :
Emplacements de parking : 36 VL
Voierie lourde
Conditions financières (HT) :
Prix de vente hors fiscalité : 6 933 960 €
Prix de vente hors fiscalité/m² : 1 980 €
Charges (HT) & Taxes :
Charges locatives : 0 €/m²
Charges de copropriété : 0 €/m²
| Fiche technique du bien | |
|---|---|
| Hauteur Sous ferme (m) | 7.50 |
| Type de chauffage | Electrique |
| Charge au sol (kg/m²) | 3.00 |
| Nombre de quais | -1 |
Voir plus
Afficher les consommations énergétiques
Favoris
Exporter
Appeler
Contacter
Signaler cette annonce










