L’Immobilière d’Entreprise Rennes accompagne les entreprises et investisseurs dans leurs projets immobiliers au cœur du bassin rennais. Grâce à une connaissance approfondie du marché et de ses dyna ...
En savoir plus

740 m²
Activité/Entrepôt à vendre - 740 m²
Rennes (35000)
Dernière mise à jour : Il y a 2 jours
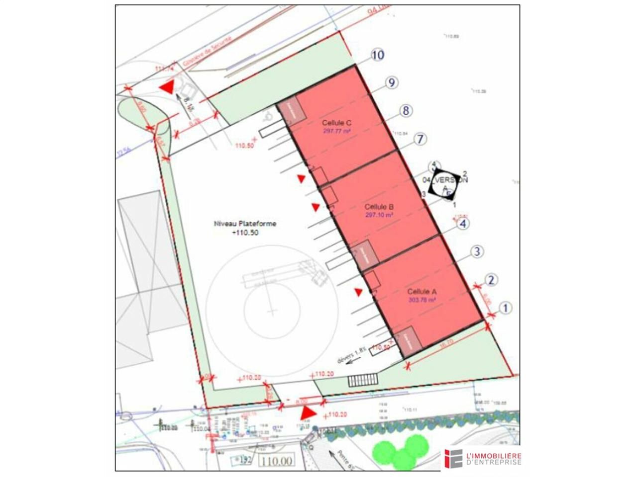
VENTE LOCAL D'ACTIVITÉ 740 m² LA MÉZIÈRE
Les informations sur les risques auxquels ce bien est exposé sont disponibles sur le site Géorisques : www.georisques.gouv.fr
Livrée brut de béton
Réseaux et fluides en attente
Foisonnement de parkings
Accessibilité :
Axe Rennes/St Malo
Disponibilité : Octobre 2026
Prestations :
Accès gros porteur
Accès plain-pied
Accès PMR
Eclairage
EDF Tarif jaune
Fluides en attente
Nbre Parkings extérieurs privatifs : 10
Site clos
Skydome
Prix de vente : 888000 € NET
Honoraires à la charge de l'acquéreur : 7 % HT
L'Immobilière d'Entreprise vous propose à la vente une cellule d'activité d'une superficie de 740 -m², située au sein d'un bâtiment neuf à LA MÉZIÈRE, dans un environnement professionnel dynamique.
Le local est livré brut de béton, avec réseaux et fluides en attente, offrant une grande souplesse d'aménagement selon vos besoins spécifiques. Cet espace est parfaitement adapté à des activités artisanales, industrielles légères ou de stockage, dans un cadre moderne et structuré.
Sa proximité immédiate des axes routiers majeurs, notamment l'axe RennesSaint-Malo, renforce l'accessibilité et l'attractivité du site pour votre activité.
Localisation : LA MÉZIÈRE
Surface : 740 -m²
Les informations sur les risques auxquels ce bien est exposé sont disponibles sur le site Géorisques : www.georisques.gouv.fr
Livrée brut de béton
Réseaux et fluides en attente
Foisonnement de parkings
Accessibilité :
Axe Rennes/St Malo
Disponibilité : Octobre 2026
Prestations :
Accès gros porteur
Accès plain-pied
Accès PMR
Eclairage
EDF Tarif jaune
Fluides en attente
Nbre Parkings extérieurs privatifs : 10
Site clos
Skydome
Prix de vente : 888000 € NET
Honoraires à la charge de l'acquéreur : 7 % HT
| etage | type | surface | prix vente m2 | parkings | disponibilité |
| rez-de-chaussée | local d''activité | 740 | 1 200€/m² | oui | immédiate |
Voir plus
Afficher les consommations énergétiques
Favoris
Exporter
Appeler
Contacter
Signaler cette annonce










