MCarré Conseil est une agence spécialiste de l'immobilier d’entreprise du sud de l’Île-de-France (en Essonne et dans le sud de la Seine-et-Marne et du Val-De-Marne). Elle vous accompagne à chaque é ...
En savoir plus

1 030 m²
Activité/Entrepôt à vendre - 1030 m²
Courcouronnes (91080)
Dernière mise à jour : Hier
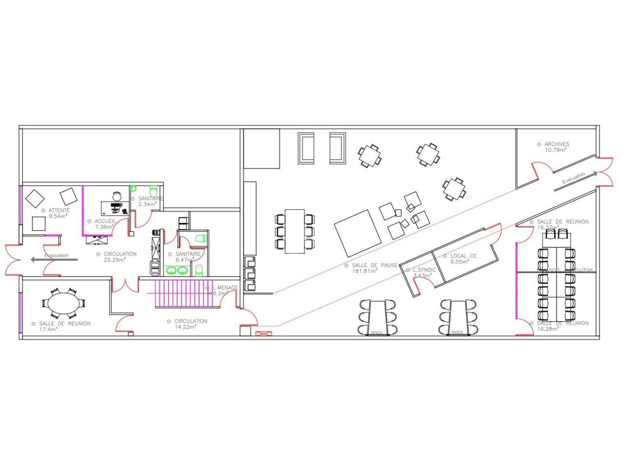
A proximité de la gare RER D Ris Orangis Bois de l'Epine, nous vous proposons à la commercialisation un lot à usage d'activité et bureaux de 1 030 m² dans un immeuble en R+1.
La surface en RDC est desservie par une porte sectionnelle et permet de réaliser du stockage léger
Impôt Foncier : 38662 €//HT/an
Régime Fiscal : Droits de mutation
Dépôt de garantie : 3 mois de loyer HT/HC
Honoraires : 5% HT du prix de vente à la charge de l'Acquéreur
Taxe Bureau : 5,26 €/m²/an
Information sur le Bail :
Loyer annuel : 135 000 euros HT/HC
Prestations :
Accessibilité:
Autoroute Autoroute A6
Route Nationale 104 Francilienne
Route Nationale 7
RER Orangis-Bois de l'Epine (Ligne D)
Tram Traité de Rome (Ligne T12)
Bus Orme à Martin (Ligne 404, Ligne 402, Ligne 413)
Les informations sur les risques auxquels ce bien est exposé sont disponibles sur le site Géorisques : www.georisques.gouv.fr
La surface en RDC est desservie par une porte sectionnelle et permet de réaliser du stockage léger
| Étage | Type | Surfaces | Dispo | Prix(m²) | Charges | Honoraires | Fiscal |
|---|---|---|---|---|---|---|---|
| 1 | Bureaux | 630 | n.c. | n.c. | 5% HT du prix de vente à la charge de l'Acquéreur | Droits de mutation | |
| Rdc | Activités | 317 | n.c. | n.c. | 5% HT du prix de vente à la charge de l'Acquéreur | Droits de mutation | |
| Rdc | Bureaux | 83 | n.c. | n.c. | 5% HT du prix de vente à la charge de l'Acquéreur | Droits de mutation | |
| Total Cellule | Activités | 1030 | Immédiate | 1145,63 m² HD | n.c. | 5% HT du prix de vente à la charge de l'Acquéreur | Droits de mutation |
| Parkings | n.c. | n.c. | 5% HT du prix de vente à la charge de l'Acquéreur | Droits de mutation |
Impôt Foncier : 38662 €//HT/an
Régime Fiscal : Droits de mutation
Dépôt de garantie : 3 mois de loyer HT/HC
Honoraires : 5% HT du prix de vente à la charge de l'Acquéreur
Taxe Bureau : 5,26 €/m²/an
Information sur le Bail :
Loyer annuel : 135 000 euros HT/HC
Prestations :
- Bureaux cloisonnés et open-space
- Climatisation réversible
- Plinthes périphériques double compartiment
- Câblage informatique
- Cuisine
- Sanitaires privatifs
- Surface RDC : 400 m²
- Chauffage : Electrique
Accessibilité:
Autoroute Autoroute A6
Route Nationale 104 Francilienne
Route Nationale 7
RER Orangis-Bois de l'Epine (Ligne D)
Tram Traité de Rome (Ligne T12)
Bus Orme à Martin (Ligne 404, Ligne 402, Ligne 413)
Les informations sur les risques auxquels ce bien est exposé sont disponibles sur le site Géorisques : www.georisques.gouv.fr
Voir plus
Afficher les consommations énergétiques
Localisation et transport aux alentours
Favoris
Exporter
Appeler
Contacter
Signaler cette annonce





