

Location activité/entrepôt - 277 m²
IDÉAL POUR ENTREPRISE, PROFESSION LIBÉRALE OU SHOWROOM – ESPACE POLYVALENT : TRAVAIL, STOCKAGE ET HÉBERGEMENT, SPORT, PISCINE!
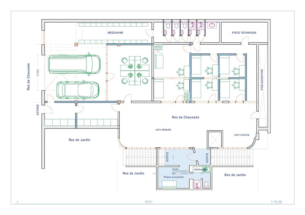
DESCRIPTION DU BIEN : Entrepôt modulable d’environ 280 m², actuellement aménagé en espaces de bureaux, zone de stockage, avec un studio indépendant (coin nuit, salle de bains, kitchenette). Anciennement salle de sport avec piscine chauffée (actuellement recouverte MAIS RESTE FUNCTIONANTE). Hauteur sous plafond : 4 mètres – Accès par porte sectionnelle (POSSIBLE CREER ENTREE AVEC VITRINE)
USAGES POSSIBLES : Espace de bureaux ou coworking Zone de stockage / atelier Transformation possible en showroom, grâce à sa localisation stratégique Logement ponctuel ou studio intégré pour personnel
LOCALISATION PREMIUM : Situé dans le quartier prestigieux du Quai de Champignol – La Marne, à quelques pas de la Gare RER A Saint-Maur – Champigny. Facilement accessible, dans un environnement calme, élégant et bien desservi.
AMÉNAGEMENTS : Bureaux + espace détente Coin cuisine + kitchenette Studio avec salle de bains, Kitchenette. Possibilité d’installer un ou plusieurs postes de couchage (coin nuit ou chambre). Pièce technique / stockage Sorties de secours – Bonne ventilation
Localisation et transport aux alentours
- Champigny278m (4min à pied)A









